€ 1.300.000
  • Più di 5 locali
  • 706 mq
  • 4 bagni

Villa in Vendita a Biassono

BIASSONO – CORTE INDIPENDENTE A DUE PASSI DAL PARCO DI MONZA
In posizione esclusiva, immersa nel verde e nella tranquillità, a pochi passi dal centro di Biassono e dall’ingresso del Parco di Monza, proponiamo in vendita un’intera corte indipendente con cortile privato, perfetta per una grande famiglia, più nuclei familiari o come investimento immobiliare.
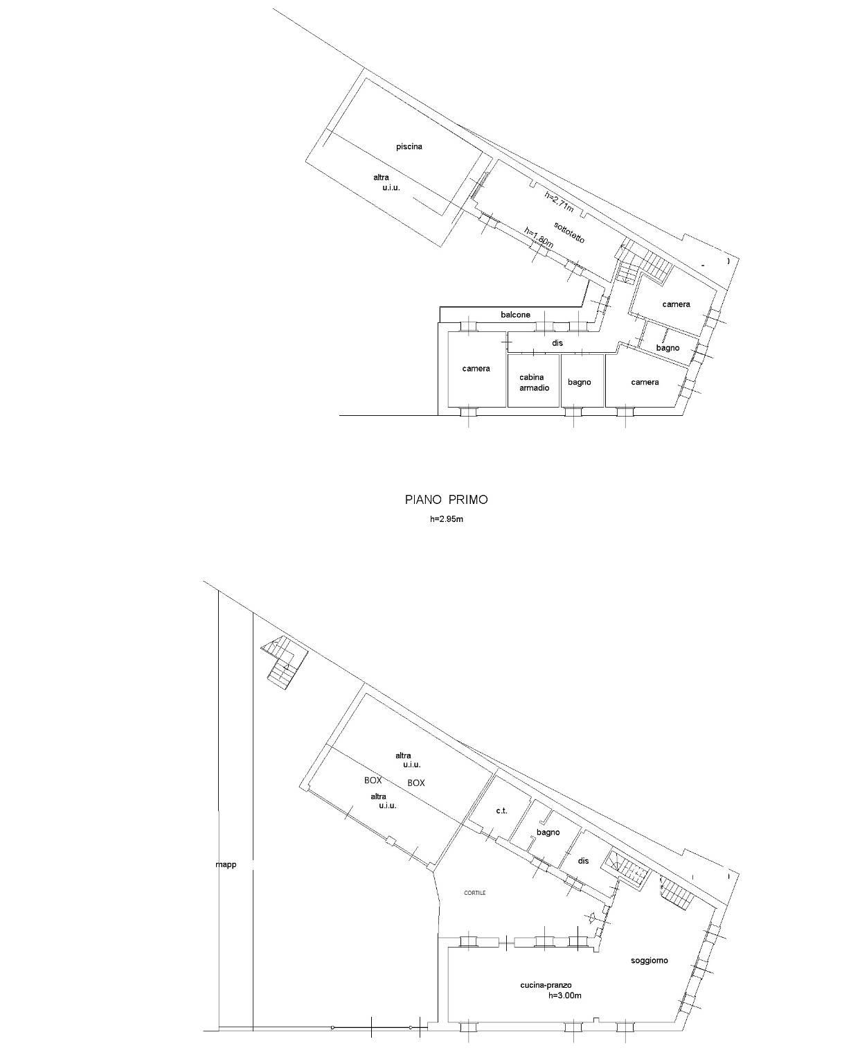
La proprietà si sviluppa in due corpi principali:
Edificio da ristrutturare, composto da:
• Appartamento di 179 mq al piano terra e primo
• Box/magazzino di 70 mq
• Appartamento di 72 mq al piano superiore
• Area di cortile
Ala ristrutturata di pregio, composta da:
o Ampio appartamento tipo loft di 290 mq con:
Ingresso con salone quadruplo
o Cucina a vista
o Bagno con doppia doccia e antibagno
o Scala interna che conduce alla zona notte con 3 camere da letto, locale cabina armadio, 2 bagni, bagno padronale con vasca idromassaggio
o Ampia zona solarium sottotetto con travi a vista e ampie vetrate con affaccio sul cortile
o Piscina panoramica riscaldata con copertura elettrica per zona prendisole
o Finiture di altissimo livello e tapparelle frangisole elettriche, fotovoltaico
Completano la proprietà un cortile privato e un comodo box per 4 auto con basculante motorizzata.
Soluzione unica nel suo genere, che unisce stile, comfort, spazi generosi e massima privacy, in una delle zone più ambite della Brianza.
Prezzo trattabile

Contattaci per maggiori informazioni e per prenotare una visita!

LEGGI TUTTO

CONDIVIDI SUI SOCIAL

DATI PRINCIPALI

Riferimento
126704
Contratto
Vendita
Tipologia
Villa
Superficie
706 mq
Locali
Più di 5
Camere da letto
Più di 5
Cucina
Abitabile
Bagni
4
Piano
1 °
Totale piani
2
Box/Posto auto
Doppio

CARATTERISTICHE

Ascensore

COSTI

Prezzo
€ 1.300.000,00

EFFICIENZA ENERGETICA

Stato
Ristrutturato
Riscaldamento
Autonomo
Climatizzazione
Si
Classe energetica
A
IPE
175,00 kWh/m²a

A+

175,00 kWh/m²a | Classe energetica A

A

B

C

D

E

F

G

MAPPA

Biassono comune della Bassa Brianza Centrale Sud

ANNUNCI SIMILI

VENDITA 20
€ 240.000
Villa in Vendita a Sovico (Monza e Brianza)
  • Più di 5 locali
  • 216 mq
  • 4 bagni
VENDITA 20
€ 850.000
Villa in Vendita a Lesmo (Monza e Brianza)
  • Più di 5 locali
  • 430 mq
  • 4 bagni
VENDITA 20
€ 1.050.000
Villa in Vendita a Lesmo (Monza e Brianza)
  • Più di 5 locali
  • 590 mq
  • 4 bagni