IN VENDITA A VIMERCATE – Frazione Oreno VENDITA

Via Augusto Murri 14 - Vimercate (Monza e Brianza)
€ 396.000
  • Quadrilocale
  • 244 mq
  • 3 bagni

Villetta a schiera in Vendita a Vimercate

VIMERCATE – Frazione Oreno
Dove la storia incontra il calore di casa.
Nel cuore della rinomata frazione Oreno di Vimercate sorge questa signorile villetta a schiera edificata nel 1980, inserita in un contesto residenziale riservato e armonioso, a pochi passi da uno dei borghi più affascinanti e ricercati della Brianza.
La casa: ambienti che raccontano una storia di famiglia
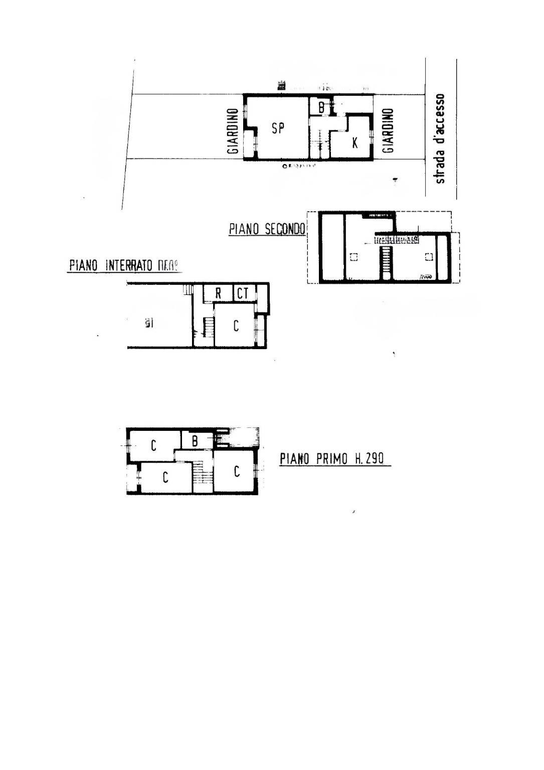
Piano Terra – 74 mq | Accoglienza e convivialità
Varcando la soglia si percepisce subito il senso di casa.
il piano terra accoglie un’ampia cucina abitabile, luminosa e perfetta per la quotidianità familiare, uno spazio dove condividere momenti autentici.
Il soggiorno, esposto ad ovest, si apre con le sue finestre sul portico e sul giardino privato di complessivi 100 mq c.a. la luce del tramonto entra calda e avvolgente, creando un’atmosfera intima e rilassante. Il portico diventa naturale estensione della zona living durante la bella stagione grazie anche al tendone da sole motorizzato.
Completa il piano un comodo bagno di servizio.



Primo Piano – 67 mq | Intimità e riposo
Salendo la scala interna si raggiunge la zona notte, ben distribuita ed ariosa.
Le due camerette sono ampie e confortevoli: una dispone di balcone privato, mentre la camera matrimoniale offre generosità negli spazi e grande luminosità. Ogni ambiente si presta ad essere personalizzato secondo le esigenze della famiglia.
Il bagno finestrato del piano garantisce praticità e comfort quotidiano.


Mansarda – 50 mq | Spazio da immaginare
Il piano mansardato oggi si presenta come un unico grande ambiente, oltre bagno di servizio.
È uno spazio versatile, facilmente divisibile in due ulteriori stanze: può trasformarsi in una suite privata, in uno studio professionale o in un’area dedicata al tempo libero.


Piano Interrato – 40 mq | Funzionalità e carattere
Il piano interrato ospita una taverna accogliente, perfetta per momenti conviviali o hobby personali, oltre a un locale lavanderia, un locale caldaia e un pratico sottoscala ad uso ripostiglio.
Direttamente collegata all’abitazione troviamo l’autorimessa doppia in larghezza di 36 mq con portone motorizzato, un plus di grande valore per comodità e organizzazione quotidiana l’altezza del soffitto sopra la media genera ulteriore spazio ripostiglio.


Dotazioni e migliorie
Nel tempo l’immobile è stato oggetto di interventi mirati che ne aumentano comfort ed efficienza:
infissi in legno con doppi vetri restaurati nel 2022, inferriate, zanzariere, tende da sole motorizzate, caldaia sostituita nel 2016, climatizzazione installata nel 2019 e impianto fotovoltaico da 3 kW del 2012.
Predisposizione canna fumaria per camino o stufa.



Oreno: fascino storico e valore nel tempo
La frazione di Oreno è celebre per il suo centro storico di origine medievale, per le corti lombarde perfettamente conservate e per dimore di grande prestigio come Villa Gallarati Scotti e Palazzo Borromeo, simboli di una tradizione nobile e culturalmente viva.
Vivere qui significa scegliere un contesto che unisce eleganza, tranquillità e servizi, con collegamenti rapidi verso Milano e Monza, in un equilibrio perfetto tra riservatezza e comodità.
Un investimento ad Oreno
Questa villetta rappresenta una soluzione ideale per chi desidera indipendenza, spazio e qualità abitativa in un contesto riservato e di pregio. Una casa solida, efficiente e pronta ad accogliere nuovi progetti di vita.
Per informazioni e visite:
Zorzetto Ivan

LEGGI TUTTO

CONDIVIDI SUI SOCIAL

DATI PRINCIPALI

Riferimento
132314
Contratto
Vendita
Tipologia
Villetta a schiera
Superficie
244 mq
Locali
4
Camere da letto
3
Cucina
Abitabile
Bagni
3
Piano
3 °
Totale piani
3
Box/Posto auto
Doppio

CARATTERISTICHE

Ascensore

COSTI

Prezzo
€ 396.000,00
Spese condominiali
€ 50,00 / mese

EFFICIENZA ENERGETICA

Stato
Abitabile
Anno costruzione
1980
Riscaldamento
Autonomo
Climatizzazione
Si
Classe energetica
D
IPE
162,53 kWh/m²a

A+

A

B

C

162,53 kWh/m²a | Classe energetica D

D

E

F

G

MAPPA

Vimercate comune della Bassa Brianza Orientale o Vimercatese

ANNUNCI SIMILI

VENDITA 20
€ 370.000
Villetta a schiera in Vendita a Vimercate (Monza e Brianza)
  • Più di 5 locali
  • 215 mq
  • 3 bagni
VENDITA 20
€ 560.000
Villetta a schiera in Vendita a Carnate (Monza e Brianza)
  • Più di 5 locali
  • 222 mq
  • 4 bagni
VENDITA 20
€ 398.000
Villetta a schiera in Vendita a Bernareggio (Monza e Brianza)
  • Più di 5 locali
  • 210 mq
  • 3 bagni