Fantastica Villa singola immersa nel verde! VENDITA

Via Resegone - Lazzate (Monza e Brianza)
€ 450.000
  • Trilocale
  • 110 mq
  • 1 bagno

Villa in Vendita a Lazzate

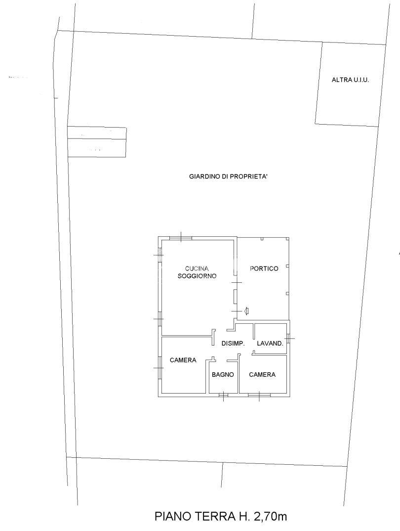
Rif: V0491 - Nel comune di Lazzate, nella tranquilla e verde zona Cascina Vago, a ridosso del Parco delle Groane, proponiamo in vendita una splendida villa singola di circa 110 mq, disposta su un unico livello e circondata da un giardino privato di 650 mq che garantisce privacy, tranquillità e uno spazio ideale per vivere all’aperto in totale relax.

La soluzione, edificata nel 2011, si presenta in ottime condizioni, con finiture curate e materiali di qualità che uniscono comfort, eleganza e funzionalità. L’abitazione si apre su un luminoso soggiorno, caratterizzato da un camino in muratura che dona calore e accoglienza all’ambiente, rendendolo perfetto per momenti conviviali o serate rilassanti in famiglia. Adiacente al soggiorno si trova la cucina a vista, moderna e ben integrata nello spazio, pensata per coniugare praticità e convivialità.

La zona notte ospita due ampie camere matrimoniali, entrambe rifinite con pavimenti in parquet, che aggiungono un tocco di eleganza e comfort. Il bagno padronale, spazioso e finestrato, è dotato di vasca da bagno e sanitari sospesi, con finiture moderne e sobrie. Completa la disposizione interna una comoda lavanderia, pratica e funzionale, con adiacente locale caldaia che dispone di predisposizione per lavabo, offrendo così un ulteriore spazio di servizio.

La zona giorno è impreziosita dai soffitti con travi a vista, che donano un carattere rustico ma raffinato, amplificando la luminosità e la sensazione di ampiezza degli ambienti. Gli infissi in legno con doppio vetro garantiscono un ottimo isolamento termico e acustico, mentre il cappotto esterno assicura un’elevata efficienza energetica, contribuendo a contenere i consumi e mantenere un clima ideale in ogni stagione.

Il giardino privato di 600 mq, ben piantumato e facilmente gestibile, rappresenta un vero e proprio punto di forza: uno spazio perfetto per chi ama la vita all’aperto, ideale per pranzi e cene con amici, per momenti di relax o per chi desidera un ambiente sicuro dove far giocare i bambini o accogliere animali domestici.

La zona Cascina Vago è una delle più tranquille e riservate del territorio di Lazzate, immersa nel verde ma al tempo stesso comoda ai principali servizi e collegamenti. La vicinanza al Parco delle Groane rende questa soluzione ideale per chi ama la natura, le passeggiate e la vita all’aria aperta, senza rinunciare alla praticità dei servizi del centro paese raggiungibili in pochi minuti.

Questa villa rappresenta la soluzione ideale per chi cerca indipendenza, comfort e qualità costruttiva, in un contesto silenzioso e riservato, perfetto per famiglie o coppie che desiderano vivere in armonia con la natura senza allontanarsi troppo dai centri abitati.

LEGGI TUTTO

CONDIVIDI SUI SOCIAL

DATI PRINCIPALI

Riferimento
131783
Contratto
Vendita
Tipologia
Villa
Superficie
110 mq
Locali
3
Camere da letto
2
Cucina
A vista
Bagni
1
Piano
Piano rialzato
Totale piani
1

CARATTERISTICHE

Ascensore

COSTI

Prezzo
€ 450.000,00

EFFICIENZA ENERGETICA

Stato
Ristrutturato
Anno costruzione
2011
Riscaldamento
Autonomo
Classe energetica
A+
IPE
20,10 kWh/m²a
20,10 kWh/m²a | Classe energetica A+

A+

A

B

C

D

E

F

G

MAPPA

Lazzate comune della Bassa Brianza Occidentale

ANNUNCI SIMILI