ELEGANTE VILLA CON GIARDINO PRIVATO E BOX DOPPIO VENDITA

Via Don Luigi Gobetti 31 - Bernareggio (Monza e Brianza)
€ 398.000
  • Più di 5 locali
  • 210 mq
  • 3 bagni

Villetta a schiera in Vendita a Bernareggio

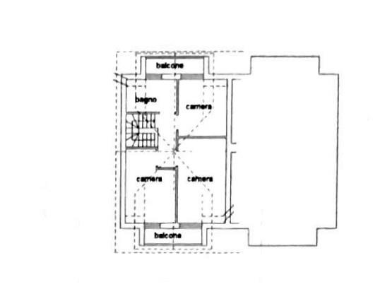
BERNAREGGIO (Villanova) a 2 km da Vimercate e pochi passi dal centro, in zona ottimamente collegata ed immersa nel verde, ubicata in piccola via interna e riservata, disponiamo di una splendida nuovissima e Signorile VILLA con mattoni faccia a vista libera su tre lati, indipendente ed autonoma di circa 210 mq, oltre Giardino Privato di ulteriori 60 mq. L’immobile curato nel dettaglio ,è dotato di canna fumaria predisposta per camino o stufa e grazie alla tripla esposizione , risulta essere intensamente luminoso . Il Giardino con Portico laterale, accede direttamente all’ampio Soggiorno con Cucina Abitabile aperta a vista avente ampio e comodissimo Terrazzo e Servizio; tramite scala interna al piano 1° si apre la zona notte con Camere, 2°Servizio e due Balconi. Grande Open space con 3° servizio/Lavanderia al piano Taverna oltre ulteriore Camera. Box auto doppio compreso nell’offerta. Possibilità di arredo nuovo incluso nel prezzo di acquisto. Assolutamente da visionare! Classe Energetica: C Ipe: 106,02 kwh/mqa. Per ulteriori informazioni e per visionare l'immobile senza impegno, potete contattare i seguenti recapiti: telefono fisso: 02.54.10.79.67 telefono mobile: 392.94.76.169 e-mail: miranda@mirandaimmobiliare.it Consultate il ns. sito: www.mirandaimmobiliare.it

LEGGI TUTTO

CONDIVIDI SUI SOCIAL

DATI PRINCIPALI

Riferimento
132708
Contratto
Vendita
Tipologia
Villetta a schiera
Superficie
210 mq
Locali
Più di 5
Camere da letto
4
Cucina
Abitabile
Bagni
3
Piano
Piano terra
Totale piani
2
Box/Posto auto
Doppio

CARATTERISTICHE

Ascensore

COSTI

Prezzo
€ 398.000,00

EFFICIENZA ENERGETICA

Stato
Ristrutturato
Anno costruzione
2008
Riscaldamento
Autonomo
Climatizzazione
Predisposizione
Classe energetica
C
IPE
106,02 kWh/m²a

A+

A

B

106,02 kWh/m²a | Classe energetica C

C

D

E

F

G

MAPPA

Bernareggio comune della Bassa Brianza Orientale o Vimercatese

ANNUNCI SIMILI

VENDITA 20
€ 398.000
Villetta a schiera in Vendita a Bernareggio (Monza e Brianza)
  • Più di 5 locali
  • 210 mq
  • 3 bagni
VENDITA 20
€ 464.000
Villetta a schiera in Vendita a Biassono (Monza e Brianza)
  • Più di 5 locali
  • 211 mq
  • 2 bagni
VENDITA 8
€ 320.000
Villetta a schiera in Vendita a Carate Brianza, Frazione Agliate
  • Più di 5 locali
  • 240 mq
  • 3 bagni
VENDITA 20
€ 938.000
Villetta a schiera in Vendita a Monza, Zona San Fruttuoso
  • Più di 5 locali
  • 241 mq
  • 4 bagni
VENDITA 20
€ 928.900
Villetta a schiera in Vendita a Monza, Zona San Fruttuoso
  • Più di 5 locali
  • 239 mq
  • 4 bagni
VENDITA 20
€ 759.000
Villetta a schiera in Vendita a Monza, Zona San Fruttuoso
  • Più di 5 locali
  • 217 mq
  • 4 bagni
VENDITA 20
€ 914.200
Villetta a schiera in Vendita a Monza, Zona San Fruttuoso
  • Più di 5 locali
  • 235 mq
  • 4 bagni
VENDITA 20
€ 936.600
Villetta a schiera in Vendita a Monza, Zona San Fruttuoso
  • Più di 5 locali
  • 241 mq
  • 4 bagni
VENDITA 20
€ 864.850
Villetta a schiera in Vendita a Monza, Zona San Fruttuoso
  • Più di 5 locali
  • 221 mq
  • 4 bagni
VENDITA 20
€ 866.250
Villetta a schiera in Vendita a Monza, Zona San Fruttuoso
  • Più di 5 locali
  • 262 mq
  • 4 bagni
VENDITA 20
€ 861.000
Villetta a schiera in Vendita a Monza, Zona San Fruttuoso
  • Più di 5 locali
  • 220 mq
  • 4 bagni