Elegante villa a schiera con giardino! VENDITA

Via Francesco Sforza 6 - Seveso (Monza e Brianza)
€ 369.000
  • Quadrilocale
  • 120 mq
  • 2 bagni

Villetta a schiera in Vendita a Seveso

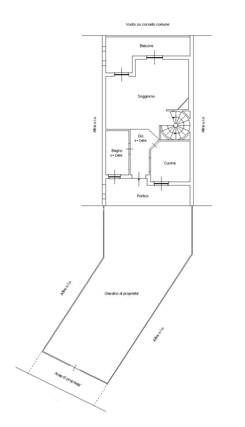
Rif: V0997 - Nel comune di Seveso, in zona Baruccana, proponiamo in vendita una villa a schiera di 120 mq disposta su tre livelli, completamente rinnovata con interventi mirati all'efficienza energetica e al massimo comfort abitativo. La villa si inserisce in un contesto residenziale del 1980 composto da nove famiglie, garantendo riservatezza e una piacevole atmosfera familiare, pur restando a pochi passi da tutti i principali servizi di prima necessità.
L’ingresso al piano terra apre su una luminosa zona giorno accogliente e ben organizzata, arricchita dalla presenza di un camino canalizzato che contribuisce a mantenere la temperatura con un utilizzo minimo di energia: bastano solo tre ore al giorno per riscaldare la casa senza altre fonti. La cucina è abitabile e comunica con la sala attraverso un pratico bancone, creando un ambiente funzionale e moderno, perfetto per la quotidianità. Sullo stesso piano è presente un bagno dotato di generosa doccia walk-in con comandi touch, dal design raffinato e funzionale. Salendo al primo piano si accede alla zona notte, composta da una camera matrimoniale, due camerette e un secondo bagno con vasca, ideale per la quotidianità della famiglia. Completa la parte abitativa la taverna di 25 mq al piano interrato, uno spazio versatile, perfetto per momenti di relax o come zona hobby.

L’immobile è stato oggetto di una profonda riqualificazione tra il 2020 e il 2023, con interventi che garantiscono un elevato standard abitativo. Il cappotto esterno da 120 mm e il tetto con isolamento da 140 mm assicurano una coibentazione eccellente, riducendo drasticamente i consumi. Il riscaldamento a pavimento è presente su tutti e tre i piani, integrato da split idronici per riscaldamento e raffrescamento, mentre una pompa di calore smart da 9 kW con accumulo ACS da 250 litri e inerziale da 30 litri garantisce comfort in ogni stagione. Il sistema fotovoltaico, installato nel 2023, vanta una potenza di 9 kW con pannelli dotati di ottimizzatori, 7 batterie per oltre 24 kW di accumulo e inverter ibrido da 6 kW con funzione backup, che consente l'autosufficienza energetica anche in caso di blackout.

Ogni dettaglio è stato curato per assicurare efficienza e tecnologia: impianti idraulici nuovi realizzati in ottone, inox e multistrato per una maggiore durabilità e igiene; infissi in PVC con doppio vetro, pavimentazione in grès porcellanato, tapparelle elettriche smart, inferriate nuove verniciate a polvere, citofono smart; sono presenti inoltre sistemi di videosorveglianza e d’allarme.

Completa la proprietà un box doppio di 30 mq con due portoni sezionali elettrici e coibentazione da 40 mm oltre all' accesso al sottotetto tramite scala retrattile.

Questa villa rappresenta un’opportunità unica per chi cerca una casa pronta all’uso, in una zona comoda e ben collegata, con il massimo dell’efficienza energetica e del comfort abitativo, ideale per famiglie moderne che vogliono coniugare tecnologia, risparmio e qualità della

LEGGI TUTTO

CONDIVIDI SUI SOCIAL

DATI PRINCIPALI

Riferimento
127415
Contratto
Vendita
Tipologia
Villetta a schiera
Superficie
120 mq
Locali
4
Camere da letto
3
Cucina
Abitabile
Bagni
2
Piano
Piano terra
Totale piani
3
Box/Posto auto
Doppio

CARATTERISTICHE

Ascensore

COSTI

Prezzo
€ 369.000,00
Spese condominiali
€ 92,00 / mese

EFFICIENZA ENERGETICA

Stato
Ristrutturato
Anno costruzione
1980
Riscaldamento
Autonomo
Climatizzazione
Si
Classe energetica
A+
IPE
175,00 kWh/m²a
175,00 kWh/m²a | Classe energetica A+

A+

A

B

C

D

E

F

G

MAPPA

Seveso comune della Bassa Brianza Occidentale

ANNUNCI SIMILI

VENDITA 20
€ 430.000
Villetta a schiera in Vendita a Seveso (Monza e Brianza)
  • Quadrilocale
  • 131 mq
  • 2 bagni
VENDITA 20
€ 279.000
Villetta a schiera in Vendita a Seregno (Monza e Brianza)
  • Quadrilocale
  • 114 mq
  • 2 bagni
VENDITA 15
€ 395.000
Villetta a schiera in Vendita a Cesano Maderno (Monza e Brianza)
  • Più di 5 locali
  • 208 mq
  • 3 bagni
VENDITA 20
€ 540.000
Villetta a schiera in Vendita a Seregno (Monza e Brianza)
  • Più di 5 locali
  • 194 mq
  • 2 bagni
VENDITA 20
€ 379.000
Villetta a schiera in Vendita a Giussano (Monza e Brianza)
  • Quadrilocale
  • 144 mq
  • 3 bagni