Ufficio - Studio in Vendita VENDITA

Largo Pontida 4 - Vimercate (Monza e Brianza)
€ 220.000
  • 1 locale
  • 122 mq
  • 2 bagni

Ufficio in Vendita a Vimercate

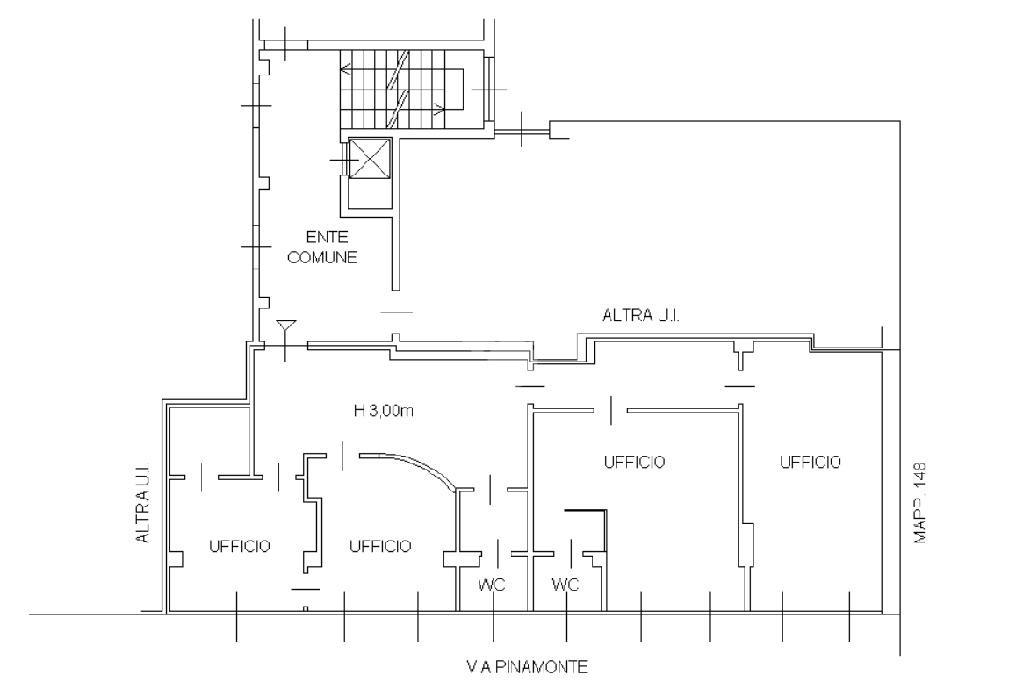
Vimercate centro, adiacente a tutti i servizi. Ufficio al primo piano composto da ingresso, ampia area accoglienza, corridoio/archivio, 4 vani ufficio e due bagni finestrati. La cantina completa la proprietà.
Le spese condominiali ammontano a ca. euro 3.700,00 annue, comprensive di riscaldamento a consumo (ca. 1.500,00) ed acqua fredda ca. euro 100,00 cad.
Lo Studio Vimercate Sas affiliato Tecnocasa, gruppo leader nell'intermediazione immobiliare in Italia e in Europa, ha attualmente in 'portafoglio' diverse tipologie di immobili molto interessanti ai fini di un eventuale investimento. Il mattone infatti, bene rifugio per eccellenza, continua ad essere un valido strumento di investimento.

LEGGI TUTTO

CONDIVIDI SUI SOCIAL

DATI PRINCIPALI

Riferimento
106837
Contratto
Vendita
Tipologia
Immobile - Ufficio
Superficie
122 mq
Locali
1
Bagni
2
Totale piani
6

CARATTERISTICHE

Ascensore

COSTI

Prezzo
€ 220.000,00
Spese condominiali
€ 308,00 / mese

EFFICIENZA ENERGETICA

Stato
Abitabile
Anno costruzione
1980
Riscaldamento
Centralizzato
Climatizzazione
Si
Classe energetica
G
IPE
284,10 kWh/m²a

A+

A

B

C

D

E

F

284,10 kWh/m²a | Classe energetica G

G

MAPPA

Vimercate comune della Bassa Brianza Orientale o Vimercatese

ANNUNCI SIMILI