Ufficio - Studio in Affitto AFFITTO

Via Italia 50 - Monza, Zona Centro Storico
€ 1.850 mensili
  • 4 locali
  • 110 mq
  • 1 bagno

Ufficio in Affitto a Monza

MONZA, Centro Storico - Ztl, Via Italia.
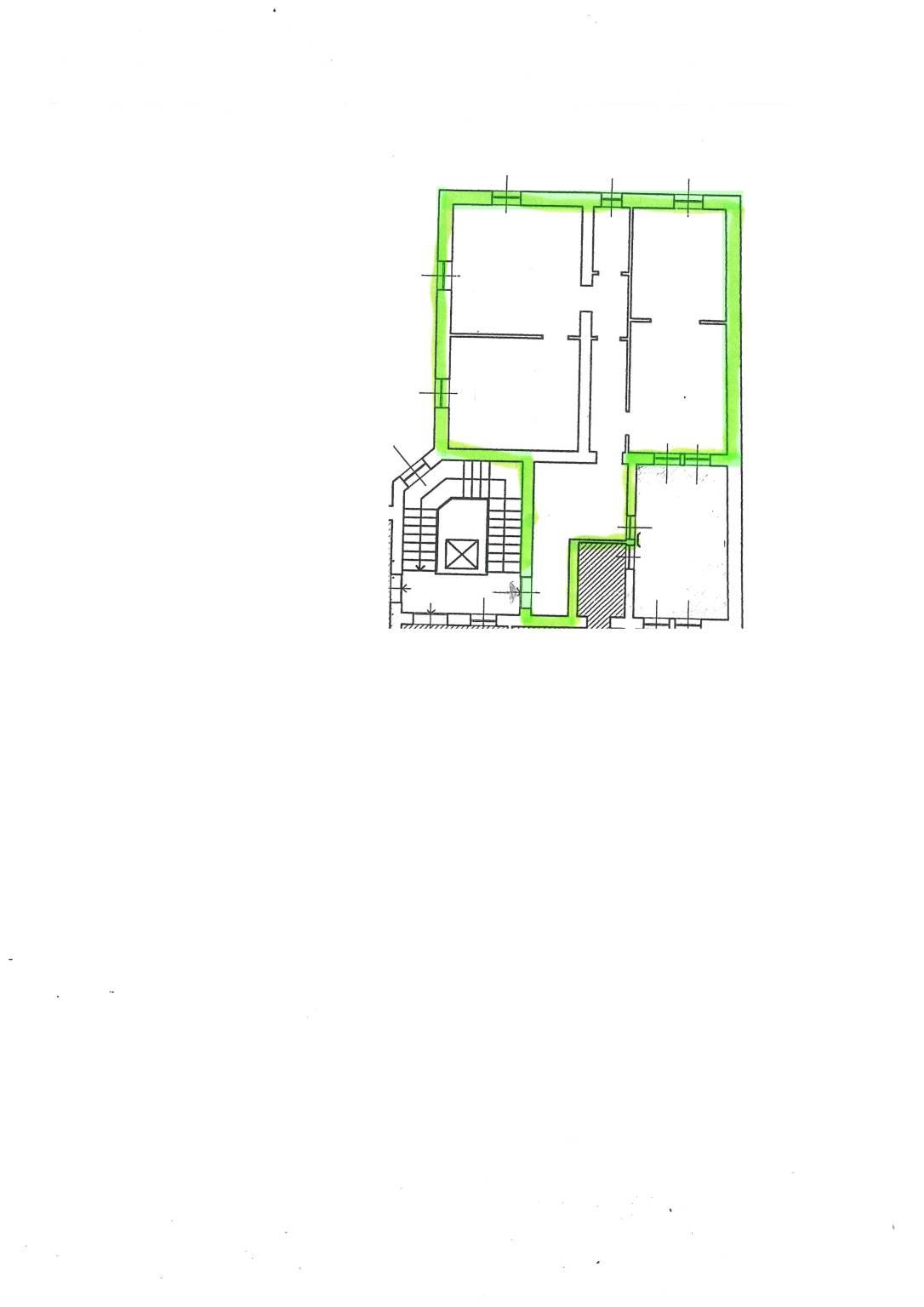
UFFICIO di 110 mq in affitto nel cuore del centro storico di Monza, situato al primo piano di un elegante palazzo con servizio di portineria e ascensore, in zona pedonale, a pochi passi dalla stazione ferroviaria.
L’immobile si presenta in ottime condizioni ed è ideale per studi professionali o attività direzionali che desiderano una posizione centrale e facilmente raggiungibile.
L’ingresso introduce in una comoda area reception con spazio dedicato all’accoglienza e alla sala d’attesa per i clienti. Un corridoio distribuisce in modo funzionale gli ambienti e conduce a quattro ampie stanze, perfette come uffici operativi, postazioni di lavoro o sala riunioni. Completa la proprietà il bagno finestrato.
L’ufficio è dotato di riscaldamento centralizzato e predisposizione di impianto di aria condizionata, garantendo comfort e funzionalità durante tutto l’anno.

La posizione strategica nel centro storico, in area pedonale e a brevissima distanza dalla stazione, rende questa soluzione particolarmente interessante per professionisti e aziende che cercano visibilità, comodità nei collegamenti e un contesto di prestigio.

Canone mensile e spese condominiali oltre IVA

LEGGI TUTTO

CONDIVIDI SUI SOCIAL

DATI PRINCIPALI

Riferimento
132096
Contratto
Affitto
Tipologia
Immobile - Ufficio
Superficie
110 mq
Locali
4
Bagni
1
Piano
1 °
Totale piani
5

CARATTERISTICHE

Ascensore

COSTI

Canone
Affitto € 1.850,00 al mese
Tipo locazione
4+4
Spese condominiali
€ 300,00 / mese, non incluse nel canone

EFFICIENZA ENERGETICA

Stato
Ristrutturato
Anno costruzione
1900
Riscaldamento
Centralizzato
Climatizzazione
Predisposizione
Classe energetica
E
IPE
351,00 kWh/m²a

A+

A

B

C

D

351,00 kWh/m²a | Classe energetica E

E

F

G

MAPPA

Monza comune della Bassa Brianza Centrale Sud

ANNUNCI SIMILI