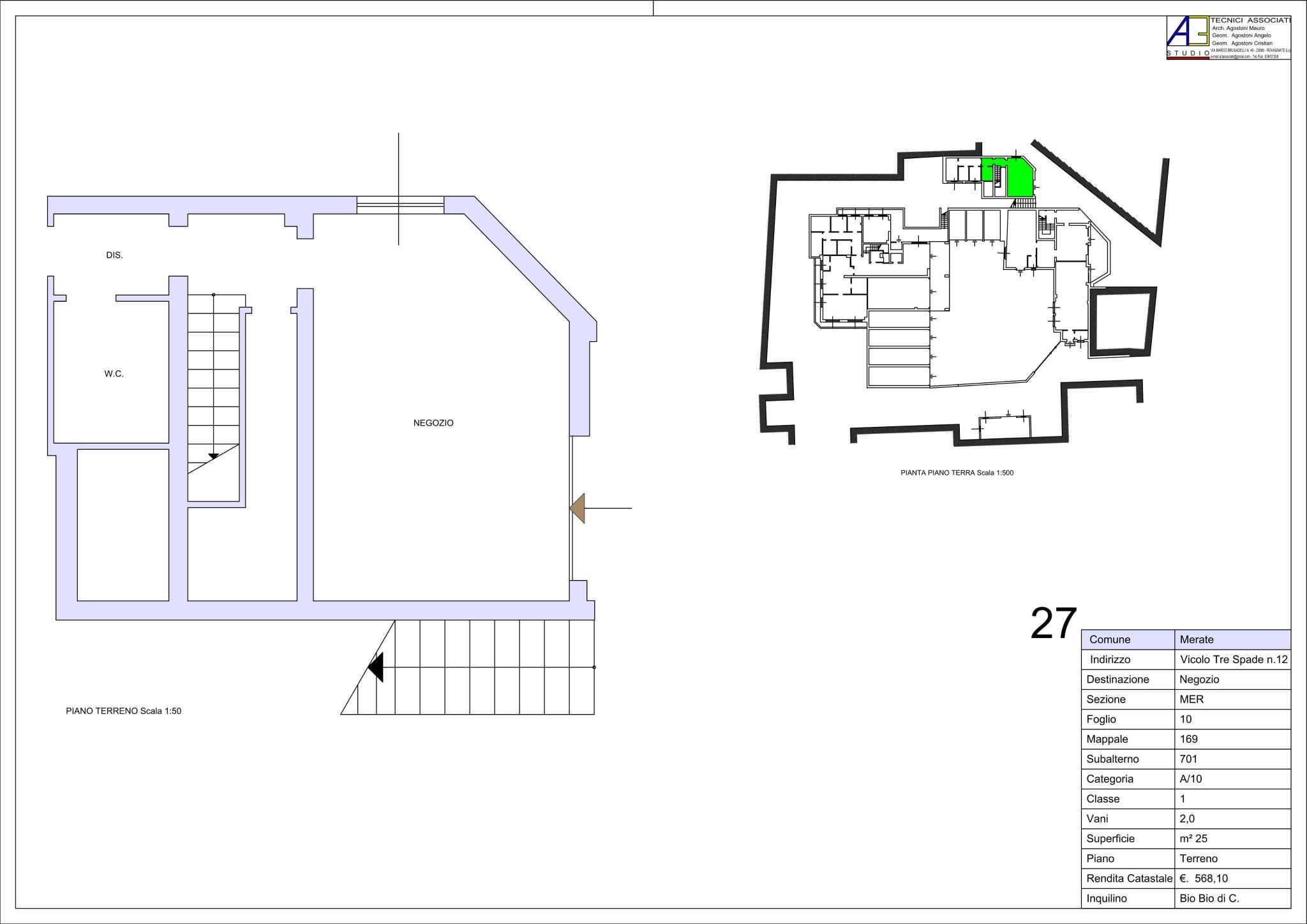
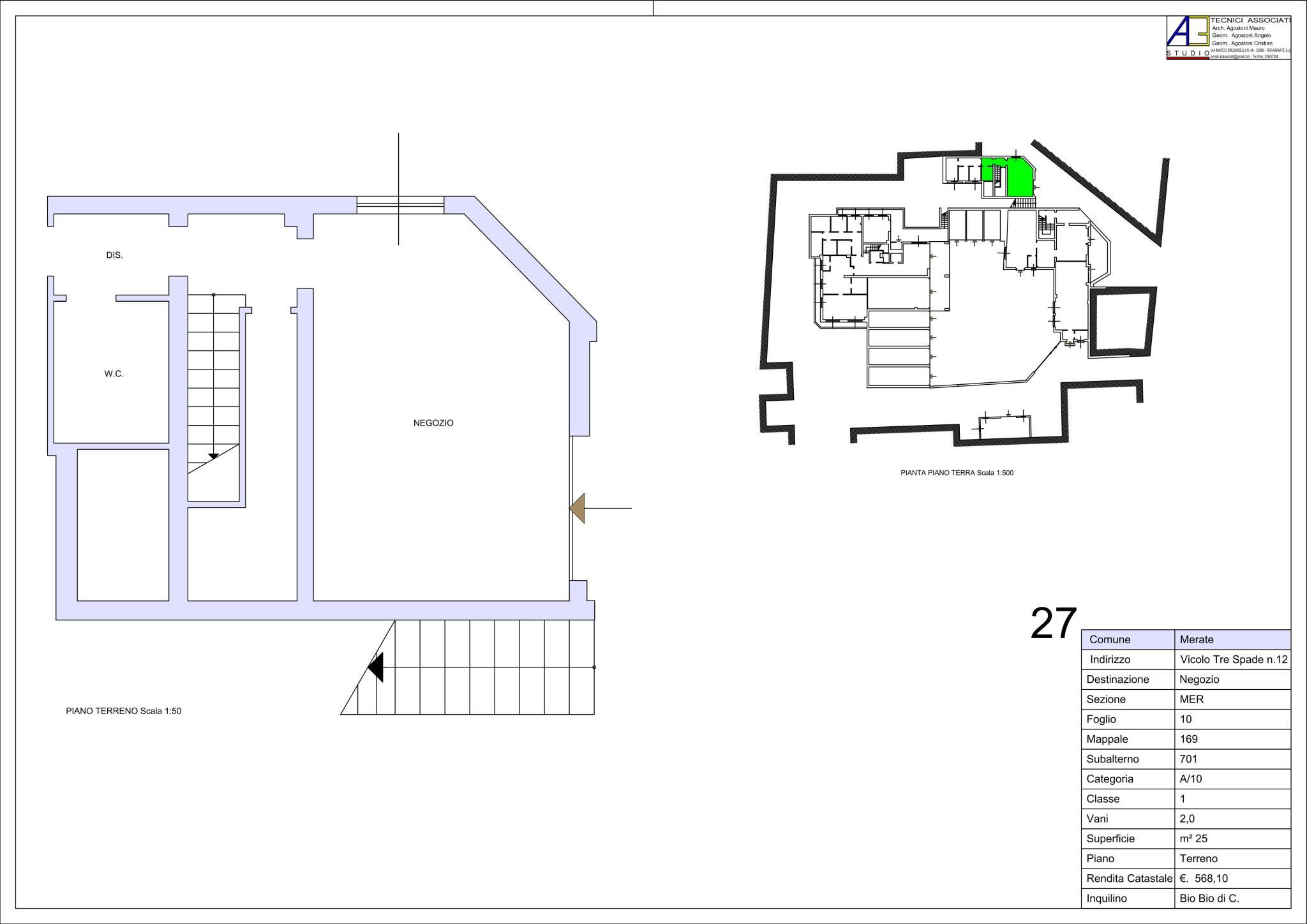
UFFICIO/NEGOZIO CON VETRINA AFFITTO

Vicolo Tre Spade - Merate (Lecco)
€ 300 mensili
  • 1 locale
  • 30 mq
  • 1 bagno

Ufficio in Affitto a Merate

centro, ufficio/negozio con vetrina composto da un locale unico con disimpegno, bagno e locale cantina completamente ristrutturato all'interno di uno stabile. libero subito.

CONDIVIDI SUI SOCIAL

DATI PRINCIPALI

Riferimento
131479
Contratto
Affitto
Tipologia
Immobile - Ufficio
Superficie
30 mq
Locali
1
Bagni
1
Piano
Piano terra
Totale piani
5

CARATTERISTICHE

Ascensore

COSTI

Canone
Affitto € 300,00 al mese
Tipo locazione
4+4
Spese condominiali
€ 60,00 / mese, non incluse nel canone

EFFICIENZA ENERGETICA

Stato
Ristrutturato
Anno costruzione
1972
Riscaldamento
Centralizzato
Classe energetica
G
IPE
100,17 kWh/m²a

A+

A

B

C

D

E

F

100,17 kWh/m²a | Classe energetica G

G

MAPPA

Merate comune della Brianza Meratese