PALESTRA IN VIA OZANAM 24 A CONCOREZZO VENDITA

Via Ozanam 24 - Concorezzo (Monza e Brianza)
€ 120.000
  • 1 locale
  • 106 mq
  • 1 bagno

Ufficio in Vendita a Concorezzo

CLICCA IL PULSANTE "VIRTUAL TOUR" E VIVI LA PRIMA VISITA VIRTUALE DENTRO L'IMMOBILE
Fenixgroup propone in vendita locale commerciale situato a Concorezzo in Via Ozanam 24, in una zona residenziale tranquilla e ben servita, con comodi parcheggi nelle immediate vicinanze.
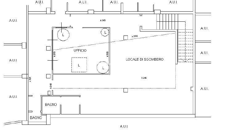
L’immobile, posto al piano seminterrato ma dotato di finestre, si sviluppa su una superficie di 106 mq ed è attualmente adibito a palestra.
La distribuzione interna comprende un ampio open space multifunzionale, un ufficio privato e due bagni, risultando adatta a diverse attività.

Il locale si presenta in ottimo stato e dispone di finestre con apertura elettrica, che garantiscono una buona luminosità e un efficace ricambio d’aria.
La soluzione è attualmente locata con regolare contratto in essere, rappresentando un’interessante opportunità di investimento a reddito.

Per qualsiasi altra informazione non esitate a contattarci!
Questa descrizione ha valore puramente informativo e non costituisce elemento contrattuale

LEGGI TUTTO

CONDIVIDI SUI SOCIAL

DATI PRINCIPALI

Riferimento
130328
Contratto
Vendita
Tipologia
Immobile - Ufficio
Superficie
106 mq
Locali
1
Bagni
1
Piano
Seminterrato
Totale piani
4

CARATTERISTICHE

Ascensore

COSTI

Prezzo
€ 120.000,00

EFFICIENZA ENERGETICA

Anno costruzione
2008
Classe energetica
C
IPE
248,88 kWh/m²a

A+

A

B

248,88 kWh/m²a | Classe energetica C

C

D

E

F

G

MAPPA

Concorezzo comune della Bassa Brianza Orientale o Vimercatese

ANNUNCI SIMILI

VENDITA 20
€ 216.000
Ufficio in Vendita a Concorezzo (Monza e Brianza)
  • Più di 5 locali
  • 160 mq
  • 2 bagni
VENDITA 7
€ 330.000
Ufficio in Vendita a Concorezzo (Monza e Brianza)
  • Più di 5 locali
  • 285 mq
  • 2 bagni
VENDITA 15
€ 90.000
Ufficio in Vendita a Monza (Monza e Brianza)
  • 1 locale
  • 109 mq
  • 1 bagno