Ampi uffici open space ad Agrate Brianza AFFITTO

Via Archimede - Agrate Brianza (Monza e Brianza)
€ 5.500 mensili
  • 2 locali
  • 550 mq
  • 2 bagni

Ufficio in Affitto a Agrate Brianza

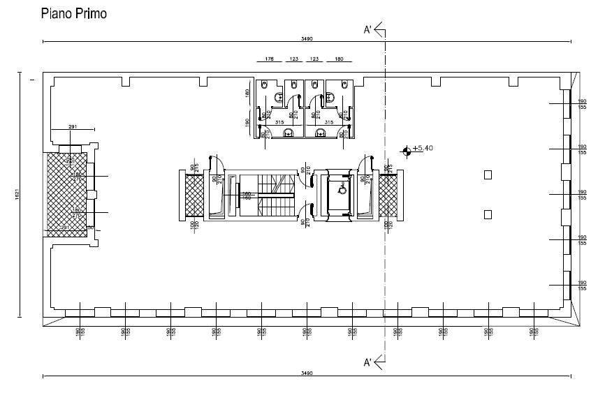
AGRATE BRIANZA in zona industriale direzionale, in contesto recentemente ristrutturato proponiamo UFFICI di varie metrature sviluppati in palazzina con pianta di 550 mq. Canone mensile a partire da 5.500€. Tutti gli uffici sono in classe energetica A+. Possibilità di abbinare ulteriori spazi uffici o magazzini di piccole dimensioni.

CONDIVIDI SUI SOCIAL

DATI PRINCIPALI

Riferimento
131135
Contratto
Affitto
Tipologia
Immobile - Ufficio
Superficie
550 mq
Locali
2
Bagni
2
Piano
1 °
Totale piani
3
Box/Posto auto
Doppio

CARATTERISTICHE

Ascensore Allarme

COSTI

Canone
Affitto € 5.500,00 al mese
Tipo locazione
4+4

EFFICIENZA ENERGETICA

Stato
Ristrutturato
Anno costruzione
2010
Riscaldamento
Centralizzato
Climatizzazione
Si
Classe energetica
C
IPE
175,00 kWh/m²a

A+

A

B

175,00 kWh/m²a | Classe energetica C

C

D

E

F

G

MAPPA

Agrate Brianza comune della Bassa Brianza Orientale o Vimercatese

ANNUNCI SIMILI