CASALE INDIPENDENTE DA RISTRUTTURARE VENDITA

Via Milano - Brenna (Como)
€ 450.000
  • Più di 5 locali
  • 750 mq
  • 1 bagno

Rustico/Casale in Vendita a Brenna

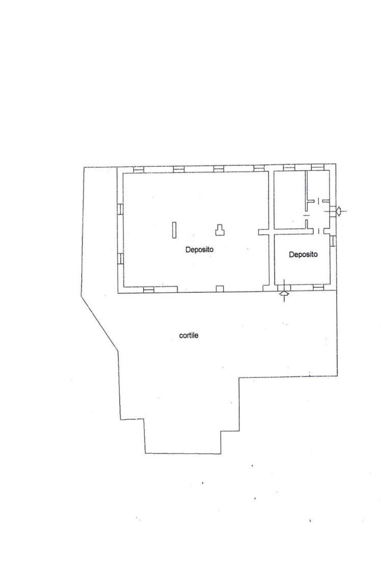
BRENNA : In frazione Pozzolo, Vi proponiamo casale di circa 750 metri inserito in contesto residenziale circondato dal verde.
Possibilità di realizzare più unità abitative, ideale per imprese di costruzioni.
Tetto e facciata ripristinate recentemente.
Contattateci per ricevere maggiori Informazioni
Rif. 36

L' indirizzo dell' immobile è puramente indicativo

( VISITA IL NOSTRO SITO www.edilhouse.net )

In agenzia tante altre proposte per trovare la tua casa! Abbiamo anche il mutuo su misura per te! Se invece hai bisogno di vendere casa tua al miglior prezzo e nel minor tempo chiamaci allo 031.751441 per una VALUTAZIONE GRATUITA e una consulenza professionale. Ci trovi a Mariano Comense (CO), Via VI Novembre 11, visita il nostro sito www.edilhouse.net , mandaci una e-mail all’indirizzo: mediatore.rusconi@libero.it

Tutto il nostro staff è tua completa disposizione
La nostra agenzia immobiliare tratta la vendita e gli affitti di ogni tipo di immobile: appartamenti ,ville, uffici e capannoni a Mariano Comense e in provincia di Como , Monza e Brianza

( Edil House 031 / 751441 ---- www.edilhouse.net )

LEGGI TUTTO

CONDIVIDI SUI SOCIAL

DATI PRINCIPALI

Riferimento
119758
Contratto
Vendita
Tipologia
Rustico/Casale
Superficie
750 mq
Locali
Più di 5
Camere da letto
Più di 5
Cucina
Abitabile
Bagni
1
Piano
1 °
Totale piani
3

CARATTERISTICHE

Ascensore

COSTI

Prezzo
€ 450.000,00

EFFICIENZA ENERGETICA

Stato
Da ristrutturare
Anno costruzione
1900

MAPPA

Brenna comune della Bassa Brianza Comasca

ANNUNCI SIMILI

VENDITA 20
€ 119.000
Rustico/Casale in Vendita a Erba (Como)
  • Più di 5 locali
  • 455 mq
  • 1 bagno
VENDITA 20
Trattativa Riservata
Rustico/Casale in Vendita a Cabiate (Como)
  • Più di 5 locali
  • 800 mq
  • 3 bagni
VENDITA 20
€ 580.000
Rustico/Casale in Vendita a Erba (Como)
  • Più di 5 locali
  • 400 mq
  • 4 bagni
VENDITA 18
€ 140.000
Rustico/Casale in Vendita a Castelmarte (Como)
  • Più di 5 locali
  • 600 mq
  • 3 bagni
VENDITA 20
€ 150.000
Rustico/Casale in Vendita a Asso (Como)
  • Più di 5 locali
  • 580 mq