VERANO BRIANZA: IMMOBILE COMMERCIALE/RESIDENZIALE VENDITA

Piazza della Madonnina - Verano Brianza (Monza e Brianza)
€ 1.050.000
  • Quadrilocale
  • 823 mq
  • 4 bagni

Palazzo/Stabile in Vendita a Verano Brianza

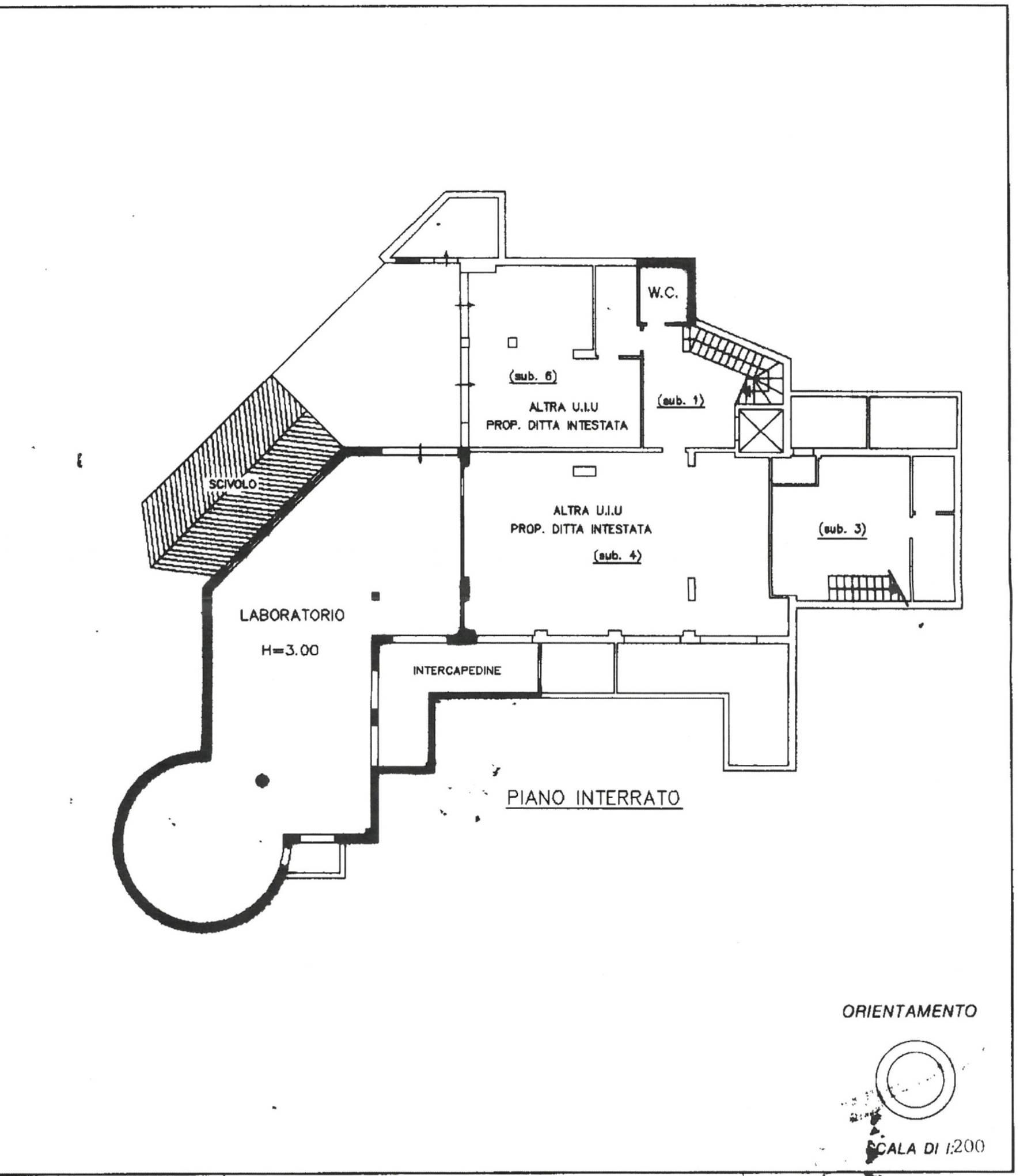
Unità Cielo-Terra Indipendente (830 mq) sulla SP6 – Showroom, Laboratorio e Residenza Proponiamo in vendita un immobile cielo-terra di recente costruzione, caratterizzato da un’eccellente visibilità commerciale e finiture di alto standing. La proprietà è ideale per chi cerca una soluzione "chiavi in mano" pronta all'uso. Layout e Superfici: Showroom (PT): 310 mq, H 3mt, vetrate perimetrali (E/S/O), uffici e servizi. Laboratorio (S1): 150 mq a norma ASL, con climatizzazione e accesso carraio per furgoni/camion. Negozio Secondario: Unità autonoma con magazzino, facilmente unificabile allo showroom. Residenza (P1+P2): Plurilocale di alto livello collegato da ascensore, con ampie terrazze vivibili e finiture extra-capitolato. Dotazioni Tecniche: Sicurezza: Allarme volumetrico e perimetrale su tutto l'edificio. Comfort: Climatizzazione estiva, riscaldamento a condensazione, infissi in alluminio doppio vetro. Esterni: Giardino di 800 mq con irrigazione automatica, box doppio motorizzato e ampio parcheggio pubblico antistante. In posizione strategica e di forte passaggio con visibilità dalla SP6, e con un ampio parcheggio antistante, proponiamo in vendita un interessante IMMOBILE INDIPENDENTE USO COMMERCIALE + RESIDENZIALE composto da due luminosi negozi al piano terra, un laboratorio al piano seminterrato ed una meravigliosa abitazione dotata anche di ingresso indipendente oltre boxes e giardino circostante di 800 mq. L’immobile, di recente costruzione, si presenta in perfette condizioni sia interne che esterne, pronto all’uso e ideale per molteplici attività commerciali o professionali. Ottima visibilità grazie alle vetrine sulla SP6 ed al comodo parcheggio. Il negozio più ampio ha una superficie di 310 mq., gode di un'altezza di 3 mt e di innumerevoli vetrate ad est/sud ed ovest che gli donano una gradevole luce naturale; dotato di bagno, di zona ufficio e retro. Pavimenti in marmo e parquet, pareti in mattoni a vista. Caldaia a condensazione autonoma e con impianto per la climatizzazione estiva, impianto d'allarme perimetrale e volumetrico. Al piano seminterrato un luminoso laboratorio di 150 mq. certificato ASL accessibile sia dall'interno che dall'esterno attraverso un agevole accesso carraio ideale per carico e scarico merci per camion e furgoni. Laboratorio dotato di ventilazione meccanica, riscaldamento e raffrescamento, oltre a bagno dipendenti. Il secondo negozio (unibile al principale) ha un suo ingresso indipendente ed usufruisce di un piano seminterrato, collegato da scala interna, dove troviamo un magazzino ed il bagno. Con accesso indipendente, ma anche tramite la scala che collega tutte le unità e l'ascensore che serve tutti i piani, accediamo al bellissimo appartamento composto da un salone con affaccio sulla terrazza ad ovest dotata di pergola, cucina abitabile; disimpegno notte con due camere da letto e bagno; tramite una scenografica scala in muratura accediamo al piano superiore dove troviamo una zona salotto/living con accesso ad un altro terrazzo e vari balconi, una master room con balconi alla francese; cabina armadio e ampio bagno an suite. Completa la soluzione residenziale una comoda cantina con ripostiglio e locale caldaia: Le finiture dell'appartamento sono di alto standing: parquet lapacho africano, scala rifinita in marmo, parapetti in ferro battuto, infissi in alluminio doppio vetro, persiane in alluminio e legno, aria condizionata, impianto d'allarme perimetrale e volumetrico. A completamento dell'intera proprietà un box doppio in larghezza con doppia basculante motorizzata ed un giardino ben piantumato di 800 mq. con irrigazione automatica. Una splendida cancellata in ferro battuto incornicia l'intera proprietà.

LEGGI TUTTO

CONDIVIDI SUI SOCIAL

DATI PRINCIPALI

Riferimento
132210
Contratto
Vendita
Tipologia
Palazzo/Stabile
Superficie
823 mq
Locali
4
Bagni
4
Piano
1 °
Totale piani
3
Box/Posto auto
Doppio

CARATTERISTICHE

Ascensore

COSTI

Prezzo
€ 1.050.000,00

EFFICIENZA ENERGETICA

Stato
Ristrutturato
Anno costruzione
1995
Riscaldamento
Autonomo
Climatizzazione
Si
Classe energetica
D
IPE
175,00 kWh/m²a

A+

A

B

C

175,00 kWh/m²a | Classe energetica D

D

E

F

G

MAPPA

Verano Brianza comune della Bassa Brianza Centrale Nord

ANNUNCI SIMILI

VENDITA 18
€ 890.000
Palazzo/Stabile in Vendita a Carate Brianza (Monza e Brianza)
  • Più di 5 locali
  • 660 mq
  • 2 bagni
VENDITA 20
€ 980.000
Palazzo/Stabile in Vendita a Seregno (Monza e Brianza)
  • Più di 5 locali
  • 810 mq
  • 4 bagni
VENDITA 20
€ 349.000
Palazzo/Stabile in Vendita a Triuggio (Monza e Brianza)
  • Più di 5 locali
  • 812 mq
  • 4 bagni
VENDITA 20
€ 198.000
Palazzo/Stabile in Vendita a Renate (Monza e Brianza)
  • Più di 5 locali
  • 631 mq
  • 4 bagni