PRESTIGIOSO SPAZIO COMMERCIALE VENDITA

Via Villafranca - Carate Brianza (Monza e Brianza)
€ 890.000
  • Più di 5 locali
  • 660 mq
  • 2 bagni

Palazzo/Stabile in Vendita a Carate Brianza

Rif. ESP1

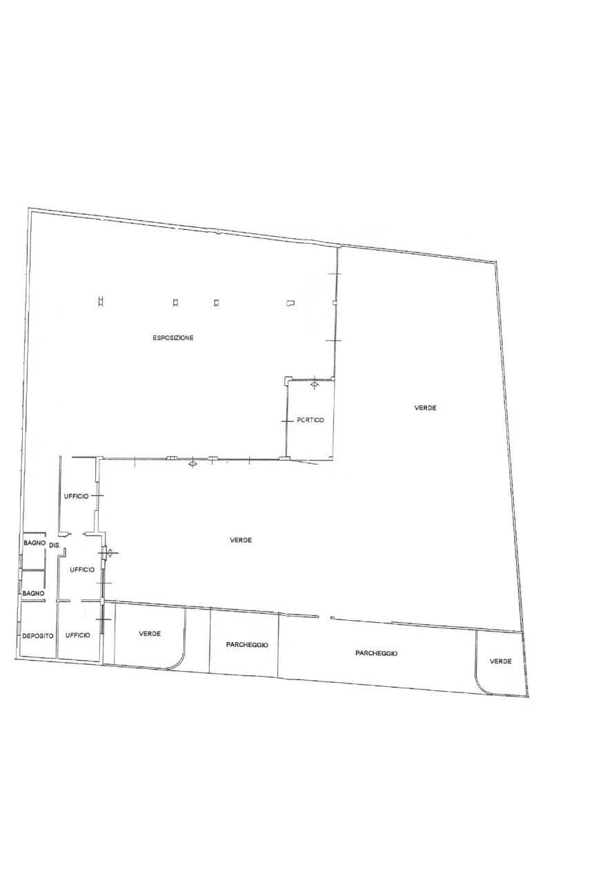
Spazio commerciale di circa 600 mq con ampia visibilità.

L’immobile si distingue per ampie vetrine fronte strada‚ che garantiscono eccellente visibilità e grande luminosità naturale.

Inserito in contesto architettonico moderno. La distribuzione interna degli spazi è molto versatile e si adatta a diverse attività commerciali; ideale per retail di alto profilo‚ showroom‚ sedi di rappresentanza o attività che necessitano di spazi moderni in location strategica.

La proprietà è dotata di vasta area esterna di circa 600 mq‚ utilizzabile come parcheggio privato per clienti e dipendenti o per ulteriori esigenze operative.

Posizione strategica‚ comoda per il centro cittadino e per il rapido accesso alla SS36‚ con collegamenti veloci verso Monza‚ Milano e Lecco.

(La presente scheda non costituisce forma di contratto‚ le informazioni qui contenute sono da ritenersi del tutto indicative e non potranno essere utilizzate come parte integrante di un eventuale contratto di vendita. Inoltre non vincola in alcun modo la società.)

LEGGI TUTTO

CONDIVIDI SUI SOCIAL

DATI PRINCIPALI

Riferimento
129955
Contratto
Vendita
Tipologia
Palazzo/Stabile
Superficie
660 mq
Locali
Più di 5
Bagni
2
Piano
Piano terra
Totale piani
1
Box/Posto auto
Doppio

CARATTERISTICHE

Ascensore

COSTI

Prezzo
€ 890.000,00

EFFICIENZA ENERGETICA

Stato
Ristrutturato
Riscaldamento
Autonomo
Classe energetica
G
IPE
175,00 kWh/m²a

A+

A

B

C

D

E

F

175,00 kWh/m²a | Classe energetica G

G

MAPPA

Carate Brianza comune della Bassa Brianza Centrale Nord

ANNUNCI SIMILI

VENDITA 20
€ 980.000
Palazzo/Stabile in Vendita a Seregno (Monza e Brianza)
  • Più di 5 locali
  • 810 mq
  • 4 bagni
VENDITA 20
€ 349.000
Palazzo/Stabile in Vendita a Triuggio (Monza e Brianza)
  • Più di 5 locali
  • 812 mq
  • 4 bagni
VENDITA 20
€ 198.000
Palazzo/Stabile in Vendita a Renate (Monza e Brianza)
  • Più di 5 locali
  • 631 mq
  • 4 bagni