PALAZZINA INTERA DA RISTRUTTURARE A OSNAGO VENDITA

Piazza N. Sauro - Osnago (Lecco)
€ 390.000
  • Più di 5 locali
  • 870 mq
  • 4 bagni

Palazzo/Stabile in Vendita a Osnago

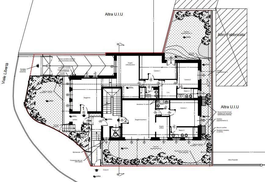
OSNAGO Centro - In zona comoda con tutti i servizi del paese, quali ad esempio banche, posta, stazione ferroviaria e municipio, proponiamo intera palazzina di c.a 870 mq disposta su tre livelli oltre al piano interrato con giardino privato che circonda la proprietà. La soluzione, edificata indicativamente negli anni '80 è completamente da ristrutturare. E' già presente un progetto approvato per la realizzazione di 5 unità immobiliari con terrazzi, oltre box, cantine e giardini privati. Disponibili nella sezione fotografie la piantine dei singoli appartamenti come da progetto. Il progetto attuale può essere modificato a seconda delle esigenze. Ulteriori informazioni in ufficio.

LEGGI TUTTO

CONDIVIDI SUI SOCIAL

DATI PRINCIPALI

Riferimento
128763
Contratto
Vendita
Tipologia
Palazzo/Stabile
Superficie
870 mq
Locali
Più di 5
Bagni
4
Piano
Piano terra

CARATTERISTICHE

Ascensore

COSTI

Prezzo
€ 390.000,00

MAPPA

Osnago comune della Brianza Meratese

ANNUNCI SIMILI

VENDITA 19
€ 390.000
Palazzo/Stabile in Vendita a Osnago (Lecco)
  • Più di 5 locali
  • 870 mq
  • 4 bagni
VENDITA 20
€ 100.000
Palazzo/Stabile in Vendita a La Valletta Brianza (Lecco)
  • Più di 5 locali
  • 492 mq
  • 4 bagni
VENDITA 20
€ 210.000
Palazzo/Stabile in Vendita a Molteno (Lecco)
  • Più di 5 locali
  • 225 mq
  • 3 bagni