ZONA BENNET - AMPIO NEGOZIO LIBERO SUBITO VENDITA

Viale Lombardia 277 - Brugherio (Monza e Brianza)
€ 110.000
  • 2 locali
  • 121 mq
  • 1 bagno

Negozio in Vendita a Brugherio

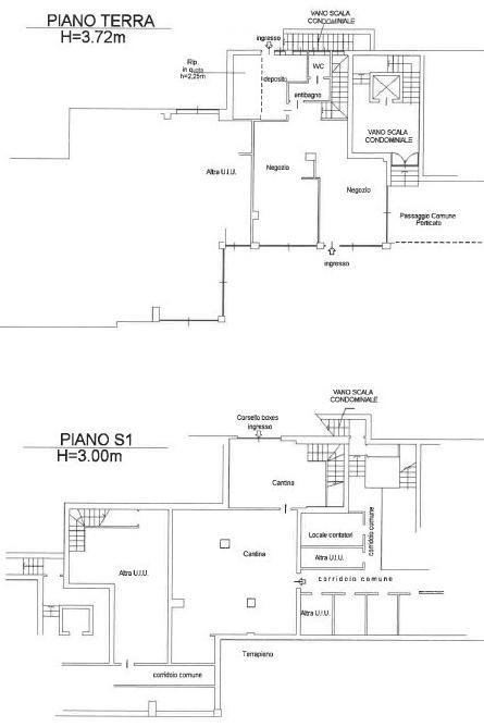
V.LE LOMBARDIA – Nel condominio di fronte al centro commerciale Bennet proponiamo in vendita un NEGOZIO di 120mq, diviso in due ambienti, più locale ripostiglio con secondo ingresso sul retro, antibagno e bagno.

Inoltre al piano interrato, collegato mediante scala interna, troviamo un ampio locale deposito.

L’immobile è in buone condizioni interne, ha tre vetrine ed è libero subito!

AD € 110.000

PER INFORMAZIONI O APPUNTAMENTI CONTATTARE LA GRUPPO CASA BRUGHERIO ALLO 039/882722

CONDIVIDI SUI SOCIAL

DATI PRINCIPALI

Riferimento
127507
Contratto
Vendita
Tipologia
Immobile - Negozio
Superficie
121 mq
Locali
2
Bagni
1
Piano
Piano terra
Totale piani
5

CARATTERISTICHE

Ascensore

COSTI

Prezzo
€ 110.000,00

EFFICIENZA ENERGETICA

Stato
Abitabile
Anno costruzione
1970
Riscaldamento
Centralizzato
Classe energetica
G
IPE
275,50 kWh/m²a

A+

A

B

C

D

E

F

275,50 kWh/m²a | Classe energetica G

G

MAPPA

Brugherio comune della Bassa Brianza Centrale Sud

ANNUNCI SIMILI

VENDITA 7
€ 85.000
Negozio in Vendita a Monza, Zona San Rocco
  • 2 locali
  • 50 mq
  • 1 bagno