€ 180.000
  • 4 locali
  • 150 mq
  • 3 bagni

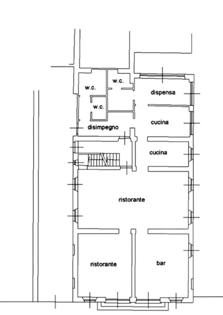
Negozio in Vendita a Carnate

Vendesi attività di ristorazione a Carnate
Storica trattoria/ristorante ben avviata, con ambiente caldo e accogliente in stile tradizionale. Locale arredato con gusto, pronto all’uso e ideale per gestione familiare. Situata in posizione comoda e di passaggio, con clientela fidelizzata. Ottima opportunità per chi desidera avviare o ampliare la propria attività nel settore della ristorazione.

CONDIVIDI SUI SOCIAL

DATI PRINCIPALI

Riferimento
127968
Contratto
Vendita
Tipologia
Immobile - Negozio
Superficie
150 mq
Locali
4
Bagni
3
Piano
Piano terra
Totale piani
1
Box/Posto auto
Doppio

CARATTERISTICHE

Ascensore Arredato

COSTI

Prezzo
€ 180.000,00

EFFICIENZA ENERGETICA

Stato
Abitabile
Riscaldamento
Autonomo
Classe energetica
F
IPE
175,00 kWh/m²a

A+

A

B

C

D

E

175,00 kWh/m²a | Classe energetica F

F

G

MAPPA

Carnate comune della Bassa Brianza Orientale o Vimercatese

ANNUNCI SIMILI