Negozio Ufficio su strada di forte passaggio AFFITTO

VIA CANTURINA, 13 - Capiago Intimiano (Como)
€ 790 mensili
  • 1 locale
  • 76 mq

Negozio in Affitto a Capiago Intimiano

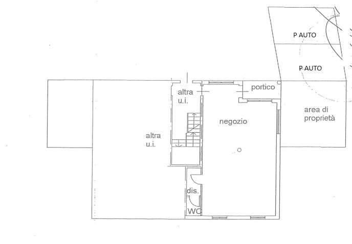
Tra Cantù e Como su strada provinciale di fortissimo passaggio negozio/ufficio con ingresso indipendente posto al piano terreno composto da unico locale e servizio (eventualmente divisibile).

Ottima posizione fronte strada con vetrina, annesso al negozio sono compresi due posti auto di proprietà esclusiva, un'area di 28 mq ad uso spazio esterno o ulteriori due posti auto
Comoda autorimessa singola di generose dimensioni ed un posto auto coperto.

L’immobile e libero a partire dal 01/07/2024.

Si richiedono referenze e garanzie

CONDIVIDI SUI SOCIAL

DATI PRINCIPALI

Riferimento
111949
Contratto
Affitto
Tipologia
Immobile - Negozio
Superficie
76 mq
Locali
1
Box/Posto auto
Doppio

CARATTERISTICHE

Ascensore

COSTI

Canone
Affitto € 790,00 al mese
Tipo locazione
4+4
Spese condominiali
€ 33,00 / mese, non incluse nel canone

EFFICIENZA ENERGETICA

Stato
Ristrutturato
Anno costruzione
2005
Riscaldamento
Autonomo
Classe energetica
F
IPE
176,82 kWh/m²a

A+

A

B

C

D

E

176,82 kWh/m²a | Classe energetica F

F

G

MAPPA

Capiago Intimiano comune della Bassa Brianza Comasca