NEGOZIO/UFFICIO in AFFITTO a CERNUSCO LOMBARDONE AFFITTO

Via Spluga 52 - Cernusco Lombardone (Lecco)
€ 4.170 mensili
  • 1 locale
  • 210 mq
  • 2 bagni

Negozio in Affitto a Cernusco Lombardone

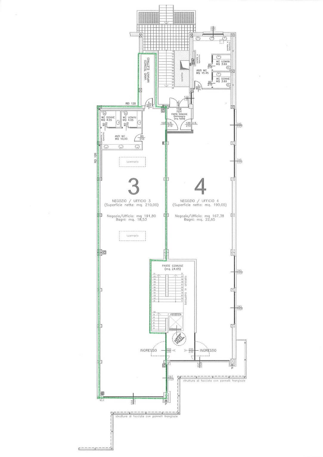
Cernusco Lombardone, zona commerciale, fronte provinciale, ampio parcheggio privato, (4 posti auto interni ) oltre piazzale esterno, completamente ristrutturato a nuovo, in classe energetica "A", AFFITTIAMO NEGOZIO/UFFICIO posto al piano primo: mq 210. Pronta consegna.

CONDIVIDI SUI SOCIAL

DATI PRINCIPALI

Riferimento
132100
Contratto
Affitto
Tipologia
Immobile - Negozio
Superficie
210 mq
Locali
1
Bagni
2
Piano
1 °
Totale piani
1
Box/Posto auto
Doppio

CARATTERISTICHE

Ascensore

COSTI

Canone
Affitto € 4.170,00 al mese
Tipo locazione
4+4

EFFICIENZA ENERGETICA

Stato
Ristrutturato
Anno costruzione
2013
Riscaldamento
Autonomo
Climatizzazione
Si
Classe energetica
A
IPE
5,62 kWh/m²a

A+

5,62 kWh/m²a | Classe energetica A

A

B

C

D

E

F

G

MAPPA

Cernusco Lombardone comune della Brianza Meratese

ANNUNCI SIMILI

AFFITTO 14
€ 600 mensili
Negozio in Affitto a Missaglia (Lecco)
  • 1 locale
  • 41 mq
  • 1 bagno