Negozio in affitto a Biassono AFFITTO

Via Alberto da Giussano - Biassono (Monza e Brianza)
€ 950 mensili
  • 3 locali
  • 70 mq
  • 1 bagno

Negozio in Affitto a Biassono

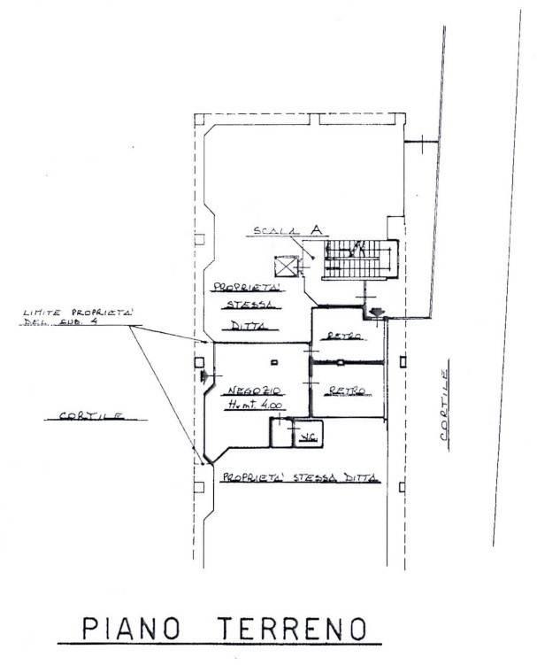
Scopri questo spazioso negozio di 70 mq situato al piano terra, perfetto per dare vita alla tua attività! Il locale si trova in un contesto che ha subito recentemente il rifacimento della facciata, garantendo un ambiente accogliente e moderno. L'ingresso conduce a un open space luminoso, ideale per esporre i tuoi prodotti o servizi, disimpegno che conduce ad altre due stanze chiuse e perfette per uffici o sale riunioni, oltre a un servizio ben posizionato.
Completa la soluzione un'ulteriore porta d'uscita.

Il riscaldamento autonomo e l'aria condizionata assicurano il massimo comfort durante tutto l'anno.

Non perdere questa opportunità unica e contattaci per una visita.

LEGGI TUTTO

CONDIVIDI SUI SOCIAL

DATI PRINCIPALI

Riferimento
133028
Contratto
Affitto
Tipologia
Immobile - Negozio
Superficie
70 mq
Locali
3
Bagni
1
Piano
Piano terra
Totale piani
2

CARATTERISTICHE

Ascensore

COSTI

Canone
Affitto € 950,00 al mese
Tipo locazione
4+4
Spese condominiali
€ 100,00 / mese, non incluse nel canone

EFFICIENZA ENERGETICA

Stato
Abitabile
Anno costruzione
1990
Riscaldamento
Autonomo
Climatizzazione
Si
Classe energetica
E
IPE
425,78 kWh/m²a

A+

A

B

C

D

425,78 kWh/m²a | Classe energetica E

E

F

G

MAPPA

Biassono comune della Bassa Brianza Centrale Sud

ANNUNCI SIMILI