MONZA - SAN CARLO/FS: negozio fronte strada di 68 mq VENDITA

Via 20 Settembre 2 - Monza (Monza e Brianza)
€ 100.000
  • 2 locali
  • 68 mq
  • 1 bagno

Negozio in Vendita a Monza

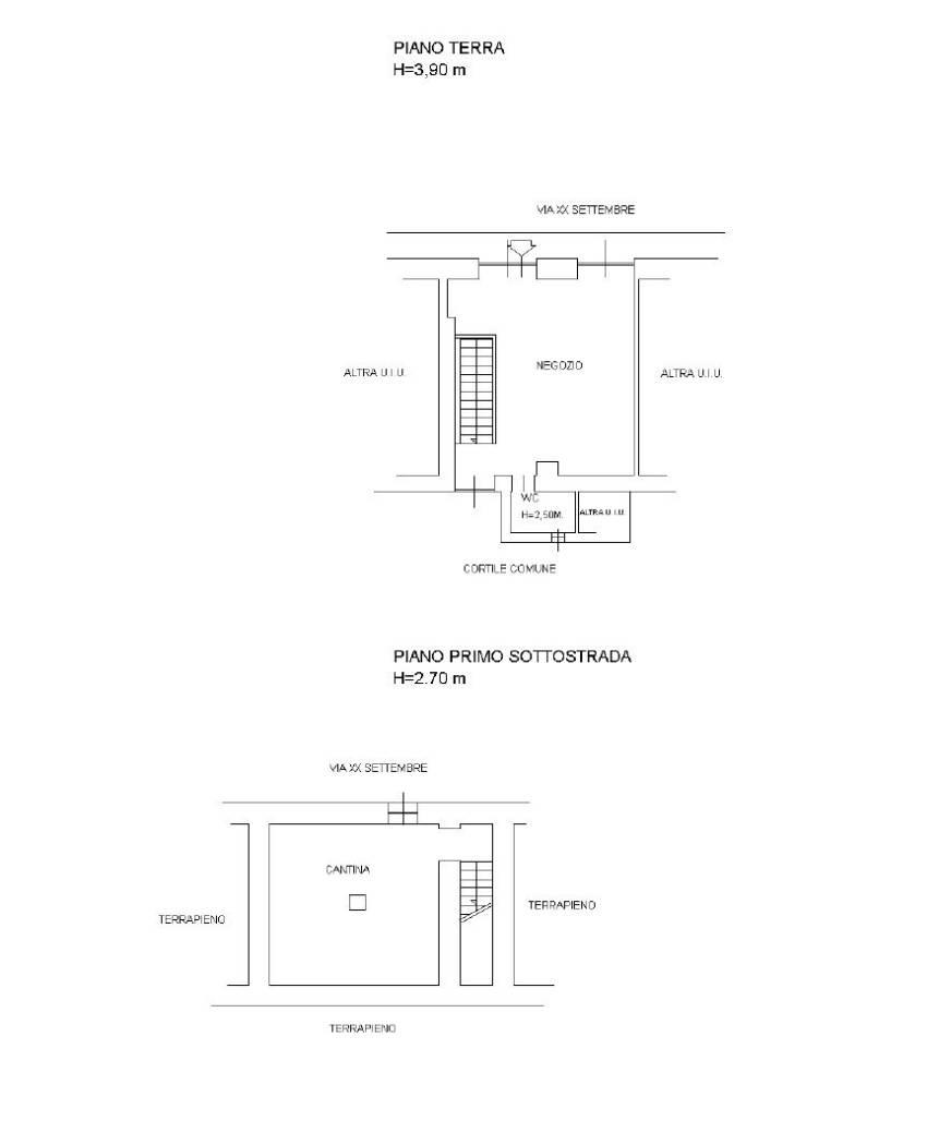
MONZA - SAN CARLO: in posizione strategica, a 100 mt dalla stazione FS e a 5 minuti dal centro storico, ROYAL IMMOBILI & INVESTIMENTI propone in vendita un interessante negozio di 68 mq.
L'immobile dotato di doppia vetrina ha un ingresso su strada, si compone da ampio locale open space di circa 40 mq, antibagno e bagno.
Tramite una scala interna si accede al piano inferiore dove troviamo un comodo vano open space di 28 mq ad uso deposito/magazzino
Internamente si presenta in ottimo stato, pavimento in prefinito, serramenti in alluminio - doppio vetro, riscaldamento autonomo, ingresso dal retro.
Ottimo anche per investimento.

LIBERO SUBITO

LEGGI TUTTO

CONDIVIDI SUI SOCIAL

DATI PRINCIPALI

Riferimento
133517
Contratto
Vendita
Tipologia
Immobile - Negozio
Superficie
68 mq
Locali
2
Bagni
1
Piano
Piano terra
Totale piani
3

CARATTERISTICHE

Ascensore

COSTI

Prezzo
€ 100.000,00
Spese condominiali
€ 63,00 / mese

EFFICIENZA ENERGETICA

Stato
Ristrutturato
Anno costruzione
1920
Riscaldamento
Autonomo
Classe energetica
D
IPE
423,88 kWh/m²a

A+

A

B

C

423,88 kWh/m²a | Classe energetica D

D

E

F

G

MAPPA

Monza comune della Bassa Brianza Centrale Sud

ANNUNCI SIMILI