LUMINOSO SPAZIO COMMERCIALE / USO UFFICIO SLP 165 MQ VENDITA

Via Emilio Brasca - Trezzo sull'Adda (Milano)
€ 145.000
  • Più di 5 locali
  • 166 mq
  • 2 bagni

Negozio in Vendita a Trezzo sull'Adda

In Vendita: Loft Open-Space Unico a Cornate D'Adda

Nelle immediate vicinanze del centro commerciale "Il Globo" e a soli 10 minuti di auto dal centro di Trezzo sull'Adda, proponiamo in vendita una straordinaria soluzione di loft open-space, attualmente adibita a spazio commerciale, ma con la possibilità di trasformazione in ufficio.

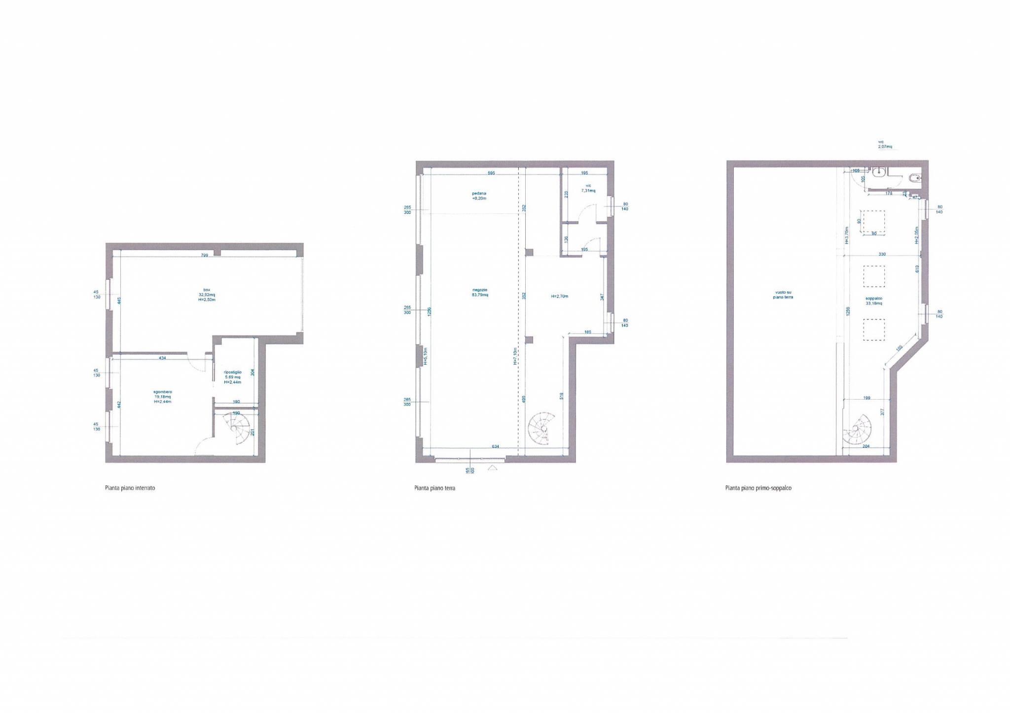
Dettagli dell'immobile:

Superficie totale: 90 mq al piano terra + 40 mq al primo piano soppalcato + 26 mq al piano interrato
Ingresso indipendente: Accesso diretto al piano terra
Luminosità: Ampie vetrate su strada garantiscono un'illuminazione naturale eccezionale
Piano terra: Spazio di circa 90 mq con antibagno e bagno
Primo piano: Soppalco di 40 mq con velux e finestre, completo di ulteriore bagno
Piano interrato: 26 mq da adibire a magazzino o deposito
Box singolo: Ampio box di 32 mq con doppio accesso carraio, sia frontale che posteriore
Le immagini sono a scopo illustrativo e mostrano possibili progetti per sfruttare al meglio gli spazi.

Ottima opportunità per professionisti o per chi cerca un investimento!

Per maggiori informazioni e per prenotare una visita, non esitate a contattarci!

LEGGI TUTTO

CONDIVIDI SUI SOCIAL

DATI PRINCIPALI

Riferimento
130644
Contratto
Vendita
Tipologia
Immobile - Negozio
Superficie
166 mq
Locali
5
Bagni
2
Piano
1 °
Totale piani
1
Box/Posto auto
Singolo

CARATTERISTICHE

Ascensore

COSTI

Prezzo
€ 145.000,00
Spese condominiali
€ 43,00 / mese

EFFICIENZA ENERGETICA

Stato
Ristrutturato
Anno costruzione
1986
Riscaldamento
Centralizzato
Climatizzazione
Si
Classe energetica
F
IPE
57,53 kWh/m²a

A+

A

B

C

D

E

57,53 kWh/m²a | Classe energetica F

F

G

MAPPA

Trezzo sull'Adda comune del Territorio Trezzese

ANNUNCI SIMILI

VENDITA 13
€ 220.000
Negozio in Vendita a Cologno Monzese (Milano)
  • Più di 5 locali
  • 270 mq
  • 2 bagni
VENDITA 14
€ 220.000
Negozio in Vendita a Cologno Monzese (Milano)
  • Più di 5 locali
  • 391 mq
  • 2 bagni
VENDITA 14
€ 210.000
Negozio in Vendita a Cologno Monzese (Milano)
  • Più di 5 locali
  • 391 mq
  • 2 bagni