Locale commerciale in Vendita VENDITA

corso giacomo matteotti 59 - Seregno (Monza e Brianza)
€ 330.000
  • 1 locale
  • 121 mq
  • 2 bagni

Negozio in Vendita a Seregno

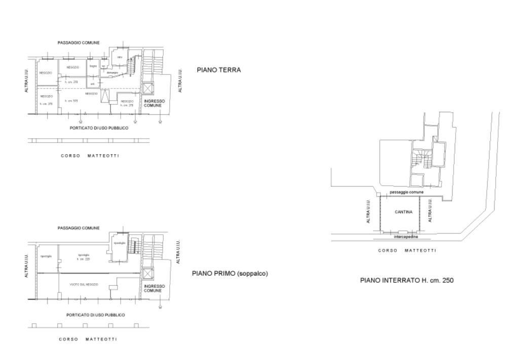
Nel pieno centro di Seregno, in una delle vie più belle e riconoscibili della città, proponiamo negozio di circa 121 mq con spazi interni già organizzati in modo estremamente funzionale e pronto a rispondere a diverse esigenze commerciali o professionali.
L’immobile si sviluppa con un’ampia superficie principale che garantisce ottima visibilità e forte passaggio pedonale, ideale per chi cerca una posizione “prime” dove farsi notare davvero.
Gli ambienti interni sono razionalizzati e sfruttati al meglio grazie alla presenza di più cabine, perfette per attività che richiedono aree riservate, postazioni di lavoro, prove o consulenze, mantenendo al tempo stesso una parte di accoglienza ordinata e professionale.
A completare la proprietà troviamo due bagni, un plus raro e molto comodo sia per l’operatività quotidiana sia per la gestione del personale e della clientela.
È presente inoltre un soppalco, utile come area archivio, deposito, magazzino o spazio tecnico, aumentando la capacità di stoccaggio e rendendo l’organizzazione ancora più semplice.
L’immobile è inoltre dotato di condizionamento autonomo, per una gestione indipendente del comfort in ogni stagione.
Soluzione particolarmente interessante anche per chi valuta un acquisto in ottica di investimento, poiché l’immobile è attualmente locato, con redditività già avviata e senza tempi morti.
Se cerchi una posizione centrale vera, un taglio metrico importante e una distribuzione interna già pronta, questa è una proposta che merita attenzione.

LEGGI TUTTO

CONDIVIDI SUI SOCIAL

DATI PRINCIPALI

Riferimento
126587
Contratto
Vendita
Tipologia
Immobile - Negozio
Superficie
121 mq
Locali
1
Bagni
2
Totale piani
5

CARATTERISTICHE

Ascensore

COSTI

Prezzo
€ 330.000,00

EFFICIENZA ENERGETICA

Stato
Abitabile
Anno costruzione
1967
Riscaldamento
Autonomo
Climatizzazione
Si
Classe energetica
G
IPE
300,00 kWh/m²a

A+

A

B

C

D

E

F

300,00 kWh/m²a | Classe energetica G

G

MAPPA

Seregno comune della Bassa Brianza Centrale Sud

ANNUNCI SIMILI