€ 480.000
  • Più di 5 locali
  • 535 mq
  • 2 bagni

Negozio in Vendita a Carate Brianza

Zona Viale Brianza – Intera palazzina con area privata
In una posizione strategica e di grande visibilità, su strada ad alto passaggio e a pochi passi da servizi, negozi, scuole e mezzi di trasporto, proponiamo in vendita un’intera palazzina a destinazione mista, artigianale e residenziale, dotata di ampia area privata.
L’edificio, originario della metà degli anni ’60 e ristrutturato nel 1983 e nei primi anni 2000, si presenta in ottimo stato e offre spazi versatili adatti a diverse esigenze.
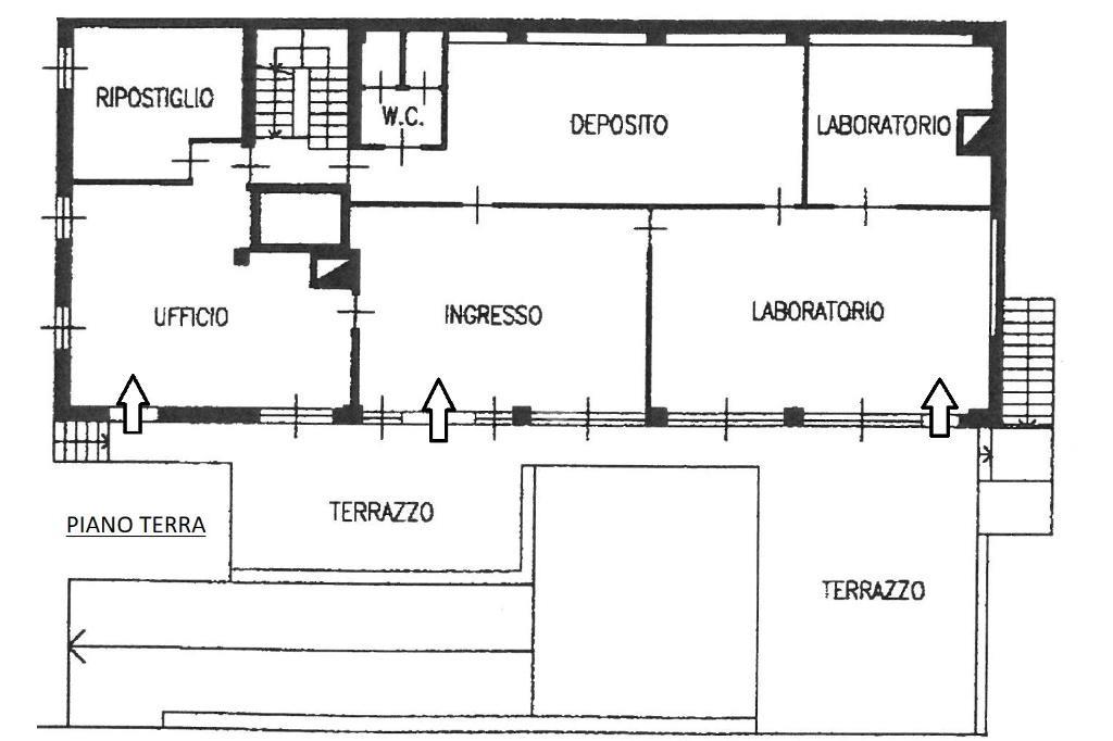
Piano rialzato (250 mq ca.): laboratorio artigianale con uffici, servizi e due ampi terrazzi (84 mq complessivi).
Piano seminterrato (220 mq ca.): accessibile sia dal cortile che dal laboratorio, comprende un magazzino suddiviso in tre ambienti, locale caldaia, deposito aggiuntivo di 20 mq e box triplo di 48 mq.
Primo piano (80 mq ca.): appartamento indipendente composto da tre locali, bagno ristrutturato nel 2015 e balconata con accesso diretto al lastrico solare di circa 170 mq, che sovrasta il laboratorio.
La palazzina è collegata internamente da una scala e offre la possibilità di ripristinare un montacarichi per 4/6 persone.
All’esterno dispone di circa 300 mq di area privata, tra cortile, parcheggio e giardino.
Dotazioni e finiture:
Pavimenti in ceramica in tutti gli ambienti.
Infissi in alluminio con doppi vetri.
Riscaldamento e climatizzazione separati negli spazi artigianali, con pompe di calore; impianto tradizionale con caldaia autonoma per l’abitazione.
Impianto elettrico del laboratorio a norma, rifatto nel 2021 (220/380V – 16Kw).
Videosorveglianza con 12 telecamere e antifurto volumetrico a zone.
Cancello elettrico, illuminazione centralizzata del cortile e impianto di irrigazione automatica per il giardino.
Un immobile completo, ideale per chi cerca una soluzione che unisca spazi lavorativi e abitativi nello stesso contesto, con la comodità di una posizione servita e facilmente raggiungibile.
La nostra agenzia immobiliare, affiliata Tecnocasa, presente sul territorio di Carate Brianza e frazioni dal 1987, si occupa dell'intermediazione per la vendita e locazione di immobili residenziali e commerciali offrendo un servizio a 360°, accompagnando i clienti in tutte le fasi della compravendita fino e anche oltre al rogito.

LEGGI TUTTO

CONDIVIDI SUI SOCIAL

DATI PRINCIPALI

Riferimento
129860
Contratto
Vendita
Tipologia
Immobile - Negozio
Superficie
535 mq
Locali
5
Bagni
2
Piano
1 °
Totale piani
2
Box/Posto auto
Doppio

CARATTERISTICHE

Ascensore Semi-arredato Allarme

COSTI

Prezzo
€ 480.000,00

EFFICIENZA ENERGETICA

Stato
Abitabile
Anno costruzione
1965
Riscaldamento
Autonomo
Climatizzazione
Si
Classe energetica
F
IPE
214,11 kWh/m²a

A+

A

B

C

D

E

214,11 kWh/m²a | Classe energetica F

F

G

MAPPA

Carate Brianza comune della Bassa Brianza Centrale Nord

ANNUNCI SIMILI

VENDITA 20
€ 285.000
Negozio in Vendita a Meda (Monza e Brianza)
  • Più di 5 locali
  • 360 mq
  • 3 bagni