COLNAGO, LUMINOSO SPAZIO COMMERCIALE/USO UFFICIO SLP 165 MQ VENDITA

Via Lanzi - Cornate d'Adda (Monza e Brianza)
€ 145.000
  • Più di 5 locali
  • 166 mq
  • 2 bagni

Negozio in Vendita a Cornate d'Adda

In Vendita: Luminoso Spazio Commerciale/Ufficio a Colnago - SLP 165 mq

Rif. NT513L BERETTA

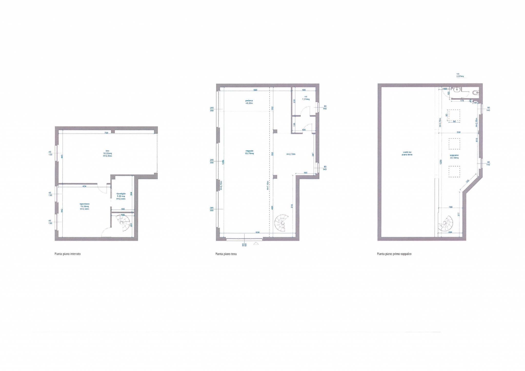
Se stai cercando un ambiente unico e versatile per la tua attività, non perdere questa straordinaria opportunità! Proponiamo in vendita un loft open-space di circa 165 mq, attualmente adibito a spazio commerciale ma facilmente convertibile in ufficio.

Dettagli della Proprietà:

Piano Terra (90 mq): Ingresso indipendente con 3 ampie vetrate su strada che garantiscono una luminosità eccezionale. Completano il piano un antibagno e un bagno.

Primo Piano Soppalcato (40 mq): Accesso tramite scala, dotato di velux e finestre che offrono una vista aperta e un’illuminazione naturale. Ulteriore bagno presente al piano.

Piano Interrato (26 mq): Spazio ideale da utilizzare come magazzino o deposito, perfetto per le tue esigenze di stoccaggio.

Box Singolo (32 mq): Ampio box con doppio accesso carraio, sia sul fronte che sul retro, per una maggiore comodità.

Le immagini sono a scopo illustrativo e propongono idee progettuali per l'ottimizzazione degli spazi.

Non perdere l'occasione di investire in un'ottima soluzione che unisce funzionalità e stile! Contattaci per maggiori informazioni e per fissare una visita.

LEGGI TUTTO

CONDIVIDI SUI SOCIAL

DATI PRINCIPALI

Riferimento
130643
Contratto
Vendita
Tipologia
Immobile - Negozio
Superficie
166 mq
Locali
5
Bagni
2
Piano
1 °
Totale piani
1
Box/Posto auto
Singolo

CARATTERISTICHE

Ascensore

COSTI

Prezzo
€ 145.000,00
Spese condominiali
€ 43,00 / mese

EFFICIENZA ENERGETICA

Stato
Ristrutturato
Anno costruzione
1986
Riscaldamento
Centralizzato
Climatizzazione
Si
Classe energetica
F
IPE
57,53 kWh/m²a

A+

A

B

C

D

E

57,53 kWh/m²a | Classe energetica F

F

G

MAPPA

Cornate d'Adda comune della Bassa Brianza Orientale o Vimercatese

ANNUNCI SIMILI

VENDITA 5
€ 140.000
Negozio in Vendita a Arcore (Monza e Brianza)
  • Più di 5 locali
  • 200 mq
  • 3 bagni