AMPIO NEGOZIO CON TRE VETRINE - AFFACCIO SU STRADA - PARCO VENDITA

Via Angelo Ramazzotti 22 - Monza, Zona Parco
€ 580.000
  • 3 locali
  • 150 mq
  • 2 bagni

Negozio in Vendita a Monza

Via Ramazzotti
In posizione strategica e di forte passaggio, a due passi dal Parco di Monza e dall'Ospedale San Gerardo, proponiamo in vendita interessante negozio di tre vetrine su strada.

Internamente si presenta in buone condizioni.
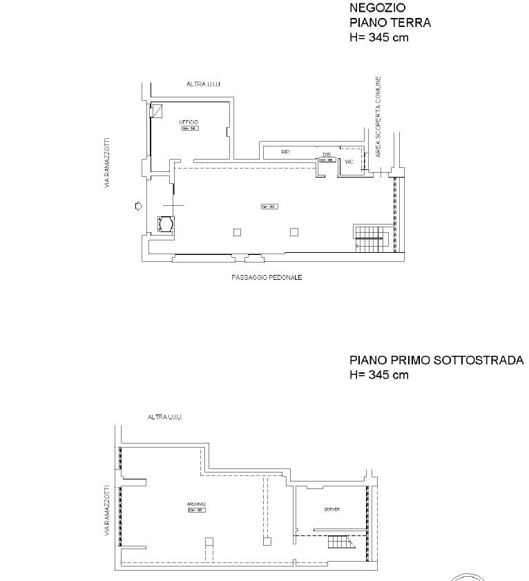
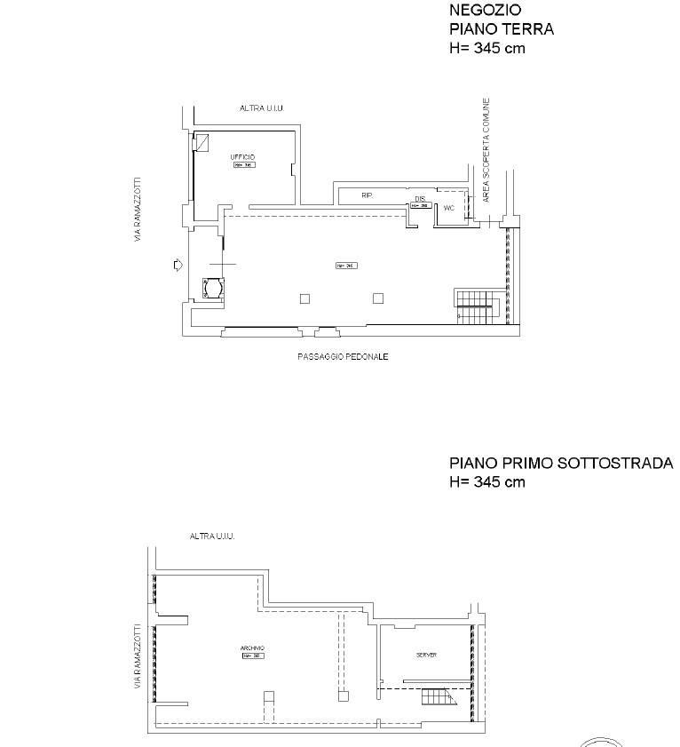
La soluzione è disposta su due livelli.
Piano terra, di circa 120 mq ed altezza di circa 3,45.
Piano Seminterrato ( adibito a magazzino/deposito) di circa 105 mq con altezza di 2,47.

Considerata l'ampia metratura, si può personalizzare in base alle proprie esigenze.

Lo spazio è utilizzabile per varie categorie di negozi al dettaglio come abbigliamento, prodotti per la cura della persona, agenzie, uffici/studi professionali ma anche attività di tipo ristorativo.

Categoria catastale : C1

Per visionare questo immobile chiamaci allo 039/2245714 o scrivici un'email a cerchiaraimmobiliari.parco@gmail.com

Visita l'intera gamma dei nostri immobili sul sito cerchiaraimmobiliare.it

Il presente annuncio non è da ritenersi valido ai fini contrattuali, le informazioni qui contenute sono del tutto indicative.

LEGGI TUTTO

CONDIVIDI SUI SOCIAL

DATI PRINCIPALI

Riferimento
128056
Contratto
Vendita
Tipologia
Immobile - Negozio
Superficie
150 mq
Locali
3
Bagni
2
Piano
Piano terra
Totale piani
2

CARATTERISTICHE

Ascensore

COSTI

Prezzo
€ 580.000,00
Spese condominiali
€ 666,00 / mese

EFFICIENZA ENERGETICA

Stato
Abitabile
Anno costruzione
1980
Classe energetica
G
IPE
175,00 kWh/m²a

A+

A

B

C

D

E

F

175,00 kWh/m²a | Classe energetica G

G

MAPPA

Monza comune della Bassa Brianza Centrale Sud

ANNUNCI SIMILI

VENDITA 9
€ 413.000
Negozio in Vendita a Monza, Zona San Biagio
  • 3 locali
  • 225 mq
  • 3 bagni