Magazzino - Deposito in Vendita VENDITA

Corso Italia 19 - Usmate Velate (Monza e Brianza)
€ 70.000
  • 1 locale
  • 103 mq
  • 1 bagno

Magazzino in Vendita a Usmate Velate

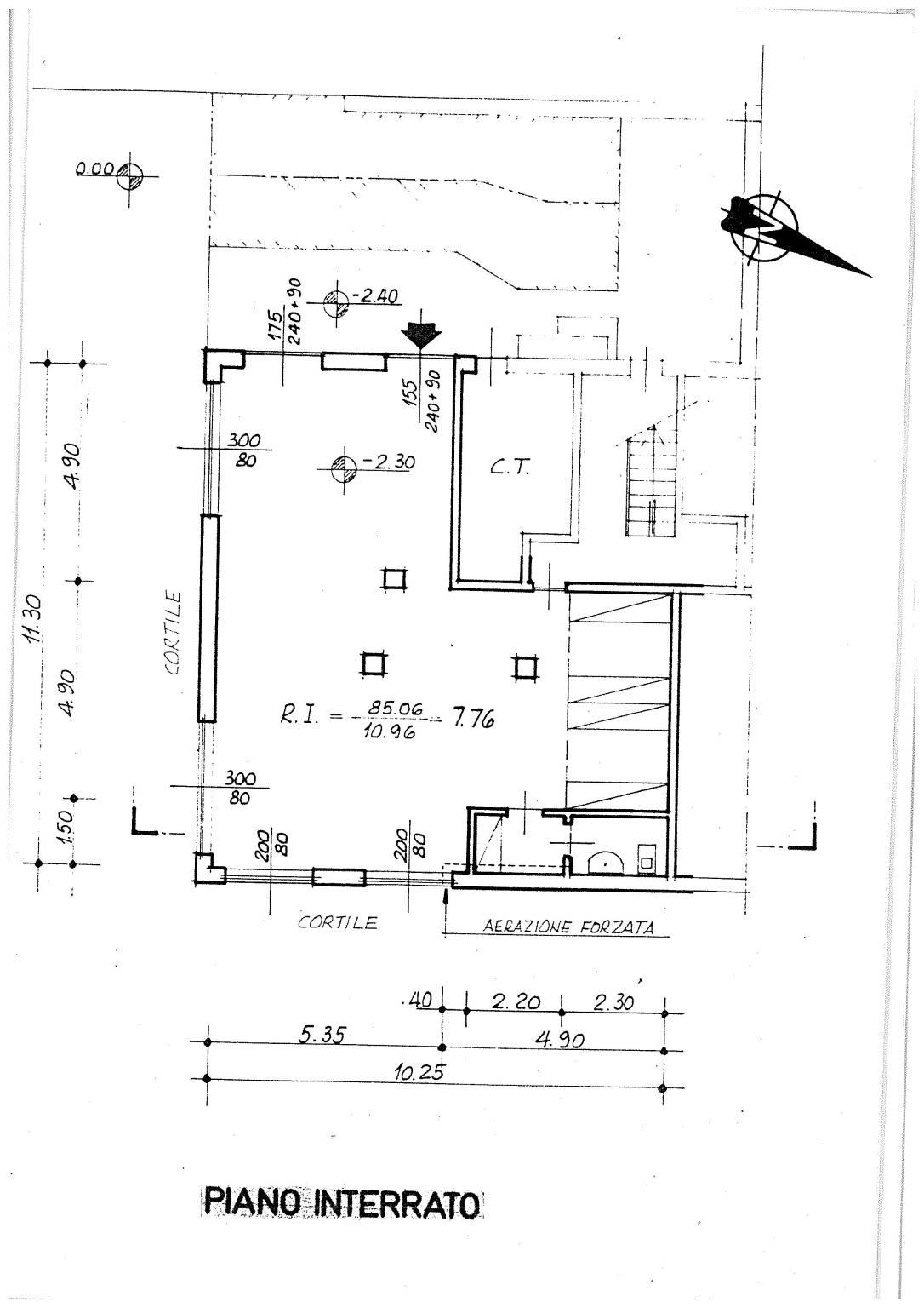
USMATE CENTRO: In condominio anni 70 disponiamo di piccolo locale commerciale/magazzino al piano seminterrato con accesso adatto a piccolo mezzi per zona carico scarico, disposto su un unico livello con ambio spazio per attività produttive (circa 85 mq) con altezza di 3.30 m, un bagno con antibagno oltre un piccolo spazio ad uso magazzino con altezza 2.20 m.
Inviaci un messaggio per richiedere maggiori informazioni o contattaci al n. 039.6980312 Mediando Immobiliare associata F.I.M.A.A. (Federazione Italiana Mediatori Agenti d’Affari) è uno studio di intermediazione immobiliare che, grazie a figure professionali qualificate, offre una vasta gamma di servizi e consulenze tecniche. Rivolgendosi alla nostra agenzia immobiliare il cliente può contare su tutta l'attenzione e la professionalità maturate negli anni. Seguiamo infatti ogni fase riguardante la compravendita e la locazione immobiliare, nonché quella commerciale, mettendo a disposizione tutta la nostra assistenza. Il nostro impegno, la professionalità e la consapevolezza di avere come oggetto del nostro lavoro uno dei beni più importanti per la vita, ci ha imposto un rigoroso metodo di operare basato su regole e principi ferrei. Alcuni dei nostri servizi: Valutazione immobili residenziali e commerciali. Compravendite. Stesura contratti di locazione. Locazioni. Compilazione modelli F24 elide per registrazione contratti locazione. Registrazione telematica dei contratti di locazione, proroghe,
Libero subito!

LEGGI TUTTO

CONDIVIDI SUI SOCIAL

DATI PRINCIPALI

Riferimento
133279
Contratto
Vendita
Tipologia
Immobile - Magazzino
Superficie
103 mq
Locali
1
Bagni
1
Piano
Seminterrato

CARATTERISTICHE

Ascensore

COSTI

Prezzo
€ 70.000,00
Spese condominiali
€ 142,00 / mese

EFFICIENZA ENERGETICA

Stato
Abitabile
Anno costruzione
1970

MAPPA

Usmate Velate comune della Bassa Brianza Orientale o Vimercatese

ANNUNCI SIMILI