• 1 locale
  • 120 mq
  • 1 bagno

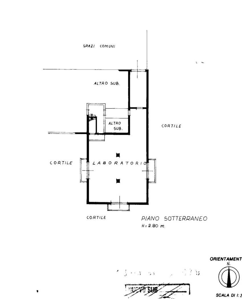
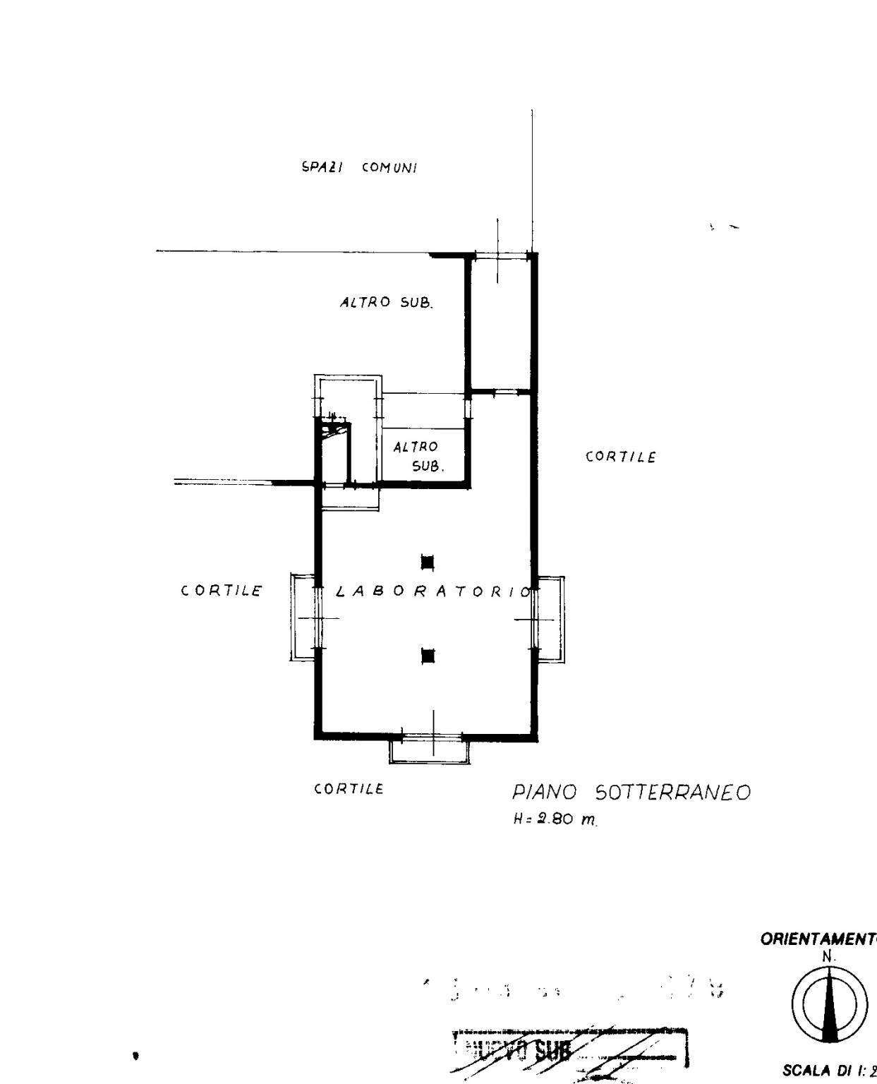
Magazzino in Vendita a Nova Milanese

NOVA MILANESE - ZONA POETI
DEPOSITO/MAGAZZINO CON BAGNO

Ampio deposito/magazzino ubicato in zona Poeti di Nova Milanese, posto al piano seminterrato e provvisto di bagno e passo carraio promiscuo.
Doppio ingresso da serranda e da porta.
Possibilità di affitto con riscatto o di affitto normale ad Euro 570,00 compreso spese condominiali.

ESENTE DA CLASSIFICAZIONE ENERGETICA.

Per info:
Edilproposte Nova Milanese
Tel. 0362/1793226
Cel. 392/6479663

La presente scheda non costituisce forma di contratto, le informazioni qui contenute sono da ritenersi del tutto indicative e non potranno essere utilizzate come parte integrante in un eventuale contratto di vendita o locazione della proprietà. La presente non vincola in alcun modo la società.

LEGGI TUTTO

CONDIVIDI SUI SOCIAL

DATI PRINCIPALI

Riferimento
127021
Contratto
Vendita
Tipologia
Immobile - Magazzino
Superficie
120 mq
Locali
1
Bagni
1
Piano
Piano terra

CARATTERISTICHE

Ascensore

COSTI

Prezzo
€ 58.000,00
Spese condominiali
€ 70,00 / mese

EFFICIENZA ENERGETICA

Stato
Abitabile

MAPPA

Nova Milanese comune della Bassa Brianza Centrale Sud