Terratetto unifamiliare VENDITA

Via Antonio Stoppan, 1 - Merate (Lecco)
€ 60.000
  • Quadrilocale
  • 164 mq
  • 1 bagno

Casa indipendente in Vendita a Merate

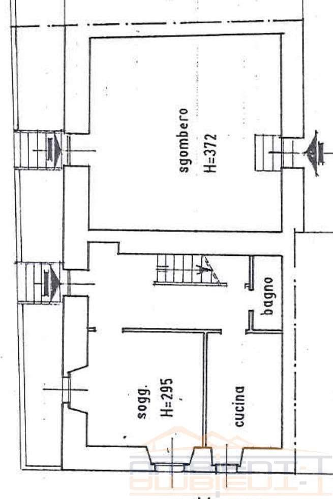
Merate: Nella frazione di Cassina Fra Martino, in zona tranquilla e a pochi minuti in auto dal centro di Merate, proponiamo in vendita una soluzione indipendente terra cielo.
La proprietà si trova in un contesto di corte ben curato ed è composta da: un ingresso indipendente al piano rialzato che permette di accedere all'abitazione dove troviamo il corridoio che accompagna alla zona giorno; una cucina abitabile, un piccolo bagno ed un ripostiglio nel sottoscala che completano il piano. Una scala in legno porta al piano primo, composto da due ampie camere matrimoniali; al secondo ed ultimo piano troviamo altri due locali a rustico da ristrutturare.
L'abitazione, che necessita di interventi di ristrutturazione, è dotata di impianto di riscaldamento autonomo, parquet nelle camere da letto.
Annesso all'abitazione si trova un'ampio locale di sgombero con accesso privato.
Ideale anche come investimento!
Il presente annuncio è indicativo e non costituisce elemento contrattuale.

LEGGI TUTTO

CONDIVIDI SUI SOCIAL

DATI PRINCIPALI

Riferimento
131677
Contratto
Vendita
Tipologia
Casa indipendente
Superficie
164 mq
Locali
4
Bagni
1
Totale piani
2

CARATTERISTICHE

Ascensore

COSTI

Prezzo
€ 60.000,00

EFFICIENZA ENERGETICA

Stato
Da ristrutturare
Anno costruzione
1960
Riscaldamento
Autonomo
Classe energetica
G
IPE
175,00 kWh/m²a

A+

A

B

C

D

E

F

175,00 kWh/m²a | Classe energetica G

G

MAPPA

Merate comune della Brianza Meratese

ANNUNCI SIMILI

VENDITA 20
€ 455.000
Casa indipendente in Vendita a Merate (Lecco)
  • Più di 5 locali
  • 284 mq
  • 2 bagni
VENDITA 20
€ 350.000
Casa indipendente in Vendita a Imbersago (Lecco)
  • Più di 5 locali
  • 280 mq
  • 2 bagni
VENDITA 20
€ 373.000
Casa indipendente in Vendita a Olgiate Molgora (Lecco)
  • Più di 5 locali
  • 234 mq
  • 3 bagni
VENDITA 16
€ 65.000
Casa indipendente in Vendita a Brivio (Lecco)
  • Più di 5 locali
  • 141 mq
  • 2 bagni
VENDITA 20
€ 195.000
Casa indipendente in Vendita a Cernusco Lombardone (Lecco)
  • Più di 5 locali
  • 433 mq
  • 2 bagni
VENDITA 20
€ 249.000
Casa indipendente in Vendita a Robbiate (Lecco)
  • Più di 5 locali
  • 342 mq
  • 3 bagni
VENDITA 20
€ 240.000
Casa indipendente in Vendita a Montevecchia (Lecco)
  • Quadrilocale
  • 150 mq
  • 2 bagni
VENDITA 19
€ 580.000
Casa indipendente in Vendita a Osnago (Lecco)
  • Più di 5 locali
  • 450 mq
  • 4 bagni