Soluzione semi indipendente ad Agrate Brianza VENDITA

Via San Paolo 13 - Agrate Brianza (Monza e Brianza)
€ 190.000
  • Bilocale
  • 77 mq
  • 3 bagni

Casa indipendente in Vendita a Agrate Brianza

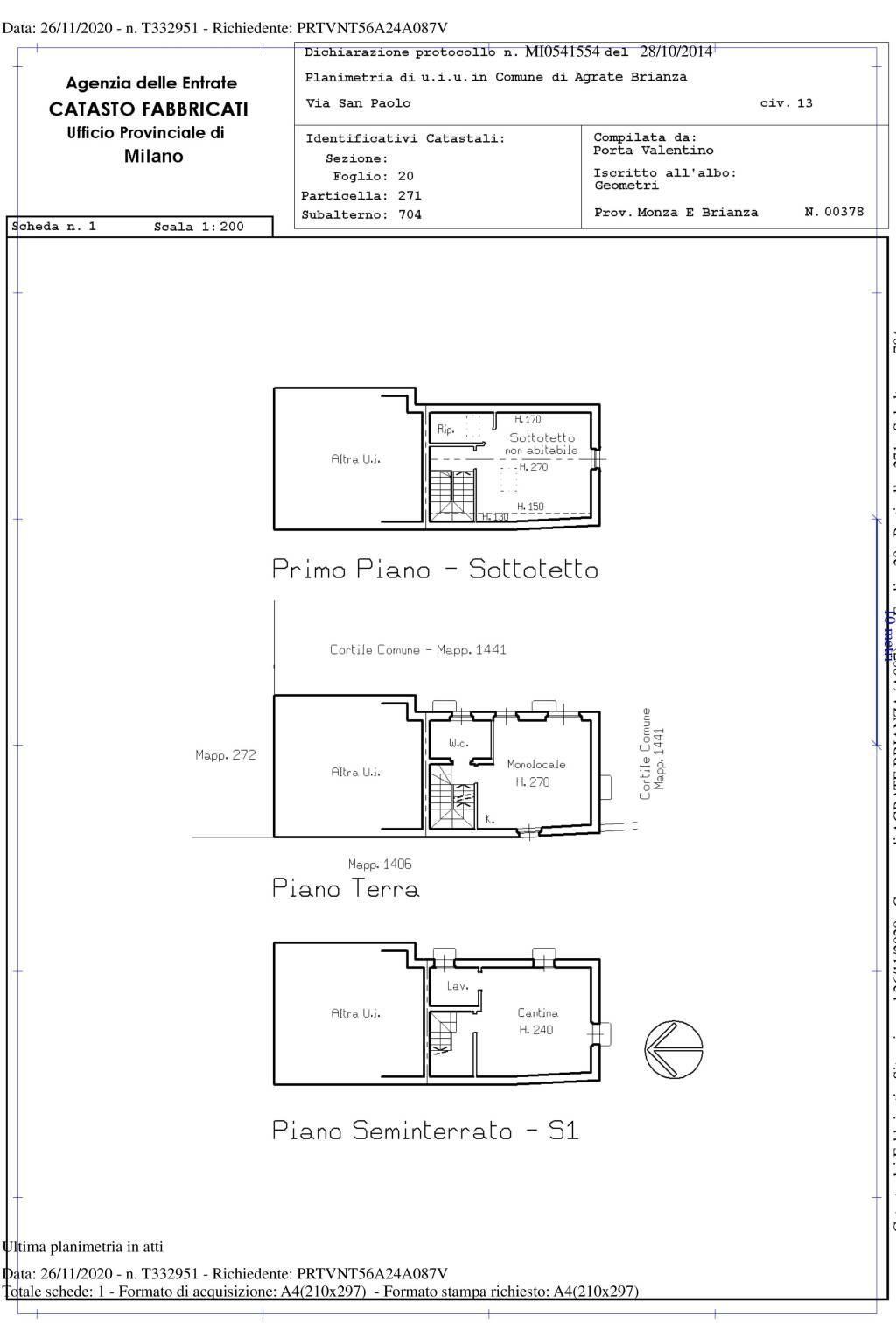
Soluzione semi-indipendente in Via San Paolo 13, Agrate Brianza.

In un contesto senza spese condominiali, nel centro del paese, proponiamo in esclusiva soluzione terra-cielo su due livelli così composta:
- piano terra: soggiorno con cucina a vista e bagno con box doccia
- piano sottotetto: camera da letto e bagno con box doccia
- piano interrato: taverna con lavanderia

Caratteristiche: riscaldamento a pavimento, infissi in doppio vetro, coperture di tegole portoghesi in cotto, struttura portante in legno lamellare.
Caldaia a gas a condensazione , con produzione di acqua calda sanitaria tramite serbatoio ad accumulo/serbatoio solare.
Pannelli solari.
Coibentazione interna e esterna con il sistema costruttivo Climablock in cemento armato.
L'immobile è stato oggetto di un intervento di ristrutturazione edilizia che ha previsto la demolizione e successiva ricostruzione del fabbricato.

Libero subito.

Contattaci per maggiori informazioni e per prenotare una visita!

LEGGI TUTTO

CONDIVIDI SUI SOCIAL

DATI PRINCIPALI

Riferimento
129358
Contratto
Vendita
Tipologia
Casa indipendente
Superficie
77 mq
Locali
2
Camere da letto
1
Cucina
A vista
Bagni
3
Piano
1 °
Totale piani
2

CARATTERISTICHE

Ascensore

COSTI

Prezzo
€ 190.000,00

EFFICIENZA ENERGETICA

Stato
Ristrutturato
Anno costruzione
2013
Riscaldamento
Autonomo
Classe energetica
A2
IPE
47,74 kWh/m²a

A4

A3

47,74 kWh/m²a | Classe energetica A2

A2

A1

B

C

D

E

F

G

MAPPA

Agrate Brianza comune della Bassa Brianza Orientale o Vimercatese

ANNUNCI SIMILI

VENDITA 20
€ 90.000
Casa indipendente in Vendita a Burago di Molgora (Monza e Brianza)
  • Quadrilocale
  • 161 mq
  • 2 bagni