PORZIONE DI CASA INDIPENDENTE CON AREA ESTERNA E BOX VENDITA

Via Achille Grandi 3 - Cabiate (Como)
€ 239.000
  • Più di 5 locali
  • 335 mq
  • 2 bagni

Casa indipendente in Vendita a Cabiate

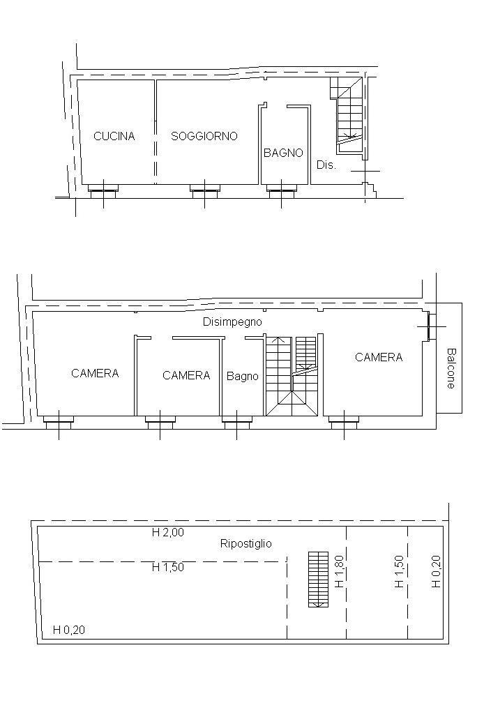
CABIATE: in prossimità della stazione ferroviaria TRENORD, proponiamo in vendita, una porzione di casa con ingresso pedonale e carraio indipendente composta da due appartamenti.
La prima abitazione disposta su due livelli abitativi di circa 175 mq composta da piano terra con soggiorno con angolo cottura, bagno con vasca e ripostiglio.
Scala di collegamento che accompagna al piano primo dove troviamo due camere matrimoniali di cui una con balcone, una cameretta ed un bagno con box doccia. Al piano secondo troviamo un sottotetto ad uso ripostiglio.
Dal box singolo ampio posto al piano terra si accede direttamente all’abitazione.
La seconda abitazione di circa 160 mq disposta su due livelli in condizioni originali da ristrutturare totalmente.
Abbinati troviamo due ripostigli di circa 20 mq cadauno posti al piano terra.
A completare la soluzione troviamo una spaziosa area esterna di circa 160 mq di proprietà.
IDEALE PER CHI CERCA INDIPENDENZA!
*
*
Stai pensando di vendere o affittare il tuo immobile? Siamo al tuo fianco nel momento più importante: la valutazione…affidati a noi per una stima gratuita e non impegnativa. Scopri quale mutuo puoi richiedere e con i nostri consulenti del credito Monety, ti accompagniamo in ogni fase della ricerca del finanziamento più idoneo alle tue esigenze: un processo delicato che spesso richiede del tempo, snellito dalla supervisione di un team professionale ed esperto. Il nostro team di consulenti del credito lavora in collaborazione con diverse banche e istituti finanziari, così da individuare sempre le migliori opzioni di finanziamento disponibili sul mercato. Gabetti Franchising Agency è un brand capace di rinnovarsi ed emergere per fronteggiare i rapidi cambiamenti del mercato immobiliare, attraverso la riconosciuta professionalità dei suoi imprenditori concretizza e applica i valori della tradizione, della società e dell'affidabilità, coniugandoli con quelli della modernità, dell'innovazione e del dinamismo.

LEGGI TUTTO

CONDIVIDI SUI SOCIAL

DATI PRINCIPALI

Riferimento
131338
Contratto
Vendita
Tipologia
Casa indipendente
Superficie
335 mq
Locali
Più di 5
Camere da letto
4
Cucina
Angolo cottura
Bagni
2
Piano
2 °
Totale piani
2
Box/Posto auto
Singolo

CARATTERISTICHE

Ascensore

COSTI

Prezzo
€ 239.000,00

EFFICIENZA ENERGETICA

Stato
Abitabile
Anno costruzione
1960
Riscaldamento
Autonomo
Classe energetica
G
IPE
175,00 kWh/m²a

A+

A

B

C

D

E

F

175,00 kWh/m²a | Classe energetica G

G

MAPPA

Cabiate comune della Bassa Brianza Comasca

ANNUNCI SIMILI

VENDITA 7
€ 125.000
Casa indipendente in Vendita a Arosio (Como)
  • Più di 5 locali
  • 220 mq
  • 2 bagni
VENDITA 6
€ 465.000
Casa indipendente in Vendita a Cantù (Como)
  • Più di 5 locali
  • 860 mq
  • 4 bagni
VENDITA 9
€ 350.000
Casa indipendente in Vendita a Cantù (Como)
  • Più di 5 locali
  • 650 mq
  • 4 bagni
VENDITA 11
€ 170.000
Casa indipendente in Vendita a Cantù (Como)
  • Più di 5 locali
  • 415 mq
VENDITA 13
€ 249.000
Casa indipendente in Vendita a Fino Mornasco (Como)
  • Più di 5 locali
  • 168 mq
  • 2 bagni
VENDITA 20
€ 290.000
Casa indipendente in Vendita a Tavernerio (Como)
  • Più di 5 locali
  • 210 mq
  • 2 bagni
VENDITA 14
€ 249.000
Casa indipendente in Vendita a Erba (Como)
  • Più di 5 locali
  • 300 mq
  • 2 bagni
VENDITA 7
€ 140.000
Casa indipendente in Vendita a Erba (Como)
  • Più di 5 locali
  • 417 mq
  • 1 bagno
VENDITA 20
€ 289.000
Casa indipendente in Vendita a Tavernerio (Como)
  • Più di 5 locali
  • 248 mq
  • 2 bagni