Vendita Capannoni Adiacenti al Confine tra Carugo e Giussano VENDITA

Carugo (Como)
€ 255.000
  • 1 locale
  • 750 mq
  • 1 bagno

Capannone in Vendita a Carugo

Contattare Sig.ra Giovanna 391.1599407
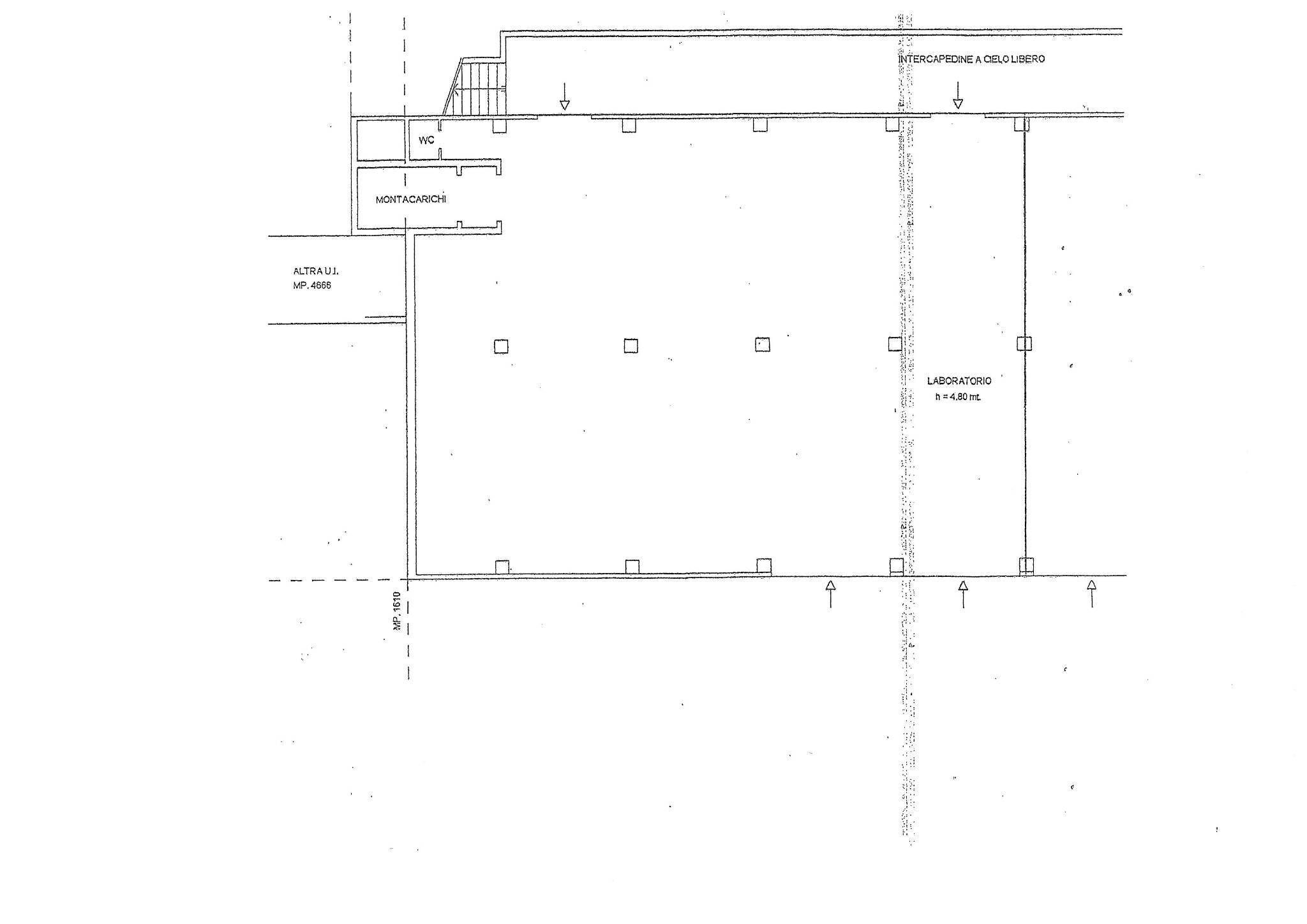
In una posizione strategica al confine tra Carugo e Giussano, si vendono due capannoni industriali adiacenti, ciascuno di circa 750 mq, per una superficie totale di circa 1.500 mq. I capannoni sono comunicanti tra loro, offrendo la possibilità di unirli facilmente e creare un unico ampio spazio industriale. Vendibili con lotti di mt 750

L'immobile non dispone di impianto di riscaldamento, ma c'è la possibilità di riscaldarlo tramite l'installazione di impianti Robur. L'altezza sotto trave è di 4,20 mt, ideale per svariate tipologie di attività.

Caratteristiche principali:

Superficie totale: 1.500 mq (750 mq per capannone)
Altezza sotto trave: 4,20 metri
Categoria catastale: D1
Possibilità di unire i due capannoni in un unico grande spazio
Carraio con ampio accesso per operazioni di carico/scarico h 4.00
Possibilità di riscaldamento con impianti Robur
Ottima posizione, ben collegata alle principali vie di comunicazione (stazione ferroviaria)
Disponibile subito
Parcheggio e spazio esterno
Prezzo di vendita € 255.000,00 ogni porzione, no spese condominiali ad esclusione del consumo acqua.

Tutte le informazioni, le planimetrie, le immagini, le metrature e i dati qui riportati hanno valore puramente indicativo e non costituiscono in alcun modo valore contrattuale.

LEGGI TUTTO

CONDIVIDI SUI SOCIAL

DATI PRINCIPALI

Riferimento
126029
Contratto
Vendita
Tipologia
Immobile - Capannone
Superficie
750 mq
Locali
1
Bagni
1
Piano
Piano terra
Totale piani
1

CARATTERISTICHE

Ascensore

COSTI

Prezzo
€ 255.000,00

EFFICIENZA ENERGETICA

Stato
Abitabile
Anno costruzione
1975
Classe energetica
G
IPE
175,00 kWh/m²a

A+

A

B

C

D

E

F

175,00 kWh/m²a | Classe energetica G

G

MAPPA

Carugo comune della Bassa Brianza Comasca

ANNUNCI SIMILI

VENDITA 17
€ 255.000
Capannone in Vendita a Carugo (Como)
  • 1 locale
  • 750 mq
  • 1 bagno
VENDITA 12
€ 299.000
Capannone in Vendita a Carugo (Como)
  • 2 locali
  • 400 mq
  • 1 bagno
VENDITA 11
€ 1.593.000
Capannone in Vendita a Carugo (Como)
  • 1 locale
  • 2820 mq
  • 3 bagni
VENDITA 9
€ 450.000
Capannone in Vendita a Arosio (Como)
  • 2 locali
  • 720 mq
  • 3 bagni
VENDITA 13
€ 450.000
Capannone in Vendita a Mariano Comense (Como)
  • 1 locale
  • 400 mq
  • 1 bagno
VENDITA 20
€ 535.000
Capannone in Vendita a Inverigo (Como)
  • 3 locali
  • 700 mq
  • 2 bagni
VENDITA 11
€ 270.000
Capannone in Vendita a Figino Serenza (Como)
  • 2 locali
  • 350 mq
  • 1 bagno
VENDITA 15
€ 390.000
Capannone in Vendita a Cantù (Como)
  • Più di 5 locali
  • 768 mq
  • 3 bagni