CAPANNONE 910 MQ SITO A BRUGHERIO AFFITTO

Via Aristotele - Brugherio (Monza e Brianza)
€ 5.416 mensili
  • 4 locali
  • 910 mq
  • 3 bagni

Capannone in Affitto a Brugherio

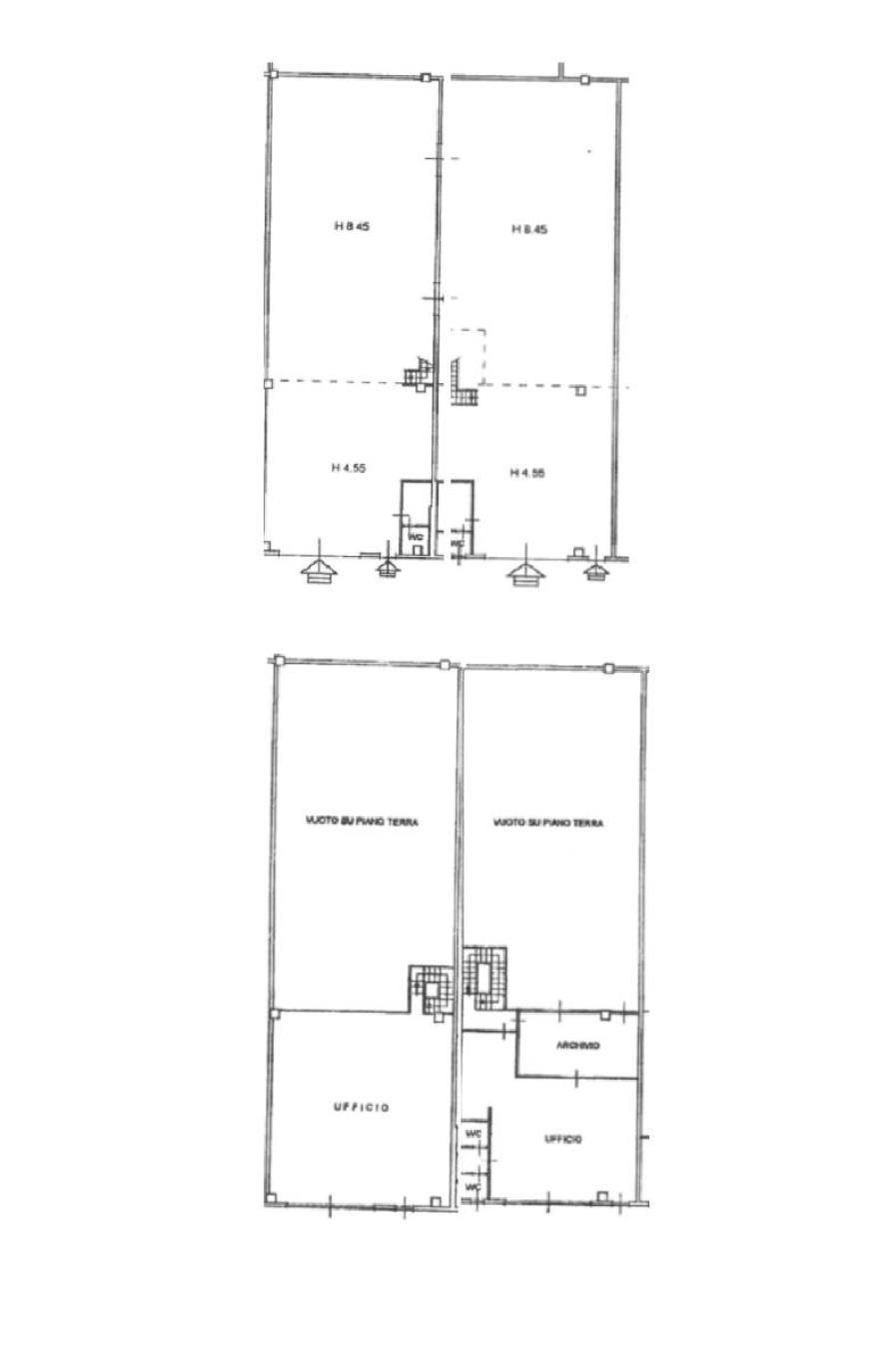
CAPANNONE 910 MQ SITO A BRUGHERIO - AREA PRODUTTIVA MQ 670 – SOPPALCO MQ 120 – UFFICIO MQ 120 - Il capannone è situato nel Comune di Brugherio al confine con Agrate Brianza, in posizione strategica dal punto di vista logistico: la barriera di Agrate Brianza dell’autostrada A4 Torino–Trieste dista circa 4 km, mentre l’ingresso della Tangenziale Est di Milano (A51) è raggiungibile in soli 3 km, garantendo collegamenti rapidi con Milano e le principali direttrici di traffico.
L’immobile si sviluppa su una superficie complessiva di circa 910 mq, così suddivisa:
• 670 mq al piano terra, con altezze utili variabili di 8,5 metri e 4,5 metri, ideali per attività produttive e logistiche;
• 120 mq ad uso uffici al piano primo;
• 120 mq di soppalco.
Internamente il capannone è dotato di tutta l’impiantistica necessaria e dispone di due ampi portoni di accesso, che agevolano le operazioni di carico e scarico.
La zona uffici, posta al primo piano, è rifinita con pavimento galleggiante, controsoffitto, ed è servita da impianto di riscaldamento e condizionamento.
Completano la proprietà 6 posti auto ad uso esclusivo, situati all’interno del complesso condominiale.
SCOPRI ALTRE SOLUZIONI SUL NOSTRO SITO WWW.CASAEINDUSTRIA.IT

LEGGI TUTTO

CONDIVIDI SUI SOCIAL

DATI PRINCIPALI

Riferimento
127869
Contratto
Affitto
Tipologia
Immobile - Capannone
Superficie
910 mq
Locali
4
Bagni
3
Piano
1 °
Totale piani
2
Box/Posto auto
Doppio

CARATTERISTICHE

Ascensore

COSTI

Canone
Affitto € 5.416,00 al mese
Tipo locazione
4+4
Spese condominiali
€ 100,00 / mese, non incluse nel canone

EFFICIENZA ENERGETICA

Stato
Abitabile
Anno costruzione
1990
Riscaldamento
Autonomo
Climatizzazione
Si
Classe energetica
C
IPE
233,81 kWh/m²a

A+

A

B

233,81 kWh/m²a | Classe energetica C

C

D

E

F

G

MAPPA

Brugherio comune della Bassa Brianza Centrale Sud