TRILOCALE SU DUE LIVELLI CON TERRAZZO VENDITA

Via Trieste - Barlassina (Monza e Brianza)
€ 414.800
  • Trilocale
  • 134 mq
  • 3 bagni

Attico in Vendita a Barlassina

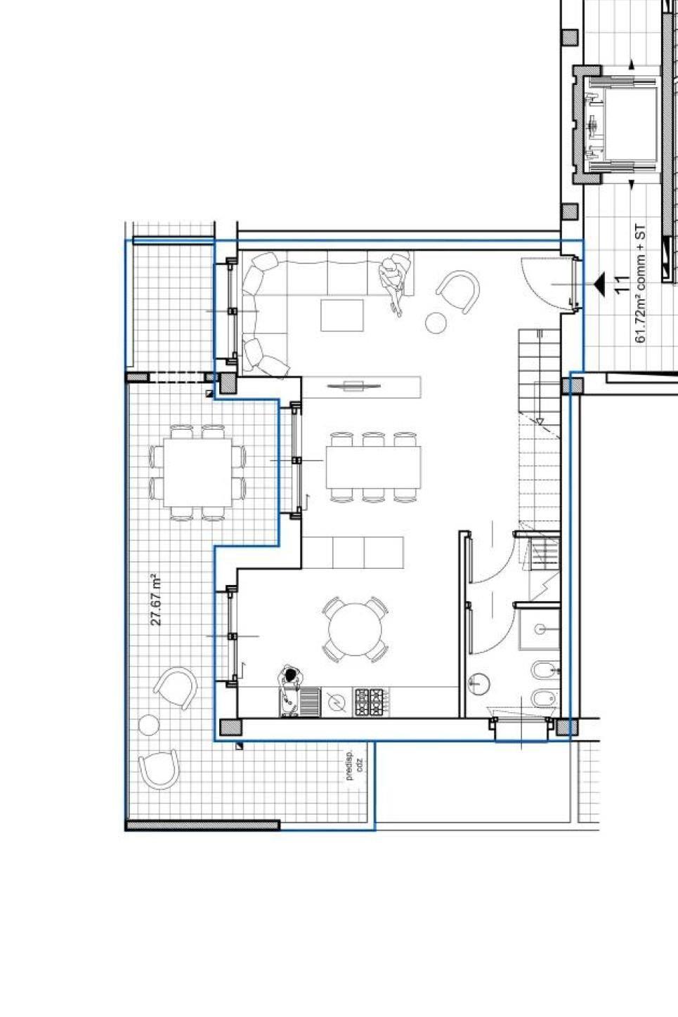
( APPARTAMENTO 11 )

Barlassina in moderna e signorile palazzina di nuova costruzione, in zona ben servita e comodissima con la Milano – Meda, Vi proponiamo ampio trilocale disposto su due livelli abitativi. Internamente la soluzione dispone di locali generosi e molto luminosi ed è disposta da soggiorno con cucina abitabile e bagno al piano secondo, mentre al piano superiore troviamo le due camere e due bagni, ben sfruttabili sono anche gli spazi esterni su entrambi i piani. L'appartamento è dotato di riscaldamento a pavimento, impianto fotovoltaico, finestre scorrevoli e tapparelle elettriche, predisposizione aria condizionata e antifurto, possibilità scelta finiture interne da capitolato di ottima qualità.
Possibilità di box.
La cantina è compresa nel prezzo.

CLASSE ENERGETICA A4

DISPONIAMO DI ALTRE SOLUZIONI ALL’ INTERNO DEL CONTESTO

CONTATTATECI PER UN VISITA IN LOCO

( VISITA IL NOSTRO SITO www.edilhouse.net )

In agenzia tante altre proposte per trovare la tua casa! Abbiamo anche il mutuo su misura per te! Se invece hai bisogno di vendere casa tua al miglior prezzo e nel minor tempo chiamaci allo 031.751441 per una VALUTAZIONE GRATUITA e una consulenza professionale. Ci trovi a Mariano Comense (CO), Via VI Novembre 11, visita il nostro sito www.edilhouse.net , mandaci una e-mail all’indirizzo: mediatore.rusconi@libero.it

Tutto il nostro staff è tua completa disposizione
La nostra agenzia immobiliare tratta la vendita e gli affitti di ogni tipo di immobile: appartamenti ,ville, uffici e capannoni a Mariano Comense e in provincia di Como , Monza e Brianza

( Edil House 031 / 751441 ---- www.edilhouse.net )

LEGGI TUTTO

CONDIVIDI SUI SOCIAL

DATI PRINCIPALI

Riferimento
132011
Contratto
Vendita
Tipologia
Attico
Superficie
134 mq
Locali
3
Camere da letto
2
Cucina
A vista
Bagni
3
Piano
3 °
Totale piani
3

CARATTERISTICHE

Ascensore

COSTI

Prezzo
€ 414.800,00
Spese condominiali
€ 1,00 / mese

EFFICIENZA ENERGETICA

Stato
Nuovo/In costruzione
Anno costruzione
2020
Riscaldamento
Autonomo
Climatizzazione
Predisposizione
Classe energetica
A4
IPE
13,73 kWh/m²a
13,73 kWh/m²a | Classe energetica A4

A4

A3

A2

A1

B

C

D

E

F

G

MAPPA

Barlassina comune della Bassa Brianza Occidentale

ANNUNCI SIMILI

VENDITA 16
€ 360.000
Attico in Vendita a Barlassina (Monza e Brianza)
  • Quadrilocale
  • 130 mq
  • 2 bagni
VENDITA 16
€ 295.000
  • Quadrilocale
  • 120 mq
  • 2 bagni
VENDITA 16
€ 285.000
  • Quadrilocale
  • 120 mq
  • 2 bagni