Erba Attico con terrazzo e 2 box VENDITA

Erba (Como)
€ 450.000
  • Più di 5 locali
  • 203 mq
  • 3 bagni

Attico in Vendita a Erba

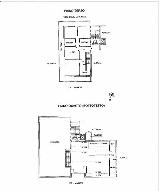
In centro ad Erba, in signorile contesto, Larius propone in vendita uno splendido attico di 176 mq c.a. con annesso esclusivo terrazzo di c.a. 90 mq con vista strepitosa sulle Grigne e Corni di Canzo oltre 2 box auto, cantina e posti auto condominiali.
L’abitazione si sviluppa su due livelli abitativi collegati da scala interna al terzo e al quarto ed ultimo piano di una elegante palazzina di poche famiglie risalente ai primi anni 2000.
L’appartamento al piano terzo ospita la zona notte ed è composto da quattro ampie camere da letto, di cui una camera padronale, due bagni, locale lavanderia, oltre balconi di circa 30 mq.
Al quarto ed ultimo piano, dove la luce naturale è la protagonista indiscussa, troviamo l’ampia zona giorno con terrazzo panoramico di c.a. 90 mq e comprende: soggiorno doppio, grande cucina, un servizio.
Ambienti molto ampi e versatili, luminosi e finiture risalenti all’epoca costruttiva conservati in perfette condizioni.
Libero entro 8 mesi
E’ gradita la permuta del tuo immobile.

LEGGI TUTTO

CONDIVIDI SUI SOCIAL

DATI PRINCIPALI

Riferimento
126559
Contratto
Vendita
Tipologia
Attico
Superficie
203 mq
Locali
Più di 5
Camere da letto
4
Cucina
Abitabile
Bagni
3
Piano
4 °
Totale piani
4
Box/Posto auto
Doppio

CARATTERISTICHE

Ascensore

COSTI

Prezzo
€ 450.000,00
Spese condominiali
€ 350,00 / mese

EFFICIENZA ENERGETICA

Stato
Abitabile
Anno costruzione
2020
Riscaldamento
Autonomo
Climatizzazione
Si
Classe energetica
G
IPE
175,00 kWh/m²a

A+

A

B

C

D

E

F

175,00 kWh/m²a | Classe energetica G

G

MAPPA

Erba comune dell'Alta Brianza Comasca

ANNUNCI SIMILI

VENDITA 20
€ 495.000
Attico in Vendita a Cantù (Como)
  • Più di 5 locali
  • 250 mq
  • 3 bagni