ATTICO - NUOVA COSTRUZIONE - CLASSE A VENDITA

Limbiate (Monza e Brianza)
€ 380.000
  • Quadrilocale
  • 167 mq
  • 2 bagni

Attico in Vendita a Limbiate

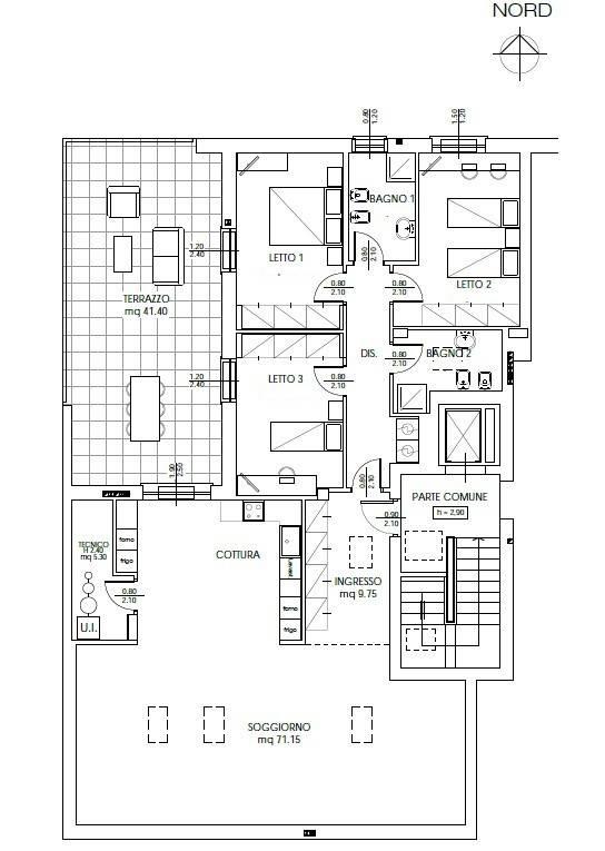
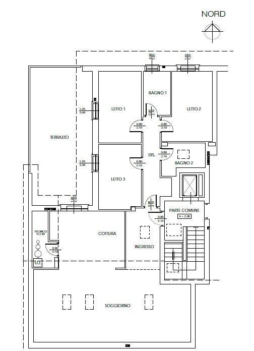
In bellissima palazzina di nuova costruzione con sistemi di costruzione innovativi, antisismici e moderni, IN CLASSE A di NUOVA COSTRUZIONE, in tranquilla zona residenziale e riservata ma ben servita da mezzi e servizi proponiamo ATTICO sito al terzo ed ultimo piano di 3 locali con TERRAZZO, composto da: comodo ingresso, AMPISSIMO soggiorno con angolo cottura di 71 mq, disimpegno, tre camere da letto matrimoniali, due bagni entrambi finestrati, locale tecnico per la gestione degli impianti/ripostiglio e SPLENDIDO TERRAZZO di 41 MQ! Possibilità acquisto box.
Riscaldamento autonomo a pavimento con POMPA DI CALORE SINGOLA per ogni unità immobiliare alimentata da pannelli fotovoltaici, tapparelle motorizzate, predisposizione aria condizionata ed antifurto. VMC ventilazione meccanica controllata per il ricircolo dell'aria per un ottimo comfort abitativo.
In fase di costruzione possibilità modifiche interne e personalizzazioni con SCELTA DELLE FINITURE E DEL CAPITOLATO.
Disponibili altri due appartamenti di 3 o 4 locali, su diversi piani e metratura!
MAGGIORI INFORMAZIONI IN UFFICIO!

Studio immobiliare Mister House di Limbiate
cell. 393/8260816 tel. 0299692265
limbiate@misterhouse.it

LEGGI TUTTO

CONDIVIDI SUI SOCIAL

DATI PRINCIPALI

Riferimento
127094
Contratto
Vendita
Tipologia
Attico
Superficie
167 mq
Locali
4
Camere da letto
3
Cucina
Angolo cottura
Bagni
2
Piano
3 °
Totale piani
3
Box/Posto auto
Singolo

CARATTERISTICHE

Ascensore

COSTI

Prezzo
€ 380.000,00

EFFICIENZA ENERGETICA

Stato
Nuovo/In costruzione
Anno costruzione
2027
Riscaldamento
Autonomo
Climatizzazione
Predisposizione
Classe energetica
A3
IPE
21,20 kWh/m²a

A4

21,20 kWh/m²a | Classe energetica A3

A3

A2

A1

B

C

D

E

F

G

MAPPA

Limbiate comune della Bassa Brianza Occidentale

ANNUNCI SIMILI