Attico/Mansarda in vendita a Usmate Velate VENDITA

Via San Luigi 13 - Usmate Velate (Monza e Brianza)
€ 259.500
  • Trilocale
  • 105 mq
  • 2 bagni

Attico in Vendita a Usmate Velate

Open house il giorno 14 Marzo dalle 10 alle 12 visita libera

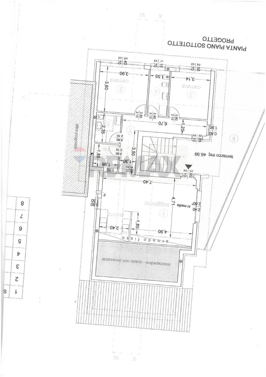
Usmate Velate, in palazzina di recente costruzione, composta da sole cinque unità immobiliari, appartamento di tre locali al secondo ed ultimo piano mansardato con travi a vista in legno, e ampio terrazzo.

L'appartamento viene venduto chiavi in mano completamente nuovo, solo le rifiniture come piastrelle e pavimenti saranno disposti come il cliente decide.

L'attico mansardato è con due ingressi, su tutto il pianerottolo , per cui si godrà di totale privacy.

Il complesso del 2011 ha termo autonomo, no spese condominiali ha solo 5 famiglie, il riscaldamento sarà a pavimento . Il terrazzo di 58 mq offre un ampio spazio per poter passare le giornate all'aperto.

L'appartamento è composto da: ingresso, soggiorno con cucina a vista, due camere matrimoniali, doppi servizi e ripostiglio.

Verranno installati i pannelli solari.

Immobile in classe energetica B.

Completa la proprietà il box singolo ad € 20.500

LEGGI TUTTO

CONDIVIDI SUI SOCIAL

DATI PRINCIPALI

Riferimento
130137
Contratto
Vendita
Tipologia
Attico
Superficie
105 mq
Locali
3
Camere da letto
2
Bagni
2
Piano
2 °
Totale piani
2
Box/Posto auto
Singolo

CARATTERISTICHE

Ascensore

COSTI

Prezzo
€ 259.500,00

EFFICIENZA ENERGETICA

Stato
Nuovo/In costruzione
Anno costruzione
2001
Riscaldamento
Autonomo
Climatizzazione
Si
Classe energetica
B

A+

A

Classe energetica B

B

C

D

E

F

G

MAPPA

Usmate Velate comune della Bassa Brianza Orientale o Vimercatese

ANNUNCI SIMILI

VENDITA 20
€ 610.000
Attico in Vendita a Vimercate (Monza e Brianza)
  • Più di 5 locali
  • 276 mq
  • 3 bagni