Attico in bifamiliare con ingresso indipendente. VENDITA

Via Giuseppe Garibaldi 36 - Nova Milanese (Monza e Brianza)
€ 340.000
  • Più di 5 locali
  • 271 mq
  • 2 bagni

Attico in Vendita a Nova Milanese

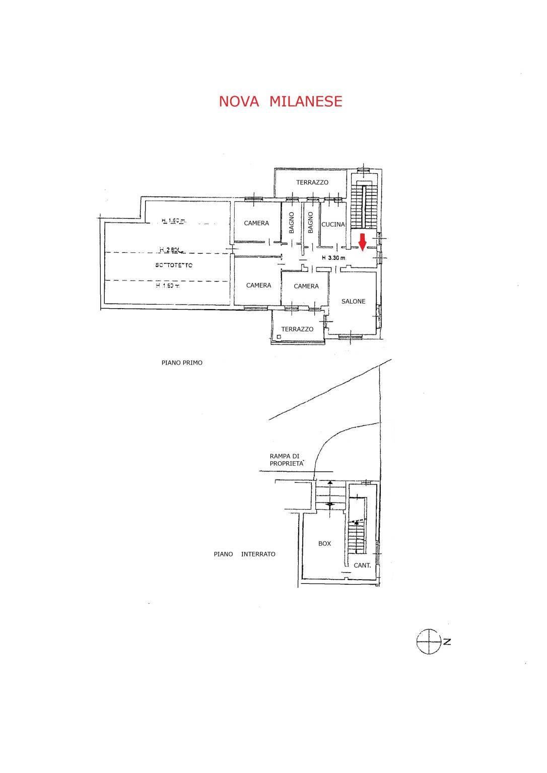
Scopri questo splendido attico situato all'ultimo piano di una bifamiliare, in una posizione di sicuro interesse. Con una scala privata che conduce direttamente all'ingresso, questo immobile offre un salone doppio luminoso con un terrazzo coperto, perfetto per godersi momenti di relax all'aperto. La cucina abitabile, anch'essa con accesso a una terrazza, è ideale per chi ama cucinare e intrattenere.

L'attico dispone di tre ampie camere da letto e due bagni, garantendo spazio e comfort per tutta la famiglia. Recentemente ristrutturato a nuovo, l'immobile è dotato di riscaldamento autonomo a radiatori e aria condizionata, per un clima ideale in ogni stagione. Il sottotetto di 90 mq, alto 3,30 m, offre ulteriori opportunità di personalizzazione.

Completa la proprietà una cantina e un ampio box con rampa privata, rendendo la vita quotidiana ancora più comoda. Con una superficie commerciale di 320 m² e calpestabile di 250 m², questo attico è perfetto per chi cerca spazi ampi e funzionali.

Non perdere l'occasione di vivere in un attico che combina eleganza, comfort e praticità. Contattaci per organizzare una visita e scoprire il tuo nuovo rifugio!

LEGGI TUTTO

CONDIVIDI SUI SOCIAL

DATI PRINCIPALI

Riferimento
128961
Contratto
Vendita
Tipologia
Attico
Superficie
271 mq
Locali
5
Camere da letto
3
Cucina
Abitabile
Bagni
2
Piano
2 °
Totale piani
2
Box/Posto auto
Singolo

CARATTERISTICHE

Ascensore

COSTI

Prezzo
€ 340.000,00

EFFICIENZA ENERGETICA

Stato
Ristrutturato
Riscaldamento
Autonomo
Climatizzazione
Si
Classe energetica
E
IPE
175,00 kWh/m²a

A+

A

B

C

D

175,00 kWh/m²a | Classe energetica E

E

F

G

MAPPA

Nova Milanese comune della Bassa Brianza Centrale Sud

ANNUNCI SIMILI

VENDITA 20
€ 720.000
Attico in Vendita a Monza, Zona Triante
  • Più di 5 locali
  • 282 mq
  • 3 bagni
VENDITA 20
€ 850.000
Attico in Vendita a Monza, Zona Parco
  • Più di 5 locali
  • 385 mq
  • 4 bagni
VENDITA 20
€ 850.000
  • Più di 5 locali
  • 385 mq
  • 4 bagni