APP. 2A - Splendido attico con terrazzi e 2 sottotetti VENDITA

Via Sicilia 17 - Cesano Maderno (Monza e Brianza)
€ 312.000
  • Trilocale
  • 124 mq
  • 1 bagno

Attico in Vendita a Cesano Maderno

In Cesano Maderno, in una zona residenziale tranquilla e ben servita, a pochi minuti dal centro, proponiamo nuovi prestigiosi appartamenti in classe energetica A4.
L’area si distingue per l’ottimo equilibrio tra comfort urbano e quiete, immersa in un contesto prevalentemente di villette e piccole palazzine moderne. La posizione strategica garantisce facile accesso a tutti i principali servizi: scuole, supermercati, parchi pubblici e collegamenti stradali, con la stazione ferroviaria a breve distanza e il veloce collegamento con la SS35 Milano-Meda.
Ideale per famiglie, giovani coppie e chi desidera vivere in un ambiente curato e sicuro, senza rinunciare alla comodità degli spostamenti quotidiani.

La residenza sorgerà in Via Sicilia e sarà composta da 18 appartamenti disposti su quattro piani fuori terra oltre ad interrato con relativa consegna prevista per dicembre 2026.
La palazzina sarà dotata di tutti i comfort moderni e sarà realizzata con finiture signorili.

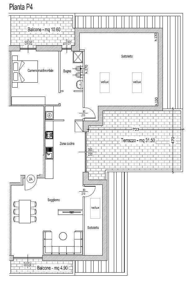
APPARTAMENTO 2A
Attico di 123 mq, sito al QUARTO PIANO, composto da ingresso che porta al luminoso ed ampio soggiorno con cucina a vista, terrazzo di 31,50 mq, balcone di 4,90 mq, disimpegno, camera matrimoniale e bagno con box doccia, entrambi con sfogo su terrazzo di 10,60 mq, due sottotetti.

DETTAGLIO METRATURA:
APPARTAMENTO : 79,00 mq
TERRAZZI : 47 mq
SOTTOTETTO : 35,00 mq
CANTINA: 3,65 mq
PARTI COMUNI: 5,53 mq

Possibilità di acquisto di box singoli/doppi di diverse metrature a partire da € 20.000,00.

Capitolato : tutti gli appartamenti saranno termo-autonomi alimentati da pompa di calore (senza alcuna fonte di gas), riscaldamento a pavimento, predisposizione impianto di aria condizionata e di allarme, Serramenti in PVC trasmittanza

La presente pubblicità è da considerarsi puramente indicativa e non costituisce in nessun caso vincolo contrattuale.

LEGGI TUTTO

CONDIVIDI SUI SOCIAL

DATI PRINCIPALI

Riferimento
127391
Contratto
Vendita
Tipologia
Attico
Superficie
124 mq
Locali
3
Camere da letto
2
Cucina
Angolo cottura
Bagni
1
Piano
5 °
Totale piani
4

CARATTERISTICHE

Ascensore

COSTI

Prezzo
€ 312.000,00

EFFICIENZA ENERGETICA

Stato
Nuovo/In costruzione
Anno costruzione
2026
Riscaldamento
Autonomo
Climatizzazione
Predisposizione
Classe energetica
A4
IPE
22,13 kWh/m²a
22,13 kWh/m²a | Classe energetica A4

A4

A3

A2

A1

B

C

D

E

F

G

MAPPA

Cesano Maderno comune della Bassa Brianza Occidentale

ANNUNCI SIMILI