Albiate. Attico con TERRAZZO e due Box VENDITA

Via Monfalcone 10 - Albiate (Monza e Brianza)
€ 390.000
  • Quadrilocale
  • 183 mq
  • 2 bagni

Attico in Vendita a Albiate

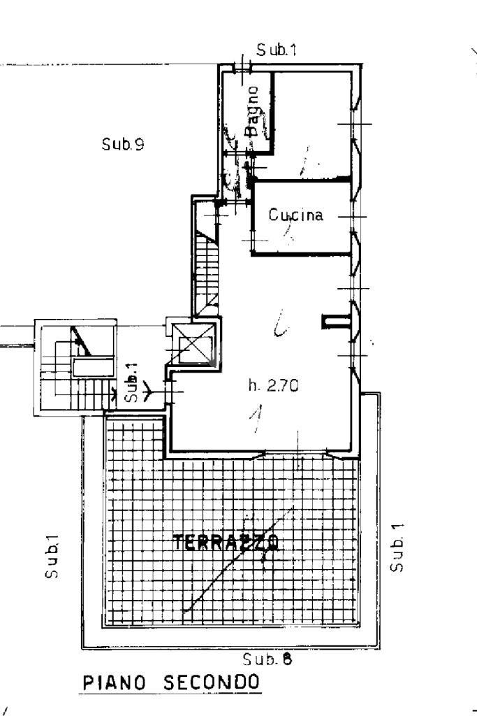
Ad Albiate, in tranquilla zona residenziale, proponiamo ampio e luminoso appartamento su due livelli, ideale per chi desidera spazi comodi, comfort e privacy.
L’abitazione si trova al secondo ed ultimo piano di una palazzina servita da ascensore ed è caratterizzata da una distribuzione degli ambienti funzionale e accogliente.
L’ingresso si apre su un grande soggiorno con camino, perfetto per creare un’atmosfera calda e conviviale durante le stagioni più fredde, con accesso diretto al terrazzo, ideale per momenti di relax all’aperto. La cucina separata, spaziosa e ben organizzata, è perfetta per chi ama cucinare e vivere la casa. Sullo stesso livello troviamo una camera, un bagno e un comodo ripostiglio.
Salendo al piano superiore si sviluppa la zona notte, composta da due camere da letto luminose e ben dimensionate e un secondo bagno, offrendo così spazi ideali per una famiglia oppure per chi necessita di uno studio o di una stanza hobby.
L’immobile, di categoria civile, si presenta ristrutturato e pronto per essere abitato, garantendo solidità e comfort abitativo.
La posizione ad Albiate consente di vivere in un contesto tranquillo e riservato, con servizi, negozi e collegamenti facilmente raggiungibili.
Completano la proprietà:

* due box singoli

* cantina
Il riscaldamento autonomo permette una gestione indipendente dei consumi.
Una soluzione ideale per chi cerca una casa spaziosa, accogliente e pronta da vivere.

LEGGI TUTTO

CONDIVIDI SUI SOCIAL

DATI PRINCIPALI

Riferimento
130343
Contratto
Vendita
Tipologia
Attico
Superficie
183 mq
Locali
4
Camere da letto
3
Cucina
Abitabile
Bagni
2
Piano
3 °
Totale piani
3
Box/Posto auto
Doppio

CARATTERISTICHE

Ascensore

COSTI

Prezzo
€ 390.000,00

EFFICIENZA ENERGETICA

Stato
Ristrutturato
Anno costruzione
1993
Riscaldamento
Autonomo
Climatizzazione
Si
Classe energetica
G
IPE
200,00 kWh/m²a

A+

A

B

C

D

E

F

200,00 kWh/m²a | Classe energetica G

G

MAPPA

Albiate comune della Bassa Brianza Centrale Nord

ANNUNCI SIMILI

VENDITA 20
€ 720.000
  • Quadrilocale
  • 181 mq
  • 3 bagni