Vimodrone Centro 3 LOCALI in palazzina del 2010 VENDITA

Via Armando Diaz 9 - Vimodrone (Milano)
€ 309.000
  • Trilocale
  • 90 mq
  • 2 bagni

Appartamento in Vendita a Vimodrone

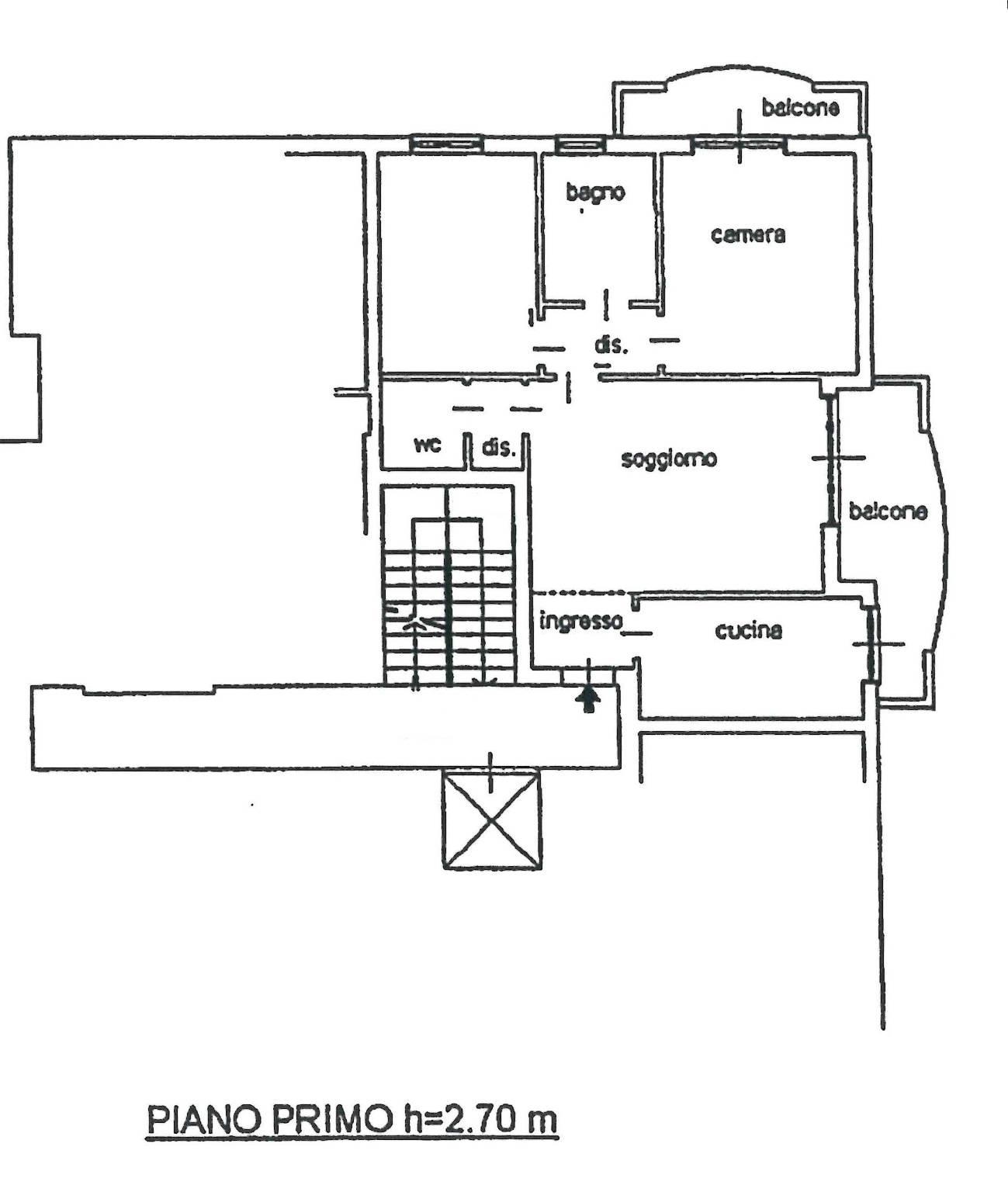
Vimodrone, nella centralissima via Diaz proponiamo introvabile appartamento in palazzina edificata nel 2010.
L'immobile è posto al piano primo e misura mq.90 commerciali.
Internamente l'abitazione è così disposta:
ingresso nel luminoso soggiorno con affaccio sul terrazzino, cucina separata, due camere da letto, secondo balcone e doppi servizi.
In dotazione cantina e box quantificato a parte in €.20.000,00.
L'appartamento si presenta in perfette condizioni.
Posizione unica, in pieno centro ma defilata dal traffico principale.
LIBERO AD AGOSTO 2027.
INTROVABILE!!!
Prezzo €.309.000,00 per appartamento e cantina ed €.20.000,00 per il box.

CLASSE ENERGETICA B
EPglnren 49,33 ren 0,08
Prestazione energetica fabbricato inverno bassa - estate media

PARADISO CASE LISSONE
Lissone via Loreto 72
Telefono 039 462509
Cellulare 335 5891427
www.paradisocaselissone.it

LEGGI TUTTO

CONDIVIDI SUI SOCIAL

DATI PRINCIPALI

Riferimento
129890
Contratto
Vendita
Tipologia
Appartamento
Superficie
90 mq
Locali
3
Camere da letto
2
Cucina
Abitabile
Bagni
2
Piano
1 °
Totale piani
3
Box/Posto auto
Singolo

CARATTERISTICHE

Ascensore

COSTI

Prezzo
€ 309.000,00
Spese condominiali
€ 120,00 / mese

EFFICIENZA ENERGETICA

Stato
Ristrutturato
Anno costruzione
2010
Riscaldamento
Centralizzato
Climatizzazione
Predisposizione
Classe energetica
B
IPE
49,33 kWh/m²a

A+

A

49,33 kWh/m²a | Classe energetica B

B

C

D

E

F

G

MAPPA

Vimodrone comune della Brianza Milanese

ANNUNCI SIMILI

VENDITA 20
€ 295.000
Appartamento in Vendita a Vimodrone (Milano)
  • Trilocale
  • 104 mq
  • 2 bagni
VENDITA 20
€ 337.000
Appartamento in Vendita a Vimodrone (Milano)
  • Più di 5 locali
  • 133 mq
  • 2 bagni
VENDITA 20
€ 700.000
Appartamento in Vendita a Vimodrone (Milano)
  • Più di 5 locali
  • 149 mq
  • 3 bagni
VENDITA 20
€ 255.000
Appartamento in Vendita a Vimodrone (Milano)
  • Trilocale
  • 85 mq
  • 1 bagno
VENDITA 20
€ 250.000
Appartamento in Vendita a Cologno Monzese (Milano)
  • Trilocale
  • 119 mq
  • 2 bagni
VENDITA 20
€ 250.000
Appartamento in Vendita a Cologno Monzese (Milano)
  • Quadrilocale
  • 120 mq
  • 2 bagni
VENDITA 20
€ 250.000
Appartamento in Vendita a Cologno Monzese (Milano)
  • Quadrilocale
  • 120 mq
  • 2 bagni