Vimercate, appartamento tre locali doppi servizi in vendita. VENDITA

Via Brianza 12 - Vimercate (Monza e Brianza)
€ 196.000
  • Trilocale
  • 119 mq
  • 2 bagni

Appartamento in Vendita a Vimercate

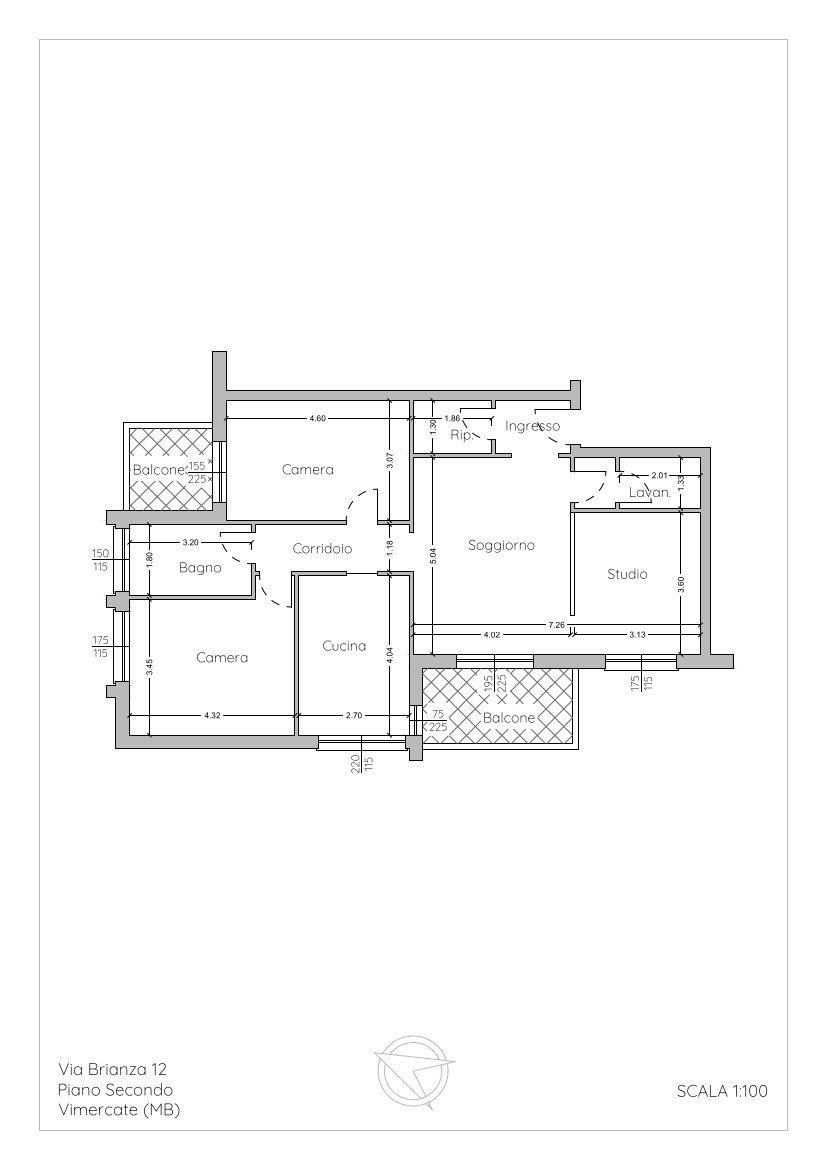
Vimercate, nelle vicinanze del nuovo polo ospedaliero, delle principali vie di comunicazione e del terminal di Piazza Marconi, proponiamo, in palazzina, appartamento al secondo piano servito da ascensore così composto: ingresso, ampio ripostiglio, cucina abitabile, soggiorno, entrambi con affaccio su un terrazzino fronte Ovest, zona studio/ufficio a vista sul soggiorno, bagno di servizio, disimpegno notte, camera matrimoniale con balcone, bagno padronale e seconda camera.
Attualmente l'immobile si presenta con 2 camere da letto; è possibile realizzare la terza camera da letto ripristinando semplicemente la parete divisoria fra il soggiorno e l'attuale studio come prevedeva il progetto originario.
Completano la proprietà un vano di cantina compreso nel prezzo ed un box singolo, entrambi a piano terreno, quest'ultimo al prezzo di euro 16.000,00.
L'appartamento si presenta in buono stato di manutenzione, è dotato di riscaldamento autonomo, con caldaia recentemente sostituita; la palazzina si presenta in ottime condizione, con rivestimento esterno mattoni a vista, androne e serramenti dei vani scala sono stati sostituiti lo scorso anno.
La consegna è prevista ad 8 mesi dal preliminare.

LEGGI TUTTO

CONDIVIDI SUI SOCIAL

DATI PRINCIPALI

Riferimento
128975
Contratto
Vendita
Tipologia
Appartamento
Superficie
119 mq
Locali
3
Camere da letto
2
Cucina
Abitabile
Bagni
2
Piano
2 °
Totale piani
4
Box/Posto auto
Singolo

CARATTERISTICHE

Ascensore

COSTI

Prezzo
€ 196.000,00
Spese condominiali
€ 120,00 / mese

EFFICIENZA ENERGETICA

Stato
Abitabile
Anno costruzione
1985
Riscaldamento
Autonomo
Classe energetica
E
IPE
351,00 kWh/m²a

A+

A

B

C

D

351,00 kWh/m²a | Classe energetica E

E

F

G

MAPPA

Vimercate comune della Bassa Brianza Orientale o Vimercatese

ANNUNCI SIMILI

VENDITA 13
€ 374.000
Appartamento in Vendita a Vimercate (Monza e Brianza)
  • Trilocale
  • 131 mq
  • 2 bagni