VIMERCATE 4 LOCALI IN VILLA CON GIARDINO, BOX E DEPOSITO VENDITA

Viale Luigi Ronchi 26 - Vimercate (Monza e Brianza)
€ 380.000
  • Quadrilocale
  • 206 mq
  • 2 bagni

Appartamento in Vendita a Vimercate

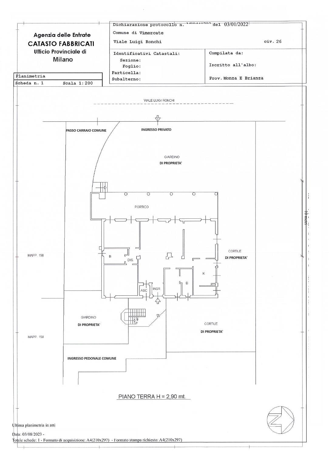
VIMERCATE – Centro- in prossimità di piazza Martiri Vimercatesi, comodo con scuole e negozi, in Esclusiva di vendita, in Villa di sole 3 unità immobiliari, proponiamo al Piano terra con giardino, ampio appartamento di 4 locali (mq 150) libero su quattro lati, oltre a portico coperto (mq 55 ca.), con possibilità di acquistare : piscina coperta, spogliatoi , locale hobby (mq 250 ca.), lavanderia.
L’appartamento è cosi composto: ingresso su ampio salone, cucina abitabile, dispensa, tre camere, due bagni, portico coperto di ca. 55 mq, giardino su tre lati di ca. 390 mq. L’appartamento si presenta in ottime condizioni di manutenzione generale, parquet in legno Ipè Brasiliano da 3cm, doppio ingresso pedonale ed ingresso carraio. Il prezzo richiesto per questa splendida proprietà comprensiva di: un box, un deposito e un posto auto coperto al piano S.1 è di € 380.000 . L’immobile è libero a 6 mesi dal preliminare. Possibilità di acquistare Al Piano S1: la lavanderia, una ampia zona hobby (mq 250 ca.) divisa in zona relax/hobby e piscina coperta riscaldata (attualmente in disuso, necessita di manutenzione), spogliatoi e bagno il tutto direttamente collegato con ascensore privato, ad € 80.000. Il prezzo è trattabile. Ape classe F ipe 238,42. Per info: Enzo 3351878176 www.brianzacase.net

LEGGI TUTTO

CONDIVIDI SUI SOCIAL

DATI PRINCIPALI

Riferimento
130720
Contratto
Vendita
Tipologia
Appartamento
Superficie
206 mq
Locali
4
Camere da letto
3
Cucina
Abitabile
Bagni
2
Piano
Piano terra
Totale piani
2
Box/Posto auto
Singolo

CARATTERISTICHE

Ascensore

COSTI

Prezzo
€ 380.000,00
Spese condominiali
€ 400,00 / mese

EFFICIENZA ENERGETICA

Stato
Abitabile
Anno costruzione
1975
Riscaldamento
Centralizzato
Classe energetica
F
IPE
238,42 kWh/m²a

A+

A

B

C

D

E

238,42 kWh/m²a | Classe energetica F

F

G

MAPPA

Vimercate comune della Bassa Brianza Orientale o Vimercatese

ANNUNCI SIMILI

VENDITA 20
€ 620.000
Appartamento in Vendita a Vimercate (Monza e Brianza)
  • Quadrilocale
  • 190 mq
  • 2 bagni