Vendesi 4 Locali con Giardino VENDITA

via marsala 17 - Monza (Monza e Brianza)
€ 748.000
  • Quadrilocale
  • 180 mq
  • 2 bagni

Appartamento in Vendita a Monza

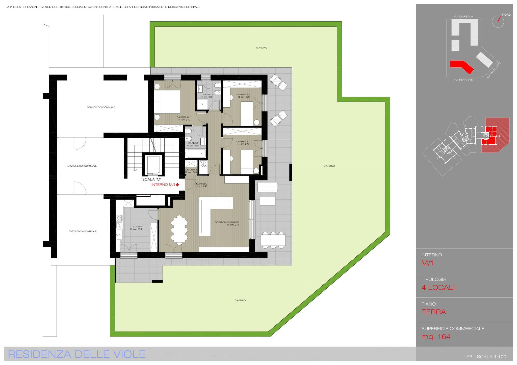
La Residenza Le Viole è l’ultima e più moderna realizzazione che completa il prestigioso Complesso Residenziale dei Fiori. Situata in una posizione strategica, tra Via Marsala e Via Pacinotti, la residenza gode di una vicinanza invidiabile al centro città, alla stazione ferroviaria e ai principali collegamenti stradali, offrendo il perfetto equilibrio tra comodità e tranquillità. L’edificio si sviluppa su otto piani fuori terra, con un ulteriore piano interrato dedicato alle autorimesse e ospita 47 unità abitative progettate per soddisfare ogni esigenza: dai bilocali fino agli attici quadrilocali con soppalco, pensati per chi cerca spazi ampi, luminosi e di pregio. Ogni appartamento, che viene consegnato completamente imbiancato, è stato studiato per garantire il massimo comfort abitativo e propone finiture di alta qualità: pavimenti in parquet prefinito in rovere o gres porcellanato, porte interne con maniglie in alluminio e portoncini blindati classe 4 ad alte prestazioni termiche e acustiche. La tecnologia è protagonista: il sistema centralizzato di riscaldamento e raffrescamento con gestione autonoma garantisce efficienza e risparmio, grazie anche al riscaldamento a pavimento e ai split idronici per la climatizzazione. Ogni unità è dotata di ventilazione meccanica controllata con recupero di calore, mentre l’impianto elettrico Living Light Bticino è predisposto per la domotica di livello 1 con videocitofono a colori e modulo gateway. È inoltre prevista la predisposizione per impianto d’allarme volumetrico e perimetrale. Gli spazi esterni non sono da meno: balconi e logge con parapetti in vetro, pavimentazioni di tipo galleggiante ad effetto pietra e presa d’acqua dedicata; giardini privati con irrigazione automatica, prato seminato e siepi divisorie, perfetti per vivere all’aria aperta in un contesto riservato. Le autorimesse, infine, sono dotate di illuminazione a LED temporizzata, presa dedicata per la ricarica di auto elettriche e basculanti in lamiera zincata. Il tutto in un edificio di classe energetica A4, con pannelli fotovoltaici e solare termico per la produzione di energia e acqua calda, serramenti in alluminio a taglio termico e frangisole motorizzati, a garanzia di un comfort sostenibile e di lunga durata.

LEGGI TUTTO

CONDIVIDI SUI SOCIAL

DATI PRINCIPALI

Riferimento
127300
Contratto
Vendita
Tipologia
Appartamento
Superficie
180 mq
Locali
4
Camere da letto
3
Cucina
Abitabile
Bagni
2
Piano
Piano terra
Totale piani
7

CARATTERISTICHE

Ascensore

COSTI

Prezzo
€ 748.000,00

EFFICIENZA ENERGETICA

Stato
Nuovo/In costruzione
Anno costruzione
2025
Riscaldamento
Centralizzato
Climatizzazione
Si
Classe energetica
A4
IPE
3,51 kWh/m²a
3,51 kWh/m²a | Classe energetica A4

A4

A3

A2

A1

B

C

D

E

F

G

MAPPA

Monza comune della Bassa Brianza Centrale Sud

ANNUNCI SIMILI

VENDITA 6
€ 678.000
Appartamento in Vendita a Monza (Monza e Brianza)
  • Quadrilocale
  • 144 mq
  • 2 bagni
VENDITA 6
€ 678.000
Appartamento in Vendita a Monza (Monza e Brianza)
  • Quadrilocale
  • 144 mq
  • 2 bagni
VENDITA 6
€ 662.000
Appartamento in Vendita a Monza (Monza e Brianza)
  • Quadrilocale
  • 144 mq
  • 2 bagni
VENDITA 6
€ 715.000
Appartamento in Vendita a Monza (Monza e Brianza)
  • Quadrilocale
  • 144 mq
  • 2 bagni
VENDITA 6
€ 748.000
Appartamento in Vendita a Monza (Monza e Brianza)
  • Quadrilocale
  • 180 mq
  • 2 bagni
VENDITA 6
€ 662.000
Appartamento in Vendita a Monza (Monza e Brianza)
  • Quadrilocale
  • 144 mq
  • 2 bagni
VENDITA 6
€ 444.000
Appartamento in Vendita a Monza (Monza e Brianza)
  • Quadrilocale
  • 104 mq
  • 2 bagni
VENDITA 6
€ 715.000
Appartamento in Vendita a Monza (Monza e Brianza)
  • Quadrilocale
  • 144 mq
  • 2 bagni
VENDITA 20
€ 460.000
Appartamento in Vendita a Monza (Monza e Brianza)
  • Quadrilocale
  • 110 mq
  • 2 bagni
VENDITA 20
€ 460.000
Appartamento in Vendita a Monza (Monza e Brianza)
  • Quadrilocale
  • 110 mq
  • 2 bagni