Usmate: 4 locali con giardino privato VENDITA

Via Impari Inferiore 32 - Usmate Velate (Monza e Brianza)
€ 275.000
  • Quadrilocale
  • 185 mq
  • 2 bagni

Appartamento in Vendita a Usmate Velate

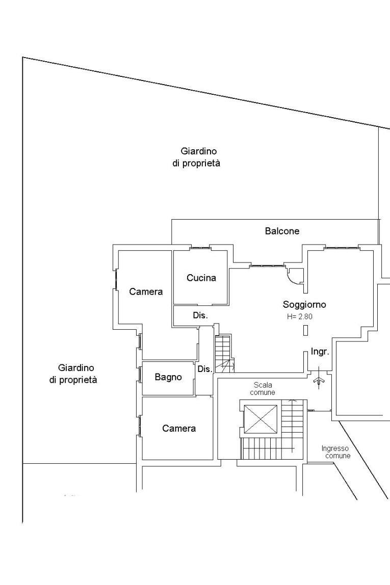
Usmate: All’interno di un elegante complesso residenziale immerso nel verde, costruito nel 1995 e circondato da un ampio parco con panchine ed area gioco bimbi, proponiamo una casa che conquista per spazi, luce e qualità della vita. Un luminoso appartamento di 4 locali con tavernetta e giardino privato di mq. 223, luogo ideale per pranzi all’aperto e momenti di relax . L'abitazione di mq. 123 è composta da ingresso, un soggiorno doppio con zona pranzo, salottino tv, cucina abitabile comoda e funzionale, due ampie camere da letto un primo bagno, il portico ed il giardino privato di mq. 223 . La cucina, così come tutte le altre stanze , si affacciano direttamente sul giardino privato, creando un piacevole dialogo tra interno ed esterno. Al piano interrato, di mq. 36,40 collegato da scala interna, troviamo il locale hobby con il secondo bagno lavanderia; uno spazio prezioso da vivere secondo le proprie esigenze: area relax, palestra, studio o spazio per il tempo libero. L'appartamento si presenta in ottime condizioni, grazie alla sua esposizione sud - est risulta particolarmente luminoso; è dotato di riscaldamento autonomo con caldaia a condensazione installata nel 2016, impianto d'allarme, griglie di sicurezza, tende da sole sul portico, ed impianto d'irrigazione. Al piano interrato è presente un ulteriore locale cantina ed un box di mq. 28 acquistabile ad € 24.000. Possibilità di acquisto un ulteriore box ad singolo ad € 15.000. Una casa ideale per chi desidera spazio, tranquillità e natura, senza rinunciare alla comodità dei servizi.

Prezzo richiesto € 275.000 + box € 24.000.

Rif. 1553

LEGGI TUTTO

CONDIVIDI SUI SOCIAL

DATI PRINCIPALI

Riferimento
128651
Contratto
Vendita
Tipologia
Appartamento
Superficie
185 mq
Locali
4
Camere da letto
2
Cucina
Abitabile
Bagni
2
Piano
Piano terra
Totale piani
3
Box/Posto auto
Doppio

CARATTERISTICHE

Ascensore

COSTI

Prezzo
€ 275.000,00
Spese condominiali
€ 222,00 / mese

EFFICIENZA ENERGETICA

Stato
Ristrutturato
Anno costruzione
1995
Riscaldamento
Autonomo
Climatizzazione
Predisposizione
Classe energetica
E
IPE
174,55 kWh/m²a

A+

A

B

C

D

174,55 kWh/m²a | Classe energetica E

E

F

G

MAPPA

Usmate Velate comune della Bassa Brianza Orientale o Vimercatese

ANNUNCI SIMILI

VENDITA 20
€ 220.000
Appartamento in Vendita a Usmate Velate (Monza e Brianza)
  • Quadrilocale
  • 145 mq
  • 2 bagni