TRILOCALE TOTALEMNTE RISTRUTTURATO CON BALCONE E POSTO AUTO VENDITA

Via Giuseppe Garibaldi - Casatenovo (Lecco)
€ 145.000
  • Trilocale
  • 80 mq
  • 1 bagno

Appartamento in Vendita a Casatenovo

CASATENOVO

In zona comoda con tutti i servizi proponiamo in vendita un appartamento posto al secondo piano ( no ascensore ) completamente ristrutturato sito in un piccolo contesto condominiale ristrutturato nel 2008

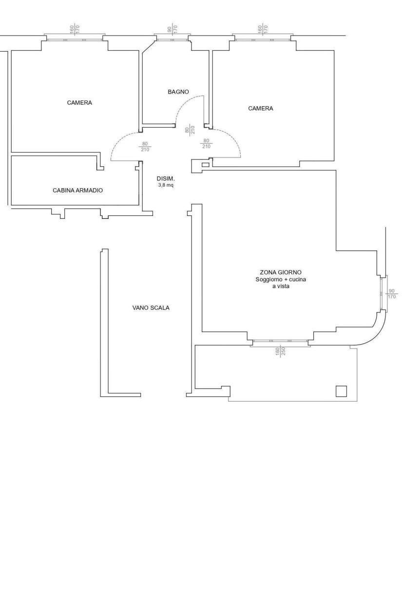
L'appartamento è cosi composto: ingresso su disimpegno che conduce nella zona living con cucina a vista e balcone, zona notte composta da bagno totalmente ristrutturato con piatto doccia e rifiniture in gress porcellanato, cameretta e camera matrimoniale con cabina armadio.

Impianto in pompa di calore (per riscaldamento e raffrescamento) canalizzato
Produzione di acqua calda mediante scaldabagno in pompa di calore da 200 litri.

COMPLETA LA SOLUZIONE VANO CANTINA DI 11 MQ E POSTO AUTO COPERTO AD EURO 15.000,00

LIBERO SUBITO

LEGGI TUTTO

CONDIVIDI SUI SOCIAL

DATI PRINCIPALI

Riferimento
133179
Contratto
Vendita
Tipologia
Appartamento
Superficie
80 mq
Locali
3
Camere da letto
2
Cucina
A vista
Bagni
1
Piano
2 °
Totale piani
4
Box/Posto auto
Singolo

CARATTERISTICHE

Ascensore

COSTI

Prezzo
€ 145.000,00
Spese condominiali
€ 60,00 / mese

EFFICIENZA ENERGETICA

Stato
Ristrutturato
Anno costruzione
2026
Riscaldamento
Autonomo
Climatizzazione
Si
Classe energetica
C
IPE
175,00 kWh/m²a

A+

A

B

175,00 kWh/m²a | Classe energetica C

C

D

E

F

G

MAPPA

Casatenovo comune della Brianza Casatese

ANNUNCI SIMILI

VENDITA 15
€ 88.000
Appartamento in Vendita a Casatenovo (Lecco)
  • Trilocale
  • 83 mq
  • 1 bagno
VENDITA 8
€ 312.000
Appartamento in Vendita a Casatenovo (Lecco)
  • Quadrilocale
  • 130 mq
  • 2 bagni