TRILOCALE NUOVO CON 180 MQ DI GIARDINO VENDITA

Via Luigi Galvani - Desio (Monza e Brianza)
€ 275.000
  • Trilocale
  • 90 mq
  • 1 bagno

Appartamento in Vendita a Desio

IL TUO SOGNO IN PRONTA CONSEGNA: TRILOCALE NUOVO CON 180 MQ DI GIARDINO
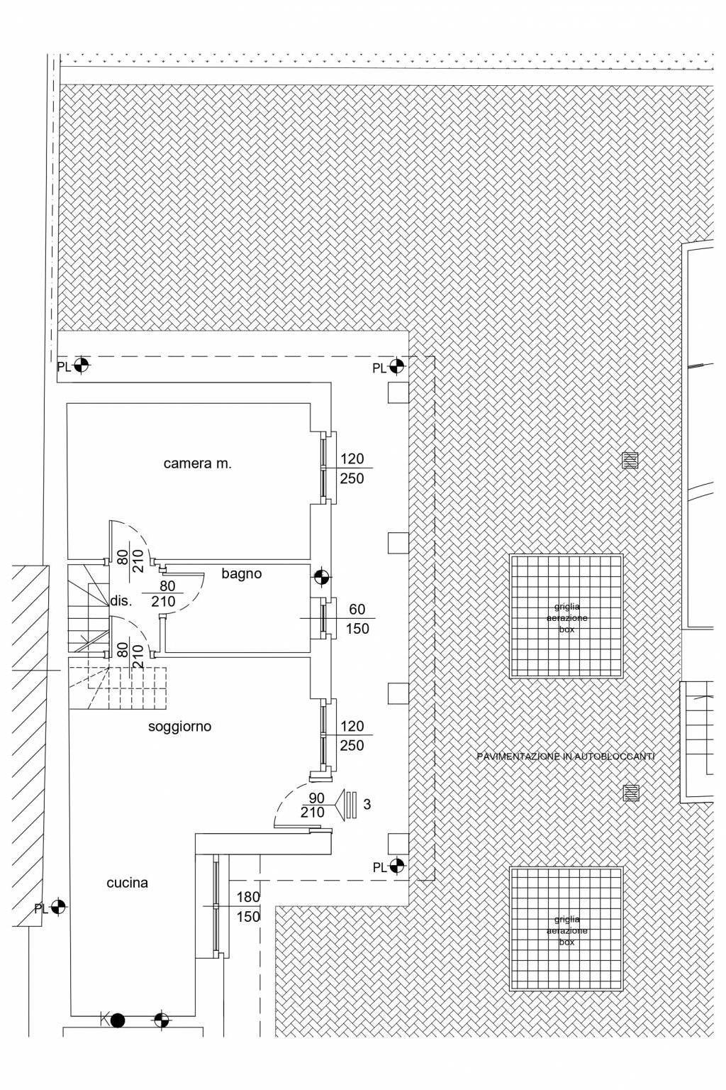
Desio, in zona centrale ma incredibilmente tranquilla, proponiamo un'opportunità unica: un trilocale di nuova costruzione in una palazzina signorile di poche famiglie. Immagina di tornare a casa e rilassarti nel tuo enorme giardino privato di 180 mq: uno spazio perfetto per cene all'aperto, per il relax o per far giocare i bambini in totale sicurezza. La soluzione è disposta su due livelli: PIANO TERRA: La luminosa zona giorno con angolo cottura si apre direttamente sullo splendido giardino. Completano il piano la camera da letto e il bagno. PIANO SOTTOTETTO: Collegato da una comoda scala interna, troverai un ampio spazio versatile, ideale per creare una seconda camera da letto, un ufficio per lo smart working o una zona hobby. COMFORT E TECNOLOGIA: L'immobile è già dotato di riscaldamento a pavimento, sistema di riciclo d'aria e cantina. Essendo in pronta consegna, potrai entrare subito e personalizzare le finiture a tuo piacimento. Possibilità di aggiungere box, aria condizionata e sistema di antifurto. Non aspettare! Una soluzione così, con uno spazio esterno simile, è introvabile.

LEGGI TUTTO

CONDIVIDI SUI SOCIAL

DATI PRINCIPALI

Riferimento
129776
Contratto
Vendita
Tipologia
Appartamento
Superficie
90 mq
Locali
3
Camere da letto
2
Cucina
Angolo cottura
Bagni
1
Piano
Piano terra
Totale piani
2

CARATTERISTICHE

Ascensore

COSTI

Prezzo
€ 275.000,00

EFFICIENZA ENERGETICA

Stato
Nuovo/In costruzione
Anno costruzione
2019
Riscaldamento
Autonomo
Climatizzazione
Si
Classe energetica
A1
IPE
351,00 kWh/m²a

A4

A3

A2

351,00 kWh/m²a | Classe energetica A1

A1

B

C

D

E

F

G

MAPPA

Desio comune della Bassa Brianza Centrale Sud

ANNUNCI SIMILI

VENDITA 20
€ 205.000
Appartamento in Vendita a Desio (Monza e Brianza)
  • Trilocale
  • 85 mq
  • 1 bagno
VENDITA 20
€ 205.000
Appartamento in Vendita a Desio (Monza e Brianza)
  • Trilocale
  • 85 mq
  • 1 bagno
VENDITA 20
€ 189.000
Appartamento in Vendita a Desio (Monza e Brianza)
  • Quadrilocale
  • 150 mq
  • 1 bagno
VENDITA 15
€ 565.000
Appartamento in Vendita a Desio (Monza e Brianza)
  • Più di 5 locali
  • 192 mq
  • 3 bagni
VENDITA 8
€ 378.000
Appartamento in Vendita a Desio (Monza e Brianza)
  • Quadrilocale
  • 156 mq
  • 3 bagni
VENDITA 20
€ 240.000
Appartamento in Vendita a Desio (Monza e Brianza)
  • Trilocale
  • 151 mq
  • 1 bagno
VENDITA 16
€ 190.000
Appartamento in Vendita a Desio (Monza e Brianza)
  • Trilocale
  • 112 mq
  • 2 bagni