• Trilocale
  • 121 mq
  • 2 bagni

Appartamento in Vendita a Villasanta

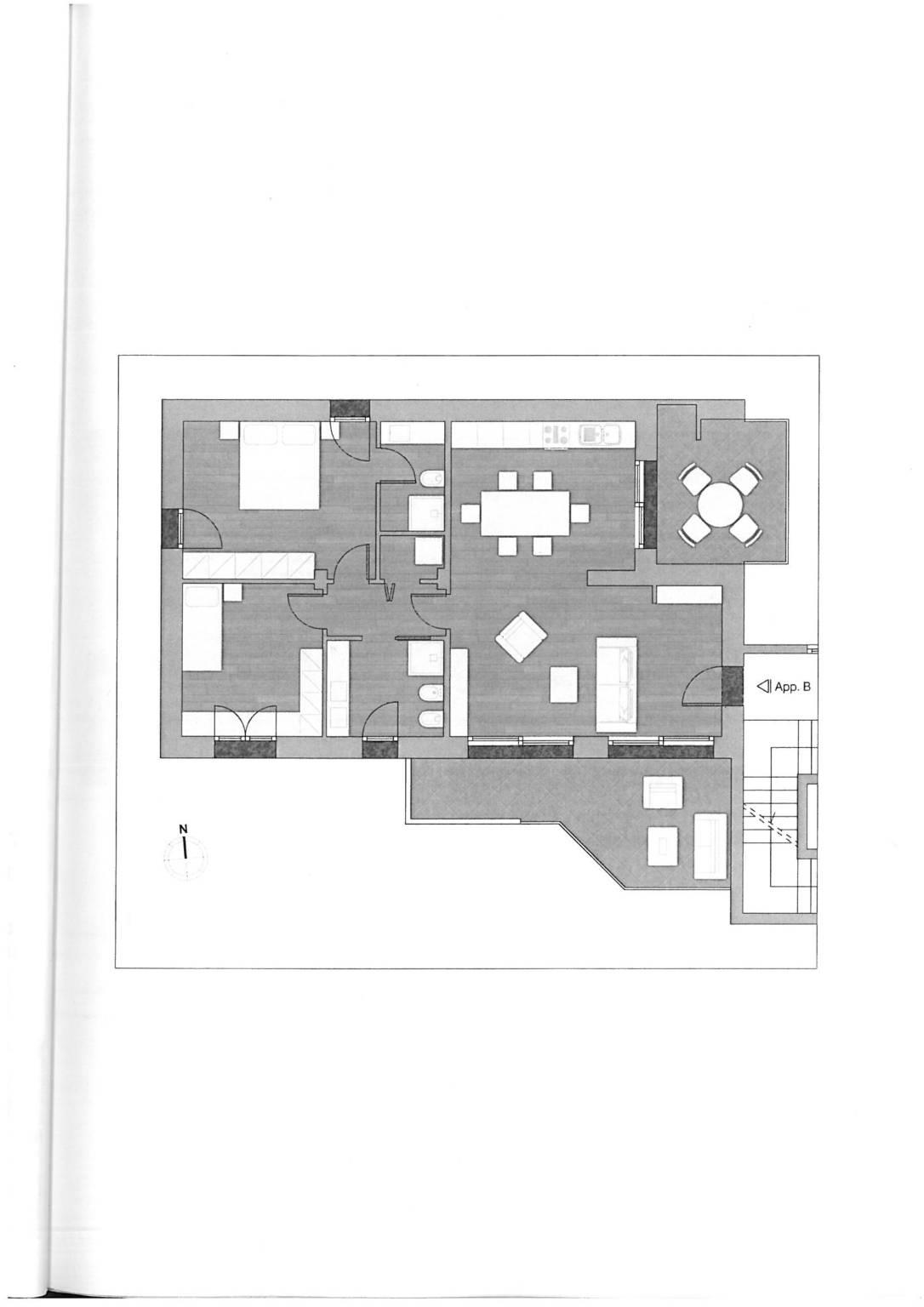
RESIDENZA GIADA Villasanta S. Fiorano Ad. Centro: in minipalazzina di prossima realizzazione di sole 6 unità abitative in Classe "A", prenotiamo ottimo 3 locali di 121 mq. sito al P. I°, composto da: ingresso, ampio soggiorno con affaccio su terrazzo, cucina abitabile con affaccio su secondo terrazzo, 2 camere da letto, disimpegno e doppi servizi e lavanderia. Riscaldamento e raffrescamento a pavimento, tapparelle elettriche, ricircolo dell'aria interno, ventilazione meccanica controllata (VMC), pompa di calore, pannelli solari. Possibilità scelta capitolati. Completa la proprietà la cantina. Possibilità box. I lavori inizieranno a Marzo 2026. Per ulteriori informazioni, capitolato e materiale informativo, vi invitiamo a contattarci in studio.
Per contattarci potete chiamare anche al nuovo numero aggiuntivo di cellulare 339.3617826.
Sin dal 1994 siamo presenti su tutto il territorio e limitrofi del comune di Villasanta.
Professionalità, trasparenza, serietà ed una maturata esperienza nel settore della compra-vendita immobiliare.
Un team di professionisti al vostro servizio, pronti a seguirvi in ogni suo dettaglio, nelle operazioni di acquisto e/o vendita del vostro immobile residenziale o commerciale
Alcuni dei nostri servizi: Intermediazioni immobiliari su acquisti e vendite di terreni, fabbricati, appartamenti e ville.
Perizie, valutazioni commerciali e tecnico-legali (notaio). Consulenza tecnica-bancaria sull'acquisizione di mutui, subentri o permute. Gestione patrimoniale immobiliare.
Orari di apertura agenzia: dal Lunedì al Venerdì dalle 9:00 alle 12:30 e dalle 14:30 alle 19:30 il Sabato dalle 9:00 alle 12:30.
Questa descrizione ha valore puramente indicativo e non rappresenta elemento contrattuale.

LEGGI TUTTO

CONDIVIDI SUI SOCIAL

DATI PRINCIPALI

Riferimento
132944
Contratto
Vendita
Tipologia
Appartamento
Superficie
121 mq
Locali
3
Camere da letto
2
Cucina
A vista
Bagni
2
Piano
1 °
Totale piani
2
Box/Posto auto
Singolo

CARATTERISTICHE

Ascensore

COSTI

Prezzo
€ 318.000,00

EFFICIENZA ENERGETICA

Stato
Nuovo/In costruzione
Anno costruzione
2026
Riscaldamento
Centralizzato
Climatizzazione
Si
Classe energetica
A+
IPE
175,00 kWh/m²a
175,00 kWh/m²a | Classe energetica A+

A+

A

B

C

D

E

F

G

MAPPA

Villasanta comune della Bassa Brianza Centrale Sud

ANNUNCI SIMILI

VENDITA 7
€ 322.800
Appartamento in Vendita a Villasanta (Monza e Brianza)
  • Trilocale
  • 124 mq
  • 2 bagni
VENDITA 19
€ 225.000
Appartamento in Vendita a Villasanta (Monza e Brianza)
  • Trilocale
  • 102 mq
  • 1 bagno