• Trilocale
  • 90 mq
  • 2 bagni

Appartamento in Vendita a Lentate sul Seveso

LENTATE SUL SEVESO
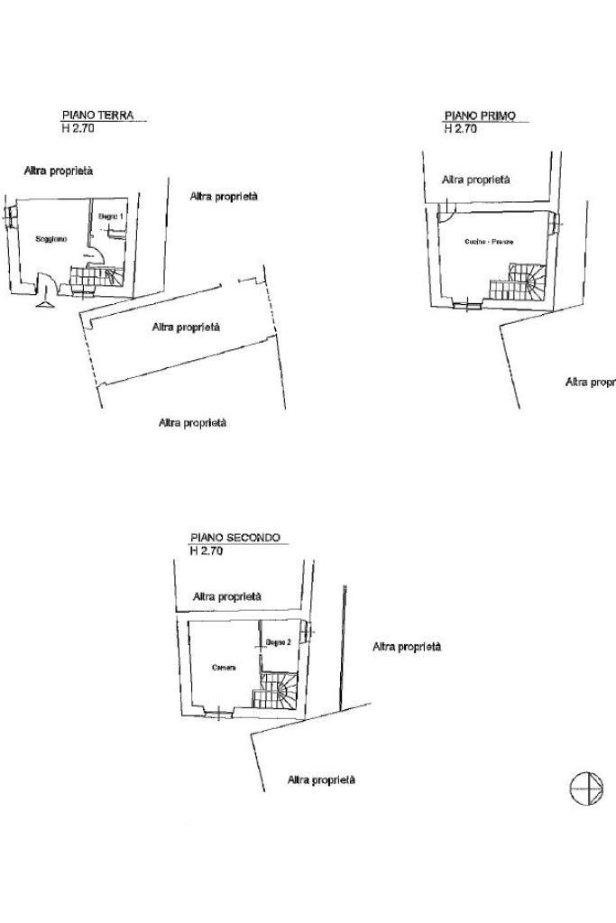
Soluzione indipendente disposta su tre livelli, situata a Lentate sul Seveso, senza spese condominiali e con possibilità di parcheggio all’interno del contesto.
L’ingresso si apre direttamente sul soggiorno, ambiente accogliente e ben organizzato. Su questo livello troviamo inoltre un antibagno che ospita la caldaia e un bagno con doccia.
Salendo al primo piano si accede alla cucina abitabile; la generosa metratura ha inoltre permesso di ricavare una stanza aggiuntiva, ideale come studio, cameretta o locale hobby.
Proseguendo al secondo piano troviamo la camera da letto, con accesso a un balconcino, e un secondo bagno finestrato dotato di vasca.
La soluzione rappresenta un’ottima opportunità per chi è alla ricerca di un’abitazione senza spese condominiali, in un contesto tranquillo.

LEGGI TUTTO

CONDIVIDI SUI SOCIAL

DATI PRINCIPALI

Riferimento
132893
Contratto
Vendita
Tipologia
Appartamento
Superficie
90 mq
Locali
3
Camere da letto
2
Cucina
Angolo cottura
Bagni
2
Piano
2 °
Totale piani
2

CARATTERISTICHE

Ascensore

COSTI

Prezzo
€ 117.000,00

EFFICIENZA ENERGETICA

Stato
Abitabile
Anno costruzione
1967
Riscaldamento
Autonomo
Climatizzazione
Predisposizione
Classe energetica
G
IPE
358,46 kWh/m²a

A+

A

B

C

D

E

F

358,46 kWh/m²a | Classe energetica G

G

MAPPA

Lentate sul Seveso comune della Bassa Brianza Occidentale

ANNUNCI SIMILI

VENDITA 20
€ 279.000
Appartamento in Vendita a Lentate sul Seveso (Monza e Brianza)
  • Quadrilocale
  • 146 mq
  • 2 bagni
VENDITA 20
€ 185.000
Appartamento in Vendita a Lentate sul Seveso (Monza e Brianza)
  • Quadrilocale
  • 110 mq
  • 2 bagni
VENDITA 20
€ 88.000
Appartamento in Vendita a Lentate sul Seveso (Monza e Brianza)
  • Trilocale
  • 65 mq
  • 1 bagno