• Trilocale
  • 105 mq
  • 2 bagni

Appartamento in Vendita a Monza

MONZA, zona San Giuseppe, Via Silva 40.
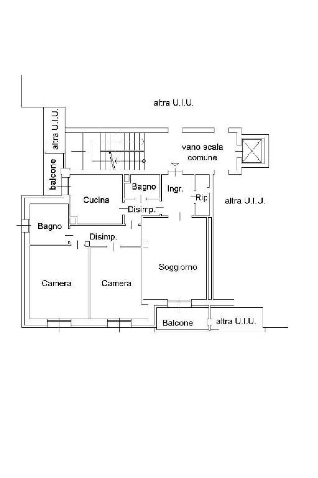
In piccola palazzina di soli tre piani, con facciate recentemente rifatte con cappotto termico di ultima generazione e interventi mirati al miglioramento dell'efficienza energetica, garantendo risparmio sui consumi e maggior confort abitativo in tutte le stagioni, proponiamo APPARTAMENTO di 105 mq ca, al piano 1° servito da ascensore, composto da: ingresso, soggiorno con affaccio sul primo balcone, cucina abitabile con balcone, due camere, 2 bagni (uno in aspirazione) e ripostiglio.
Tapparelle elettriche in alluminio rinforzato a tutte le finestre.
Completa la proprietà il vano cantina al piano interrato.

Possibilità autorimessa singola al piano interrato € 20.000.

Subito disponibile

LEGGI TUTTO

CONDIVIDI SUI SOCIAL

DATI PRINCIPALI

Riferimento
132084
Contratto
Vendita
Tipologia
Appartamento
Superficie
105 mq
Locali
3
Camere da letto
2
Cucina
Abitabile
Bagni
2
Piano
1 °
Totale piani
3
Box/Posto auto
Singolo

CARATTERISTICHE

Ascensore

COSTI

Prezzo
€ 260.000,00
Spese condominiali
€ 250,00 / mese

EFFICIENZA ENERGETICA

Stato
Abitabile
Anno costruzione
1978
Riscaldamento
Centralizzato
Climatizzazione
Predisposizione
Classe energetica
C
IPE
99,06 kWh/m²a

A+

A

B

99,06 kWh/m²a | Classe energetica C

C

D

E

F

G

MAPPA

Monza comune della Bassa Brianza Centrale Sud

ANNUNCI SIMILI

VENDITA 20
€ 285.000
Appartamento in Vendita a Monza, Zona San Giuseppe
  • Trilocale
  • 91 mq
  • 2 bagni
VENDITA 16
€ 265.000
Appartamento in Vendita a Monza, Zona San Giuseppe
  • Quadrilocale
  • 200 mq
  • 2 bagni
VENDITA 20
€ 280.000
Appartamento in Vendita a Monza, Zona San Giuseppe
  • Trilocale
  • 102 mq
  • 2 bagni
VENDITA 20
€ 220.000
Appartamento in Vendita a Monza, Zona Triante
  • Trilocale
  • 83 mq
  • 1 bagno