€ 328.000
  • Trilocale
  • 131 mq
  • 2 bagni

Appartamento in Vendita a Limbiate

NUOVA COSTRUZIONE Via Caravaggio Limbiate
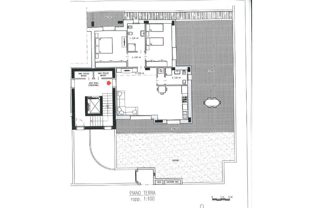
Il cantiere, in fase di realizzazione , è composto da sole quattro unità abitative, con possibilità di recupero sottotetto.
L'appartamento 'B' è posto al piano terra con giardino e terrazzo.
Si accede direttamente sulla zona giorno, composta da soggiorno con la cucina abitabile. Gli ambienti si affacciano sul terrazzo piastrellato ed il giardino .
Il disimpegno conduce alla zona notte con due camere da letto, di cui una con balcone e la seconda con affaccio al terrazzo della zona giorno. I doppi servizi entrambi finestrati .
L'abitazione è dotata di riscaldamento autonomo a pavimento con pompa di calore ed impianto di ventilazione meccanica autonoma.
Predisposizione per aria condizionata e impianto d'allarme.
L'immobile è completo di cantina.
Possibilità di personalizzazione e scelta capitolato.
Consegna prevista primavera estate 2026.
Box a parte.
box singolo a partire da: 17.000,00 euro;
box doppio a partire da: 27.000,00 euro.

LEGGI TUTTO

CONDIVIDI SUI SOCIAL

DATI PRINCIPALI

Riferimento
129626
Contratto
Vendita
Tipologia
Appartamento
Superficie
131 mq
Locali
3
Camere da letto
2
Cucina
Abitabile
Bagni
2
Piano
Piano terra
Totale piani
1

CARATTERISTICHE

Ascensore

COSTI

Prezzo
€ 328.000,00

EFFICIENZA ENERGETICA

Stato
Nuovo/In costruzione
Anno costruzione
2025
Riscaldamento
Autonomo
Climatizzazione
Predisposizione
Classe energetica
A1
IPE
55,20 kWh/m²a

A4

A3

A2

55,20 kWh/m²a | Classe energetica A1

A1

B

C

D

E

F

G

MAPPA

Limbiate comune della Bassa Brianza Occidentale

ANNUNCI SIMILI

VENDITA 20
€ 311.000
Appartamento in Vendita a Limbiate (Monza e Brianza)
  • Trilocale
  • 120 mq
  • 2 bagni
VENDITA 20
€ 328.000
Appartamento in Vendita a Limbiate (Monza e Brianza)
  • Trilocale
  • 130 mq
  • 2 bagni